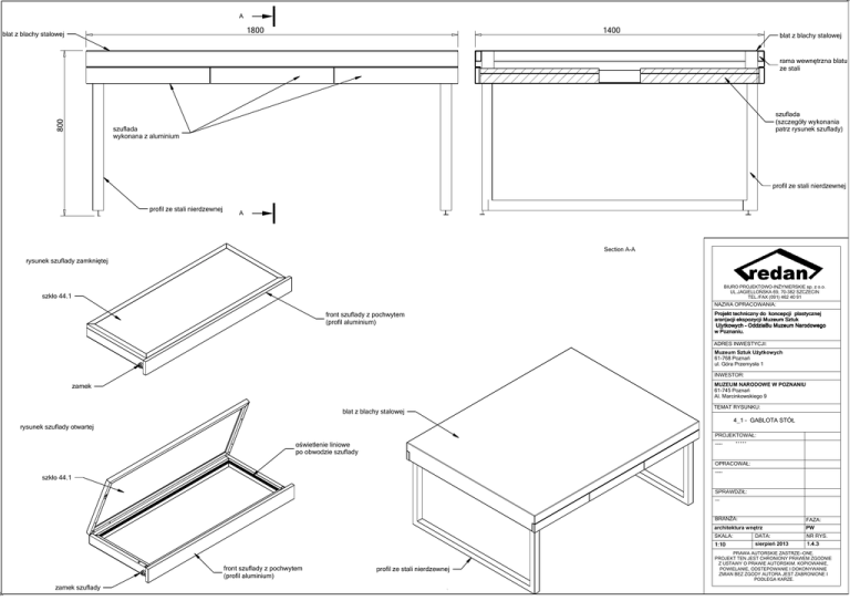
profil ze stali nierdzewnej szuflada wykonana z aluminium blat z

Transkrypt

profil ze stali nierdzewnej szuflada wykonana z aluminium blat z
A
1800
blat z blachy stalowej
1400
blat z blachy stalowej
800
rama wewnętrzna blatu
ze stali
szuflada
(szczegóły wykonania
patrz rysunek szuflady)
szuflada
wykonana z aluminium
profil ze stali nierdzewnej
profil ze stali nierdzewnej
A
Section A-A
rysunek szuflady zamkniętej
BIURO PROJEKTOWO-INŻYNIERSKIE sp. z o.o.
UL.JAGIELLOŃSKA 69, 70-382 SZCZECIN
TEL./FAX (091) 462 40 91
szkło 44.1
NAZWA OPRACOWANIA:
front szuflady z pochwytem
(profil aluminium)
Projekt techniczny do koncepcji plastycznej
aran|acji ekspozycji Muzeum Sztuk
U|ytkowych - OddziaBu Muzeum Narodowego
w Poznaniu.
ADRES INWESTYCJI:
Muzeum Sztuk Użytkowych
61-768 Poznań
ul. Góra Przemysła 1
INWESTOR:
MUZEUM NARODOWE W POZNANIU
61-745 Poznań
Al. Marcinkowskiego 9
zamek
blat z blachy stalowej
TEMAT RYSUNKU:
4_1 - GABLOTA STÓŁ
rysunek szuflady otwartej
PROJEKTOWAŁ:
.....
.....
oświetlenie liniowe
po obwodzie szuflady
OPRACOWAŁ:
.....
szkło 44.1
SPRAWDZIŁ:
...
BRANŻA:
architektura wnętrz
front szuflady z pochwytem
(profil aluminium)
zamek szuflady
profil ze stali nierdzewnej
SKALA:
DATA:
1:10
1: 10
sierpień 2013
FAZA:
PW
NR RYS.
1.4.3
PRAWA AUTORSKIE ZASTRZE—ONE.
PROJEKT TEN JEST CHRONIONY PRAWEM ZGODNIE
Z USTAWY O PRAWIE AUTORSKIM. KOPIOWANIE,
POWIELANIE, ODSTEPOWANIE I DOKONYWANIE
ZMIAN BEZ ZGODY AUTORA JEST ZABRONIONE I
PODLEGA KARZE.