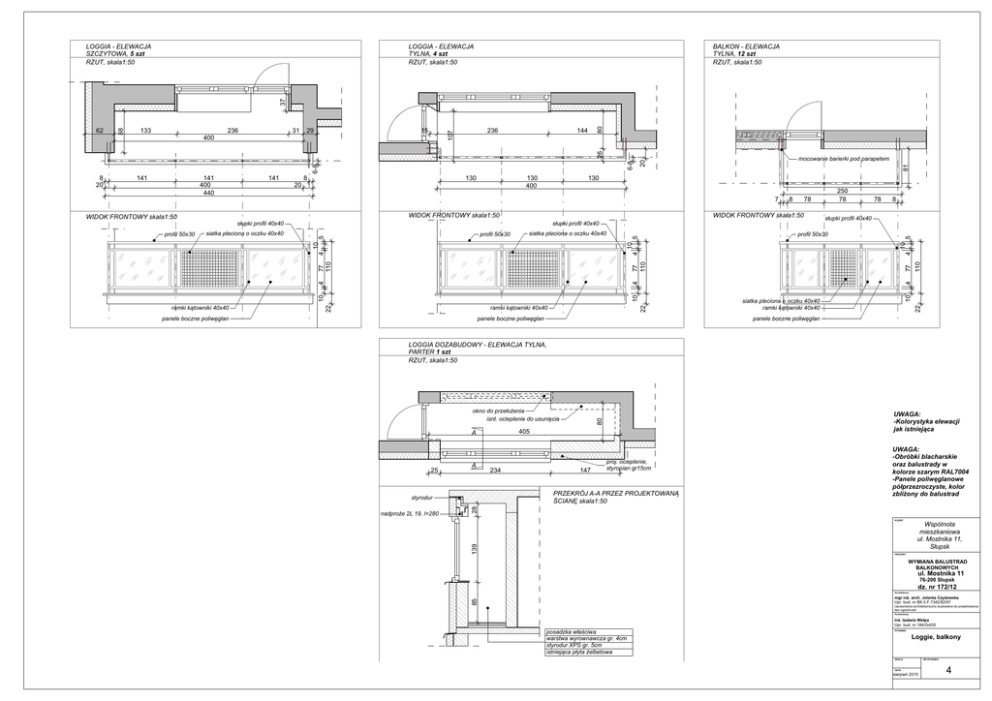
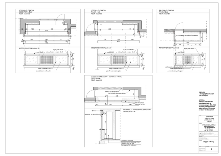
03.4 Loggie, balkony

Transkrypt

03.4 Loggie, balkony
LOGGIA - ELEWACJA
TYLNA, 4 szt
RZUT, skala1:50
BALKON - ELEWACJA
TYLNA, 12 szt
RZUT, skala1:50
15
236
144
20
8
130
130
400
7
siatka pleciona o oczku 40x40
8
słupki profil 40x40
10
10
4
77 4
110
4
10
10
4
77 4
110
78
profil 50x30
5
profil 50x30
250
78
78
słupki profil 40x40
10
siatka pleciona o oczku 40x40
8
WIDOK FRONTOWY skala1:50
słupki profil 40x40
panele boczne poliwęglan
22
ramki kątowniki 40x40
22
panele boczne poliwęglan
siatka pleciona o oczku 40x40
ramki kątowniki 40x40
panele boczne poliwęglan
LOGGIA DOZABUDOWY - ELEWACJA TYLNA,
PARTER 1 szt
RZUT, skala1:50
okno do przełożenia
isnt. ocieplenie do usunięcia
405
A
25
A
234
147
proj. ocieplenie,
styropian gr15cm
PRZEKRÓJ A-A PRZEZ PROJEKTOWANĄ
ŚCIANĘ skala1:50
UWAGA:
-Obróbki blacharskie
oraz balustrady w
kolorze szarym RAL7004
-Panele poliwęglanowe
półprzezroczyste, kolor
zbliżony do balustrad
28
styrodur
139
KLIENT
Wspólnota
mieszkaniowa
ul. Mostnika 11,
Słupsk
PROJEKT
WYMIANA BALUSTRAD
BALKONOWYCH
ul. Mostnika 11
76-200 Słupsk
dz. nr 172/12
Architektura:
mgr inż. arch. Jolanta Czyżewska
Upr. bud. nr BK.II.F.7342/82/97
85
nadproże 2L 19, l=280
UWAGA:
-Kolorystyka elewacji
jak istniejąca
80
ramki kątowniki 40x40
81
130
WIDOK FRONTOWY skala1:50
WIDOK FRONTOWY skala1:50
profil 50x30
141
77 4
110
141
400
440
20
6-8
6-8
141
5
8
20
mocowanie barierki pod parapetem
22
29
5
31
10
236
26
400
80
133
107
62
88
37
LOGGIA - ELEWACJA
SZCZYTOWA, 5 szt
RZUT, skala1:50
Uprawnienia architektoniczno budowlane do projektowania
bez ograniczeń
Konstrukcja:
inż. Izabela Wełpa
Upr. bud. nr 184/Gd/00
posadzka właściwa
warstwa wyrownawcza gr. 4cm
styrodur XPS gr. 5cm
istniejąca płyta żelbetowa
RYSUNEK
Loggie, balkony
SKALA
DATA
sierpień 2015
NR RYSUNKU
14
4