Załącznik nr 9 - Rysunki

Transkrypt

Załącznik nr 9 - Rysunki
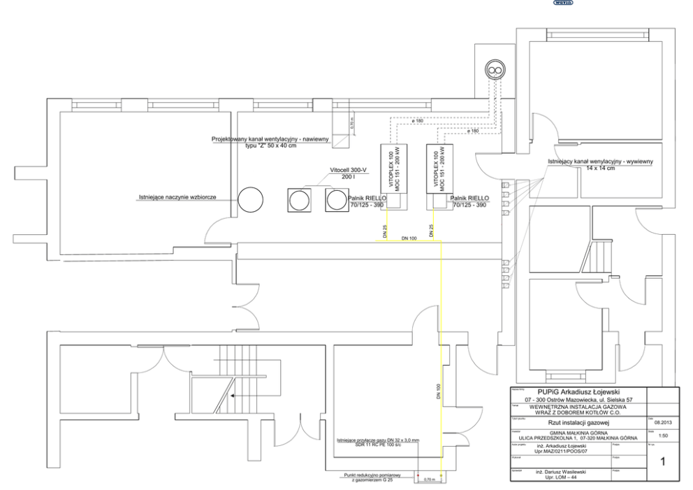
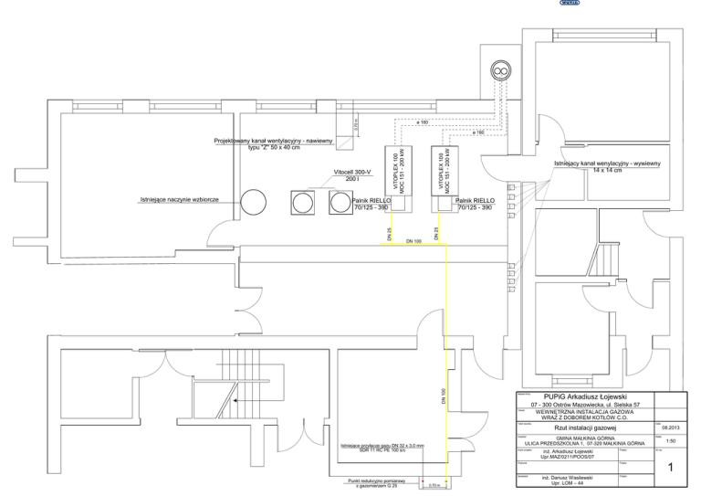
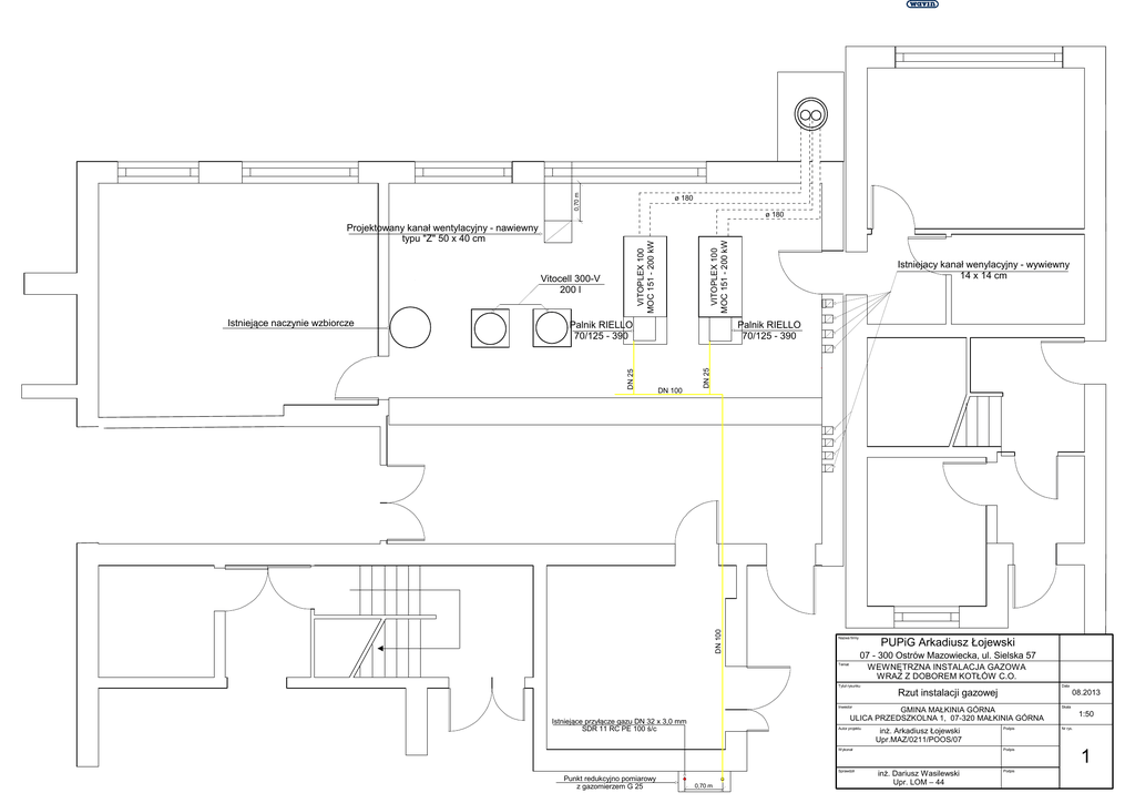
0,70 m
ø 180
VITOPLEX 100
MOC 151 - 200 kW
Projektowany kanał wentylacyjny - nawiewny
typu "Z" 50 x 40 cm
Vitocell 300-V
200 l
Istniejacy kanał wenylacyjny - wywiewny
14 x 14 cm
Palnik RIELLO
70/125 - 390
DN 100
DN 100
DN 25
Palnik RIELLO
70/125 - 390
DN 25
Istniejące naczynie wzbiorcze
VITOPLEX 100
MOC 151 - 200 kW
ø 180
Nazwa firmy
PUPiG Arkadiusz Łojewski
07 - 300 Ostrów Mazowiecka, ul. Sielska 57
Temat
WEWNĘTRZNA INSTALACJA GAZOWA
WRAZ Z DOBOREM KOTŁÓW C.O.
Tytuł rysunku
Data
Rzut instalacji gazowej
08.2013
Inwestor
GMINA MAŁKINIA GÓRNA
ULICA PRZEDSZKOLNA 1, 07-320 MAŁKINIA GÓRNA
Istniejące przyłącze gazu DN 32 x 3,0 mm
SDR 11 RC PE 100 ś/c
Autor projektu
inż. Arkadiusz Łojewski
Upr.MAZ/0211/POOS/07
Wykonał
Sprawdził
Punkt redukcyjno pomiarowy
z gazomierzem G 25
0,70 m
Podpis
Podpis
inż. Dariusz Wasilewski
Upr. LOM – 44
Podpis
Skala
1:50
Nr rys.
1
0,70 m
ø 180
VITOPLEX 100
MOC 151 - 200 kW
Vitocell 300-V
200 l
Palnik RIELLO
70/125 - 390
Istniejacy kanał wenylacyjny - wywiewny
14 x 14 cm
Palnik RIELLO
70/125 - 390
Detektor gazu DEX - 12
DN 100
Przewód zasilający 230 V
YDY 3x1
DN 25
DN 25
Modół sterowniczy MD - 2.Z
DN 100
Istniejące naczynie wzbiorcze
VITOPLEX 100
MOC 151 - 200 kW
ø 180
Projektowany kanał wentylacyjny - nawiewny
typu "Z" 50 x 40 cm
Nazwa firmy
PUPiG Arkadiusz Łojewski
07 - 300 Ostrów Mazowiecka, ul. Sielska 57
Temat
WEWNĘTRZNA INSTALACJA GAZOWA
WRAZ Z DOBOREM KOTŁÓW C.O.
Tytuł rysunku
Data
Rzut instalacji alarmowej
08.2013
Inwestor
GMINA MAŁKINIA GÓRNA
ULICA PRZEDSZKOLNA 1, 07-320 MAŁKINIA GÓRNA
Istniejące przyłącze gazu DN 32 x 3,0 mm
SDR 11 RC PE 100 ś/c
Autor projektu
Alarm SL - 32
Punkt redukcyjno pomiarowy
z gazomierzem G 25
MAG - 3 DN 50
0,70 m
inż. Arkadiusz Łojewski
Upr.MAZ/0211/POOS/07
Podpis
Wykonał
Podpis
Sprawdził
Podpis
inż. Dariusz Wasilewski
Upr. LOM – 44
Skala
1:50
Nr rys.
2
Stal DN 100, L= 2,00 m
Stal DN 100, L= 6,50 m
Stal DN 25, L= 3,50 m
Stal DN 25, L= 3,50 m
Zawór odcinający DN 25
Zawór odcinający DN 25
Ścieżka gazowa 1"
Kocioł gazowy
Moc 200 kW
Kocioł gazowy
Moc 200 kW
Ścieżka gazowa 1"
Zawór odcinający kulowy DN 50
Według oddzielnego opracowania
Węzeł redukcyjno pomiarowy
z gazomierzem miechowym G 25
Stal DN 100, L= 3,00 m
Redukcja 65/100 mm
MAG – 3 DN 50,
Przyłącze gazowe PE DN 32 mm
według oddzielnego opracowania
PUPiG Arkadiusz Łojewski
07 – 300 Ostrów Mazowiecka ul. Sielska 57
Temat
Stal DN 65, L= 0,50 m
Tytuł rysunku
Stal DN 65, L=0,60 m
WEWNĘTRZNA INSTALACJA GAZOWA
WRAZ Z DOBOREM KOTŁÓW C.O.
Schemat aksonometryczny
instalacji gazowej
Data
08. 2013
Skala
b/s
Nr rysunku
3
Inwestor
GMINA MAŁKINIA GÓRNA
ULICA PRZEDSZKOLNA 1, 07-320 MAŁKINIA GÓRNA
Projektował
Sprawdził
inż. Arkadiusz Łojewski
Upr.nr MAZ/0211/POOS/07
inż. Dariusz Wasilewski
Upr. LOM – 44
Podpis
Podpis
Nazwa firmy
PUPiG Arkadiusz Łojewski
07 - 300 Ostrów Mazowiecka, ul. Sielska 57
Temat
WEWNĘTRZNA INSTALACJA GAZOWA
WRAZ Z DOBOREM KOTŁÓW C.O.
Tytuł rysunku
Data
Punkt redukcyjno - pomiarowy z gazomierzem G - 25
Inwestor
GMINA MAŁKINIA GÓRNA
ULICA PRZEDSZKOLNA 1, 07-320 MAŁKINIA GÓRNA
Autor projektu
inż. Arkadiusz Łojewski
Upr.MAZ/0211/POOS/07
Wykonał
Sprawdził
Podpis
Podpis
inż. Dariusz Wasilewski
Upr. LOM – 44
Podpis
08.2013
Skala
b/s
Nr rys.
4
90,00 cm
DN 100
40,00 cm
DN 100
DN 100
DN 25
100,00 cm
DN 65
PUPiG Arkadiusz Łojewski
07 – 300 Ostrów Mazowiecka ul. Sielska 57
Temat
WEWNĘTRZNA INSTALACJA GAZOWA
WRAZ Z DOBOREM KOTŁÓW C.O.
Tytuł rysunku
Data
08.2013
Skala
b/s
Nr rysunku
Schemat mocowania przewodów gazowych
5
Inwestor
GMINA MAŁKINIA GÓRNA
UL. PRZEDSZKOLNA 1, 07-320 MAŁKINIA GÓRNA
Projektował
Sprawdził
inż. Arkadiusz Łojewski
Upr.nr MAZ/0211/POOS/07
Podpis
inż. Dariusz Wasilewski
Upr. LOM – 44
Podpis
Aktywny system odcinania gazu do budynku kotłowni.
GX
strefa zagrożona
(kotłownia gazowa)
2
MD-2.Z
DEX-12
1
YDY 4x1
okrągły
∅6 - ∅12 mm
YDY
3x1
∼220V
YDY 2 x 5
przy L < 44m
Puszka IP-54
poza strefą 2
zagrożenia
wybuchem
YDY
4x1x0,5
ALARM 1
SL-32
4
MAG-3
DN 50
3
ALARM 2
UWAGA:
Detektory montować pionowo z dala od wentylacyjnych otworów, w miejscu nienasłonecznionym, max
0,3 m od sufitu. Detektory powinny znajdować się nad palnikami. Wloty detektorów pionowo w dół.
OZNACZENIA:
1. Detektory DEX-1.2 na gaz ziemny grupy E (GZ-50) o progach sygnalizacji:
a) ALARM 1: 5 – 10% DGW – syrena alarmowa i lampa SL-32,
b) ALARM 2: 20 – 40 % DGW – odcięcie gazu ( MAG-3 ).
2. Moduł sterowniczy MD–2.Z. – obok drzwi na wysokości ca 1,7m od podłogi.
3. Głowica MAG-3 DN 50 w skrzynce gazomierza z kurkiem. Połączenie wykonać
poza strefą 2 zagrożenia wybuchem (patrz rysunek instalacji GX-2) w puszcze szczelnej
IP-54.
4. Syrena i lampa SL-31: 12V–110 dB na zewnątrz, obok drzwi kotłowni na wysokości 2,5m.
4
55,00 cm
3
2
70,00 cm
350,00 cm
1
5
7
1
8
6
30,00 cm
OZNACZENIA:
1. Kratka wentylacyjna 50 x 40 cm bez żaluzji.
2. Kolano z blachy stalowej, ocynkowanej 50 x 40 cm.
3. Strop nad pomieszczeniem kotłowni.
4. Uchwyt / obejma / z blachy do zamocowania w suficie.
5. Kanał z blachy stalowej, ocynkowanej 50 x 40 cm.
6. Posadzka.
7. Ściana zewnętrzna budynku.
8. Wspornik
UWAGA: Przewody wentylacyjne należy wykonać z materiałów niepalnych.
PUPiG Arkadiusz Łojewski
07 – 300 Ostrów Mazowiecka ul. Sielska 57
Temat
WEWNĘTRZNA INSTALACJA GAZOWA
WRAZ Z DOBOREM KOTŁÓW C.O.
Tytuł rysunku
Data
08.2013
Skala
b/s
Nr rysunku
Kanał nawiewny typu „Z” w kotłowni
7
Inwestor
GMINA MAŁKINIA GÓRNA
UL. PRZEDSZKOLNA 1, 07-320 MAŁKINIA GÓRNA
Projektował
Sprawdził
inż. Arkadiusz Łojewski
Upr.nr MAZ/0211/POOS/07
Podpis
inż. Dariusz Wasilewski
Upr. LOM – 44
Podpis
UWAGA:
Przed doszczelnieniem tulei stalowej instalację gazową należy zabezpieczyć
antykorozyjnie. Spawy i luty instalacji wewnątrz tulei niedopuszczalne.
PUPiG Arkadiusz Łojewski
07 – 300 Ostrów Mazowiecka ul. Sielska 57
Temat
Tytuł rysunku
WEWNĘTRZNA INSTALACJA GAZOWA
WRAZ Z DOBOREM KOTŁÓW C.O.
Przejście instalacji gazowej
przez przegrody
Data
08.2013
Skala
b/s
Nr rysunku
8
Inwestor
GMINA MAŁKINIA GÓRNA
ULICA PRZEDSZKOLNA 1, 07-320 MAŁKINIA GÓRNA
Projektował
Sprawdził
inż. Arkadiusz Łojewski
Upr.nr MAZ/0211/POOS/07
inż. Dariusz Wasilewski
Upr. LOM – 44
Podpis
Podpis