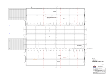
dobudowa wiat 1

Transkrypt

dobudowa wiat 1
580
340
A
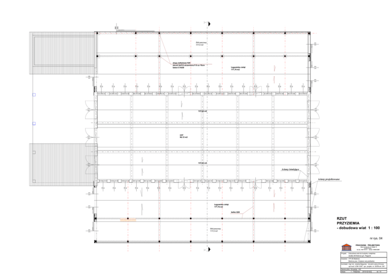
Stóù paszowy
117,0 m2
280
318
sùupy ¿elbetowe fi25
zbroiã 6xfi12 strzemiona fi 6 co 10cm
beton C16/20
Legowiska ciel¹t
177,76 m2
200
318
280
200
200
275
90
120
90
120
90
120
90
120
220
180
90
120
90
120
90
120
90
120
90
120
220
180
90
120
90
120
90
120
90
120
90
120
90
120
90
120
318
275
157,64 m2
300
300
stóù
96,12 m2
275
300
275
300
157,64 m2
275
275
300
300
œciany istniej¹ce
90
120
90
120
90
120
90
120
220
180
90
120
90
120
90
120
90
120
90
120
220
180
90
120
90
120
90
120
90
120
90
120
90
120
90
120
œciany projektowane
200
200
318
318
Legowiska ciel¹t
177,76 m2
200
318
200
318
belka I220
Stól paszowy
117,0 m2
280
318
280
RZUT
PRZYZIEMIA
- dobudowa wiat 1 : 100
318
nr rys. 04
A
Projekt:
Dobudowa wiat do budynku cielêtnika
dziaùka 68 Biebrza gm. Rajgród
Inwestor: ITP ZD Biebrza .
Biebrza pow. Grajewo woj.podlaskie
Architekt: mgr in¿. Jolanta Bogucka in¿.arch.Jerzy Wincza
upr.bud. £OM 12/87 upr. projekt. nr. 63/58 art. 361
Nazwa pliku: 04-parter -100
Skala:
1 : 100 Data: 2010-02-02
str. 10