2009/03/11 z dnia: OCENA TECHNICZNA nr: P

Transkrypt

2009/03/11 z dnia: OCENA TECHNICZNA nr: P
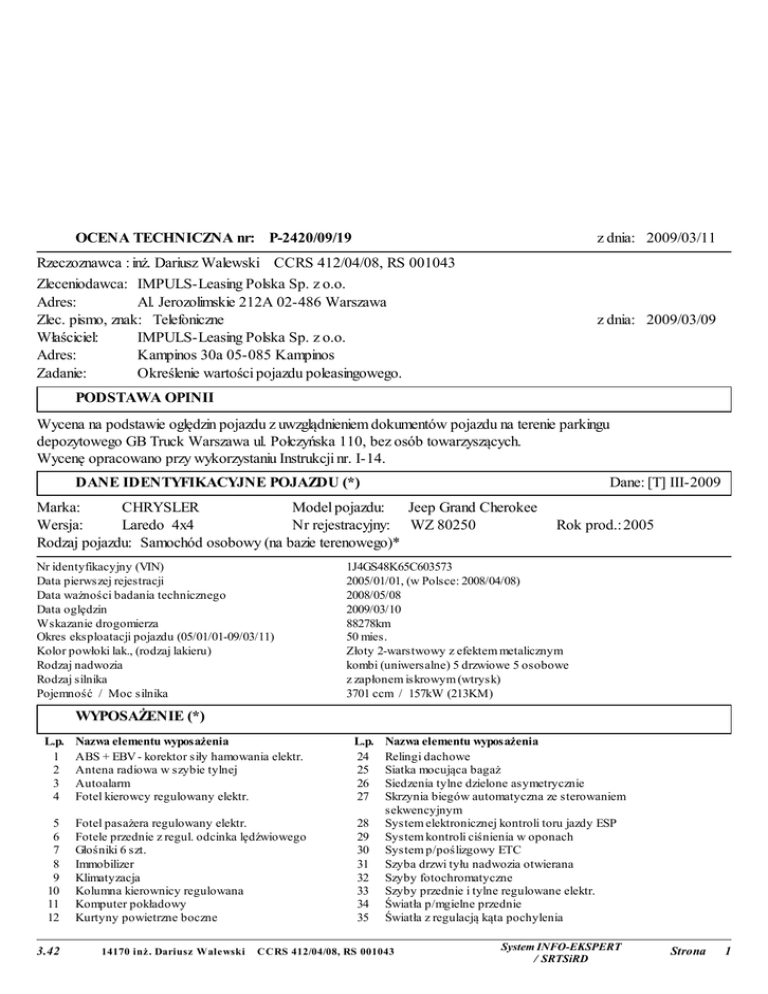
OCENA TECHNICZNA nr: P-2420/09/19
z dnia: 2009/03/11
Rzeczoznawca : inż. Dariusz Walewski CCRS 412/04/08, RS 001043
Zleceniodawca: IMPULS-Leasing Polska Sp. z o.o.
Adres:
Al. Jerozolimskie 212A 02-486 Warszawa
Zlec. pismo, znak: Telefoniczne
Właściciel:
IMPULS-Leasing Polska Sp. z o.o.
Adres:
Kampinos 30a 05-085 Kampinos
Zadanie:
Określenie wartości pojazdu poleasingowego.
z dnia: 2009/03/09
PODSTAWA OPINII
Wycena na podstawie oględzin pojazdu z uwzglądnieniem dokumentów pojazdu na terenie parkingu
depozytowego GB Truck Warszawa ul. Połczyńska 110, bez osób towarzyszących.
Wycenę opracowano przy wykorzystaniu Instrukcji nr. I-14.
DANE IDENTYFIKACYJNE POJAZDU (*)
Dane: [T] III-2009
Marka:
CHRYSLER
Model pojazdu:
Jeep Grand Cherokee
Wersja:
Laredo 4x4
Nr rejestracyjny: WZ 80250
Rodzaj pojazdu: Samochód osobowy (na bazie terenowego)*
Nr identyfikacyjny (VIN)
Data pierwszej rejestracji
Data ważności badania technicznego
Data oględzin
Wskazanie drogomierza
Okres eksploatacji pojazdu (05/01/01-09/03/11)
Kolor powłoki lak., (rodzaj lakieru)
Rodzaj nadwozia
Rodzaj silnika
Pojemność / Moc silnika
Rok prod.: 2005
1J4GS48K65C603573
2005/01/01, (w Polsce: 2008/04/08)
2008/05/08
2009/03/10
88278km
50 mies.
Złoty 2-warstwowy z efektem metalicznym
kombi (uniwersalne) 5 drzwiowe 5 osobowe
z zapłonem iskrowym (wtrysk)
3701 ccm / 157kW (213KM)
WYPOSAŻENIE (*)
L.p.
1
2
3
4
Nazwa elementu wyposażenia
ABS + EBV - korektor siły hamowania elektr.
Antena radiowa w szybie tylnej
Autoalarm
Fotel kierowcy regulowany elektr.
L.p.
24
25
26
27
5
6
7
8
9
10
11
12
Fotel pasażera regulowany elektr.
Fotele przednie z regul. odcinka lędźwiowego
Głośniki 6 szt.
Immobilizer
Klimatyzacja
Kolumna kierownicy regulowana
Komputer pokładowy
Kurtyny powietrzne boczne
28
29
30
31
32
33
34
35
3.42
14170 inż. Dariusz Walewski
Nazwa elementu wyposażenia
Relingi dachowe
Siatka mocująca bagaż
Siedzenia tylne dzielone asymetrycznie
Skrzynia biegów automatyczna ze sterowaniem
sekwencyjnym
System elektronicznej kontroli toru jazdy ESP
System kontroli ciśnienia w oponach
System p/poślizgowy ETC
Szyba drzwi tyłu nadwozia otwierana
Szyby fotochromatyczne
Szyby przednie i tylne regulowane elektr.
Światła p/mgielne przednie
Światła z regulacją kąta pochylenia
CCRS 412/04/08, RS 001043
System INFO-EKSPERT
/ SRTSiRD
Strona
1
P-2420/09/19
13
14
15
36 Światło dodatkowe STOP
37 Tapicerka tekstylna
38 + Tapicerka ze skóry
17
18
19
20
Lakier metalizowany
Lusterka zewnętrzne regulowane elektrycznie
Mechanizm różnicowy przedni o zwiększonym
tarciu wewnętrznym
Mechanizm różnicowy tylny o zwiększonym tarciu
wewnętrznym
Napęd Quadra Drive
Napinacze przednich pasów bezpieczeństwa
Opony 245/65 R 17
Podłokietnik centralny przedni
21
22
23
Podłokietnik siedzeń tylnych
Poduszki powietrzne kierowcy i pasażera
Radioodtwarzacz CD
44
45
16
39
Tarcze kół alum. 17"
40
41
42
43
Tempomat
Wspomaganie układu kierowniczego zmienne
Wycieraczka szyby tylnej
Zabezpieczenie drzwi tylnych przed otwarciem od
wewnątrz
Zamek centralny zdalnie sterowany
Zasłona części bagażowej
OPIS ZAMONTOWANEGO W POJEŹDZIE OGUMIENIA
Koło
Przednie lewe:
Przednie prawe:
Tylne lewe:
Tylne prawe:
Marka, typ
GOODYEAR 235/65
GOODYEAR 235/65
GOODYEAR 235/65
GOODYEAR 235/65
R17
R17
R17
R17
104V
104V
104V
104V
WRANGLER HP ALLWEAT. TL
WRANGLER HP ALLWEAT. TL
WRANGLER HP ALLWEAT. TL
WRANGLER HP ALLWEAT. TL
Bieżnik [mm] Zużycie [% ]
5,5
52
4,5
64
6,5
40
4,5
64
STAN TECHNICZNY POJAZDU
Do oceny przedstawiono pojazd przejęty kompletny, leasingowany.
Oględziny pojazdu dokonano na terenie parkingu depozytowego GB Truck Warszawa ul. Połczyńska 110, bez
osób towarzyszących.
W czasie oględzin dokonano jazdy próbnej po terenie parkingu.
W czasie oględzin stwierdzono:
SILNIK
Silnik wraz z osprzętem kompletny bez widocznych braków i uszkodzeń mechanicznych.
Silnik uruchomiono. Praca silnika w pełnym zakresie prędkości obrotowej nie budzi zastrzeżeń.
PODWOZIE
Podzespoły podwozia kpl. bez widocznych braków i uszkodzeń mechanicznych.
Opona koła przedniego prawego - bez powietrza.
NADWOZIE
Nadwozie koloru złoty metalik, ze śladami niewielkich uszkodzeń mechanicznych.
Dokonano pomiaru grubości powłoki lakierowej przyrządem elektronicznym.
Stwierdzono ślady naprawy blacharsko-lakierniczej całego nadwozia.
Części wyposażenia pojazdu pogięte, uszkodzone kwalifikujące się do wymiany:
- reflektor prawy - miejscowo wyłamany,
- sprężyny gazowe pokrywy komory silnika - uszkodzone, nie podtrzymują pokrywy silnika,
BRAKI w wyposażeniu pojazdu
- końcówki spryskiwaczy szyby przedniej szt.2 - brak.
- 1 kompletu kluczyków do włącznika zapłonu i zamków drzwi.
WYPOSAŻENIE
Wyposażenie fabryczne pojazdu - kompletne.
Od niniejszej wyceny przysługuje odwołanie do Zarządu Spółki za pośrednictwem Dyrektora Oddziału.
W przypadku konieczności wykonania wyceny komisyjnej wymagana jest wpłata zaliczki w wysokości
określonej przez Oddział wykonujący wycenę.
WERYFIKATOR
RZECZOZNAWCA
pieczęć
3.42
14170 inż. Dariusz Walewski
CCRS 412/04/08, RS 001043
System INFO-EKSPERT
/ SRTSiRD
Strona
2
DOKUMENTACJA FOTOGRAFICZNA
do opinii nr:
P-2420/09/19
z dnia: 2009/03/11
DANE IDENTYFIKACYJNE POJAZDU (*)
Dane: [T] III-2009
Marka:
CHRYSLER
Model pojazdu:
Jeep Grand Cherokee
Wersja:
Laredo 4x4
Nr rejestracyjny: WZ 80250
Rodzaj pojazdu: Samochód osobowy (na bazie terenowego)*
Dscf0449
Dscf0450
Dscf0451
Dscf0452
Dscf0456
Dscf0458
3.42
14170 inż. Dariusz Walewski
CCRS 412/04/08, RS 001043
Rok prod.: 2005
System INFO-EKSPERT
/ SRTSiRD
Strona
3
P-2420/09/19
Dscf0454
Dscf0460
Dscf0465
Dscf0466
Dscf0467
Dscf0469
3.42
14170 inż. Dariusz Walewski
CCRS 412/04/08, RS 001043
System INFO-EKSPERT
/ SRTSiRD
Strona
4