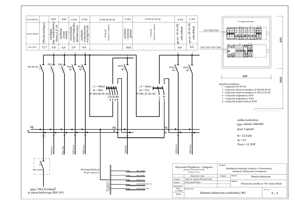
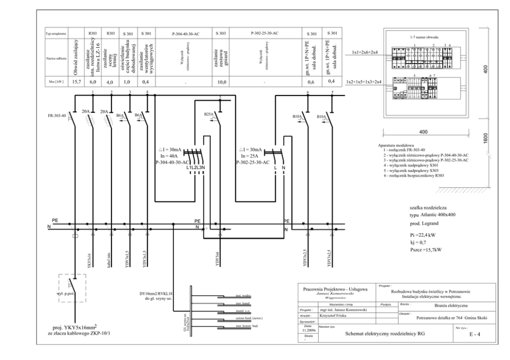
Schemat elektryczny RG

Transkrypt

Schemat elektryczny RG
6,0
3
4
10,0
-
0,6
0,4
-
1-7 numer obwodu
1
3 4
2
2
4
6
2
4
6
1
3
5
1
3
5
1x1+2x6+2x4
400
róŜnicowo - prądowy
Wyłącznik
zasilanie
zestawu
gniazd
zasilanie
wentylatorów
wyciągowych
2
róŜnicowo - prądowy
oświetlenie
części budynku
dobudowanej
0,4
S 301
6 7
5
1x2+1x5+1x3+2x4
7
4,0
1,0
S 301
P-302-25-30-AC
S 303
P-304-40-30-AC
Wyłącznik
S 301
gn.wt. 1P+N+PE
sala dobud.
15,7
S 301
gn.wt. 1P+N+PE
sala dobud.
Moc [ kW ]
Obwód zasilający
Nazwa odbioru
R303
zasilanie
istn. rozdzielniicy
listwa LZ-16
zasilanie
sceny
letniej
R303
Typ urządzenia
1
6
T
T
5
20A
20A
FR-303-40
B25A
B6A
B6A
B10A
B10A
I = 30mA
In = 40A
P-304-40-30-AC
Aparatura modułowa
1 - rozłącznik FR-303-40
2 - wyłącznik róŜnicowo-prądowy P-304-40-30-AC
3 - wyłącznik róŜnicowo-prądowy P-302-25-30-AC
4 - wyłącznik nadprądowy S301
5 - wyłącznik nadprądowy S303
6 - rozłącznik bezpiecznikowy R303
I = 30mA
In = 25A
P-302-25-30-AC
L1L2L3N
L
1600
400
N
szafka rozdzielcza
typu Atlantic 400x400
PE
PE
N
N
PE
prod. Legrand
N
Pszcz =15,7kW
YDY3x2,5
YDY3x2,5
YDY5x6
YDY3x1,5
YDY3x1,5
kabel istn.
YKY5x16
Pi = 22,4 kW
kj = 0,7
Projekt :
Pracownia Projektowo - Usługowa
wył. p.poŜ.
DY10mm2/RVKL18
do gł. szyny uz.
Wągrowiec
inst. kanal
proj. YKY5x16mm2
ze złacza kablowego ZKP-10/1
Gł. szyna uz.
FeZn25x4
instal. c.o.
uziom fund. (zewn.)
Rozbudowa budynku świetlicy w Potrzanowie
Instalacje elektryczne wewnętrzne.
Janusz Komorowski
inst. wodoc.
Nazwisko i imię
Projekt :
mgr inŜ. Janusz Komorowski
Kreślił :
Krzysztof Friska
Podpis
BranŜa :
BranŜa elektryczna
Obiekt :
Potrzanowo działka nr 764 Gmina Skoki
Sprawdził :
met. konstr. bud.
Data
11.2009r.
Skala
-
Nazwa rys.
Nr rys.:
Schemat elektryczny rozdzielnicy RG
E-4