FORMULARZ OFERTOWY

Transkrypt

FORMULARZ OFERTOWY
Załącznik nr 1.1 do SIWZ
Oznaczenie sprawy : HZPIII– 228-113/13
ZAMAWIAJĄCY:
Zakład Wodociągów i Kanalizacji Sp. z o.o.
Łódź, ul. Wierzbowa 52
wpisany do Rejestru Przedsiębiorców prowadzonego przez:
Sąd Rejonowy dla Łodzi Śródmieścia w Łodzi, XX Wydział Krajowego Rejestru Sądowego,
KRS nr 0000045146, NIP 725-18-01-126, wysokość kapitału zakładowego 25.400.000,00 zł.
WYKONAWCA
...........................................................................................
nazwa i adres Wykonawcy, nr telefonu, nr faksu, nr NIP
................................................................................
.........................................................................................
X/
WYKONAWCA
.........................................................................................
nazwa i adres Wykonawcy, nr telefonu, nr faksu, nr NIP
..........................................................................................
.........................................................................................
FORMULARZ OFERTOWY - dla części nr 1
w postępowaniu o udzielenie zamówienia w trybie przetargu nieograniczonego
nr sprawy : HZPIII - 228 – 113 /13
W związku z ogłoszeniem o przetargu nieograniczonym, oferujemy wykonanie przedmiotu zamówienia
zgodnie z zakresem i wymogami Specyfikacji Istotnych Warunków Zamówienia (SIWZ).
Przedmiot przetargu to dostawy środków do utrzymania higieny osobistej.
1. CENA OFERTY ( z dokładnością do dwóch miejsc po przecinku ) wynosi………………………zł
(słownie złotych :
..…………………………………………………………………………………………………………………………
…………………………………………………………………………………………………………………………)
i obejmuje wszystkie koszty związane z realizacją przedmiotu niniejszego zamówienia oraz
wszystkie podatki obowiązujące w Polsce, w tym podatek VAT
Ww. cena wynika z poniższego zestawienia.
X/
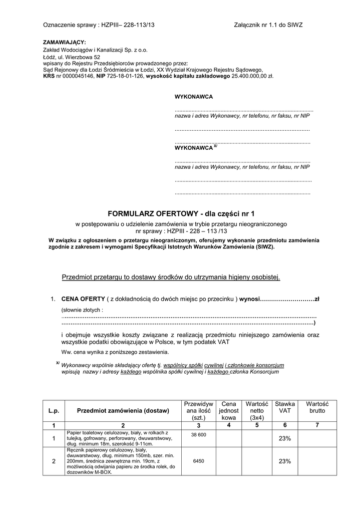
L.p.
1
1
2
Wykonawcy wspólnie składający ofertę tj. wspólnicy spółki cywilnej i członkowie konsorcjum
wpisują nazwy i adresy każdego wspólnika spółki cywilnej i każdego członka Konsorcjum
Przedmiot zamówienia (dostaw)
2
Papier toaletowy celulozowy, biały, w rolkach z
tulejką, gofrowany, perforowany, dwuwarstwowy,
dług. minimum 18m, szerokość 9-11cm.
Ręcznik papierowy celulozowy, biały,
dwuwarstwowy, dług. minimum 150mb, szer. min.
200mm, średnica zewnętrzna min. 19cm, z
możliwością odwijania papieru ze środka rolek, do
dozowników M-BOX.
Przewidyw Cena
ana ilość jednost
(szt.)
kowa
4
3
38 600
6450
Wartość
netto
(3x4)
5
Stawka
VAT
Wartość
brutto
6
7
23%
23%
Załącznik nr 1.1 do SIWZ
Oznaczenie sprawy : HZPIII– 228-113/13
L.p.
Przedmiot zamówienia (dostaw)
1
2
3
4
5
6
7
8
9
10
Ręcznik papierowy celulozowy, biały,
dwuwarstwowy, dług. minimum 60mb, szer. min.
200mm, średnica zewnętrzna min. 12cm, z
możliwością odwijania papieru ze środka rolek, do
dozowników MINI-BOX.
Papier toaletowy celulozowy, biały, dwuwarstwowy,
średnica zewnętrzna min. 18cm, dług. minimum
160mb. do dozowników T-BOX-MINI.
Czyściwo papierowe uniwersalne, 2 - warstwowe,
dług. minimum 350mb.,szer. min. 26,5 cm,
perforowane.
Czyściwo papierowe do silnych zabrudzeń, dobrze
wchłaniające oleje i smary, 4 - warstwowe, dług.
minimum 150mb., szer. min. 28cm, perforowane.
Mydło toaletowe w płynie (zagęszczone), w
pojemnikach (wymiennych nabojach), do
dozowników S-BOX - poj. 1l.
(nie do nalewania)
Dozownik do mydła S-BOX, do mydła z poz. 7.
Podajnik do ręczników M-BOX, do ręczników z poz.
2
Podajnik do ręczników M-BOX, do ręczników z poz.
3
Przewidyw Cena
ana ilość jednost
(szt.)
kowa
4
3
Wartość
netto
(3x4)
5
Stawka
VAT
Wartość
brutto
6
7
3750
23%
80
23%
30
23%
40
23%
3400
23%
23%
30
10
23%
15
23%
Cena oferty brutto: (Wartość netto
ogółem powiększona o podatek
VAT)
3.
4.
5.
6.
TERMIN REALIZACJI ZAMÓWIENIA: Sukcesywnie, 12 miesięcy od daty podpisania umowy.
TERMIN GWARANCJI JAKOŚCI wynosi : ......... miesiące (minimum 9 miesiące) liczone od daty odbioru
dostawy przez Zamawiającego.
WARUNKI PŁATNOŚCI: przelew w terminie 30 dni od daty otrzymania prawidłowo wystawionej faktury
VAT przez Zamawiającego.
TERMIN ZWIĄZANIA OFERTĄ: 60 dni od upływu terminu składania ofert.
Oświadczamy, że:

zapoznaliśmy się z treścią specyfikacji istotnych warunków zamówienia oraz z innymi
dokumentami przetargowymi i nie wnosimy do nich zastrzeżeń

zdobyliśmy konieczne informacje do przygotowania oferty

zobowiązujemy się do realizacji przedmiotu umowy zgodnie z wymogami określonymi
w specyfikacji istotnych warunków zamówienia, w tym do zachowania wymogów Zamawiającego
w zakresie asortymentu i ilości towaru stanowiącego przedmiot umowy, określonych w pkt 1
niniejszego formularza
7. Oświadczamy, że materiały, których dostawa stanowi przedmiot niniejszej oferty, są zgodne z
8.
wymaganiami określonymi przez Zamawiającego w s.i.w.z. do sprawy HZPIII- 228-113/13 – załącznik nr
1.1 do SIWZ.
Oświadczamy, że zawarty w specyfikacji istotnych warunków zamówienia wzór umowy został przez nas
zaakceptowany i zobowiązujemy się w przypadku wyboru naszej oferty do zawarcia umowy na ww.
warunkach, w miejscu i terminie wyznaczonym przez Zamawiającego.
9. Przy pierwszej dostawie, zobowiązujemy się dostarczyć:
- dla asortymentu wyszczególnionego w formularzu ofertowym stanowiącym załącznik do
umowy, w poz. 1-6, Karty techniczne (karta informacyjna) produktu.
Data ........................................
.........................................................................
Podpis(y) osoby(osób) uprawnionych do występowania
w imieniu Wykonawcy***
***podpis osoby/osób uprawnionej/ych w dokumentach rejestrowych firmy lub posiadającej/ych stosowne
pełnomocnictwo/a do dokonywania określonych czynności prawnych