Karty zadań - Wydział Mechaniczno

Transkrypt

Karty zadań - Wydział Mechaniczno
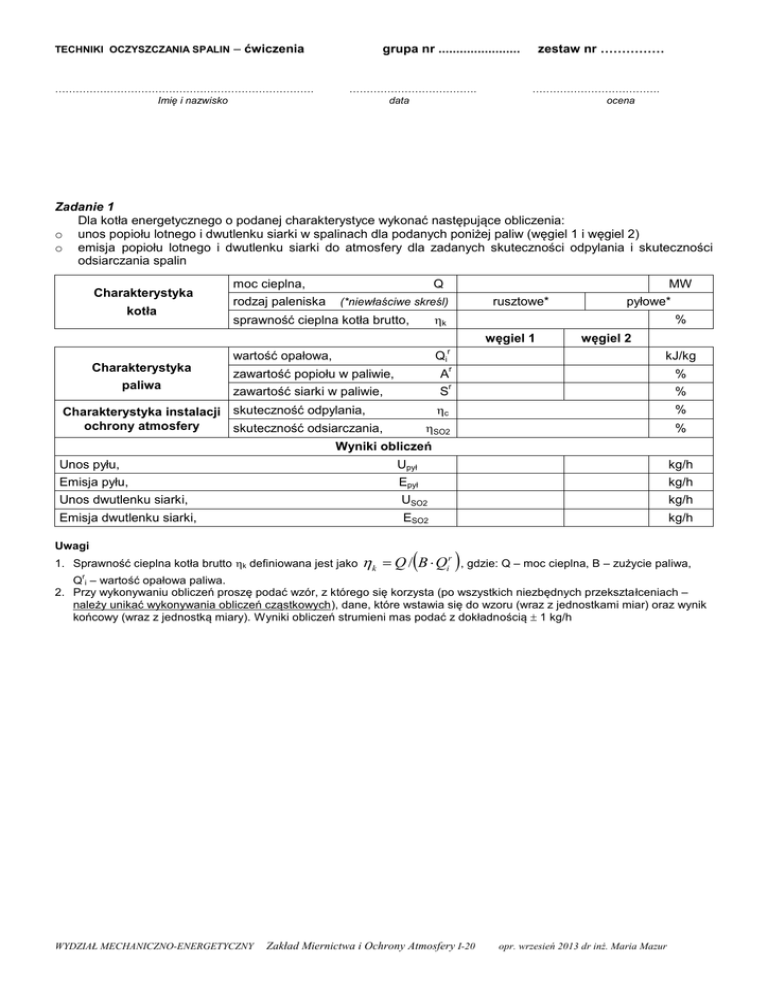
TECHNIKI OCZYSZCZANIA SPALIN
– ćwiczenia
…………………………………………………………………
Imię i nazwisko
grupa nr .......................
……………………………….
data
zestaw nr ……………
……………………………….
ocena
Zadanie 1
Dla kotła energetycznego o podanej charakterystyce wykonać następujące obliczenia:
o unos popiołu lotnego i dwutlenku siarki w spalinach dla podanych poniżej paliw (węgiel 1 i węgiel 2)
o emisja popiołu lotnego i dwutlenku siarki do atmosfery dla zadanych skuteczności odpylania i skuteczności
odsiarczania spalin
Charakterystyka
kotła
moc cieplna,
rodzaj paleniska
Q
MW
(*niewłaściwe skreśl)
rusztowe*
k
sprawność cieplna kotła brutto,
%
węgiel 1
wartość opałowa,
Charakterystyka
pyłowe*
Qi
węgiel 2
r
kJ/kg
r
zawartość popiołu w paliwie,
A
%
zawartość siarki w paliwie,
S
r
%
Charakterystyka instalacji skuteczność odpylania,
ochrony atmosfery
skuteczność odsiarczania,
c
%
SO2
%
paliwa
Wyniki obliczeń
Unos pyłu,
Upył
kg/h
Emisja pyłu,
Epył
kg/h
Unos dwutlenku siarki,
USO2
kg/h
Emisja dwutlenku siarki,
ESO2
kg/h
Uwagi
1. Sprawność cieplna kotła brutto k definiowana jest jako
 k  Q / B  Qir  , gdzie: Q – moc cieplna, B – zużycie paliwa,
r
Q i – wartość opałowa paliwa.
2. Przy wykonywaniu obliczeń proszę podać wzór, z którego się korzysta (po wszystkich niezbędnych przekształceniach –
należy unikać wykonywania obliczeń cząstkowych), dane, które wstawia się do wzoru (wraz z jednostkami miar) oraz wynik
końcowy (wraz z jednostką miary). Wyniki obliczeń strumieni mas podać z dokładnością  1 kg/h
WYDZIAŁ MECHANICZNO-ENERGETYCZNY
Zakład Miernictwa i Ochrony Atmosfery I-20
opr. wrzesień 2013 dr inż. Maria Mazur
TECHNIKI OCZYSZCZANIA SPALIN
– ćwiczenia
grupa nr .......................
…………………………………………………………………
Imię i nazwisko
zestaw nr ……………
……………………………….
data
……………………………….
ocena
Zadanie 2
W instalacji odpylającej wykonano pomiary, których wyniki przedstawiono w tabeli poniżej. Obliczyć i przedstawić na schemacie wartości wszystkich strumieni masy pyłu w instalacji. Obliczyć i podać na schemacie (pod
tabelą) wartości skuteczność działania 1 i 2 stopnia odpylania gazu oraz skuteczność odpylania gazu w całej instalacji.
WLOT GAZU DO 1 STOPNIA ODPYLANIA
3
u
Stężenie pyłu w gazie
S1, g/m
Strumień objętości gazu w warunkach pomiaru
qv1, m /s
Gęstość gazu w warunkach pomiaru
1, kg/m
3
1u, kg/m
3
u
Gęstość gazu w warunkach umownych
3
WLOT GAZU DO 2 STOPNIA ODPYLANIA
3
u
Stężenie pyłu w gazie
S2, g/m
Strumień objętości gazu w warunkach pomiaru
qv2, m /s
Gęstość gazu w warunkach pomiaru
2, kg/m
3
2u, kg/m
3
u
Gęstość gazu w warunkach umownych
3
WYLOT GAZU DO ATMOSFERY
Stężenie pyłu w gazie
SE, mg/m
3
u
3
Strumień objętości gazu w warunkach pomiaru
qvE, m /s
Gęstość gazu w warunkach pomiaru
E, kg/m
3
Eu, kg/m
3
u
Gęstość gazu w warunkach umownych
PYŁ WYTRĄCONY W 1 STOPNIU ODPYLANIA
Masa pyłu
mZ1, kg
1, s
Czas pomiaru
PYŁ WYTRĄCONY W 2 STOPNIU ODPYLANIA
Masa pyłu
mZ2, kg
2, s
Czas pomiaru
Uwagi
3
1. m u – odniesiony do umownych wartości ciśnienia absolutnego (1013 hPa) i temperatury absolutnej (273 K) oraz do rzeczywistego składu chemicznego gazu.
2. Przy wykonywaniu obliczeń proszę podać wzór, z którego się korzysta (po wszystkich niezbędnych przekształceniach –
należy unikać wykonywania obliczeń cząstkowych), dane, które wstawia się do wzoru (wraz z jednostkami miar) oraz wynik końcowy (wraz z jednostką miary). Wyniki obliczeń strumieni mas pyłu podać z dokładnością  0,1 kg/h a skuteczności odpylania z dokładnością  0,1 %
Schemat
WYDZIAŁ MECHANICZNO-ENERGETYCZNY
Zakład Miernictwa i Ochrony Atmosfery I-20
opr. wrzesień 2013 dr inż. Maria Mazur
TECHNIKI OCZYSZCZANIA SPALIN
– ćwiczenia
…………………………………………………………………
Imię i nazwisko
grupa nr .......................
……………………………….
data
zestaw nr ……………
……………………………….
ocena
Zadanie 3
Dla odpylacza o podanej na wykresie charakterystyce przedziałowej skuteczności odpylania oraz dla pyłów
o podanym składzie ziarnowym oszacować przewidywaną całkowitą skuteczność odpylania. Skomentować uzyskane wyniki obliczeń całkowitej skuteczności odpylania.
UNOS 1
UNOS 2
i-1 - i
śr*
pi
Ri
 Ri
pi  Ri
Ri
 Ri
pi  Ri
m
m
%
%
%
%
%
%
%
0-3
1,5
3-5
5 - 10
10 - 15
15 - 20
20 - 25
25 - 30
30 - 40
40 - 50
50 - 100
100 - 200
>200
Ri
Całkowita skuteczność odpylania
*
sr  i 1  i  1 m (za wyjątkiem wiersza 1)
Przy wykonywaniu obliczeń proszę podać wzór, z którego się korzysta (po wszystkich niezbędnych przekształceniach – należy
unikać wykonywania obliczeń cząstkowych), dane, które wstawia się do wzoru (wraz z jednostkami miar) oraz wynik końcowy
(wraz z jednostką miary). ). Wyniki obliczeń skuteczności odpylania podać z dokładnością  c =0,1 %.
WYDZIAŁ MECHANICZNO-ENERGETYCZNY
Zakład Miernictwa i Ochrony Atmosfery I-20
opr. wrzesień 2013 dr inż. Maria Mazur
TECHNIKI OCZYSZCZANIA SPALIN
– ćwiczenia
…………………………………………………………………
Imię i nazwisko
grupa nr .......................
……………………………….
data
zestaw nr ……………
……………………………….
ocena
Dane pomiarowe
Zadanie 4
Wykorzystując przedstawione poniżej dane pomiarowe oraz zakładając, że nominalna prędkość wlotowa
gazu do cyklonu wynosi 12 m/s, dobrać z katalogu baterię odpylaczy cyklonowych typoszeregu CE.
Następnie oszacować średnicę ziarna granicznego i spadek ciśnienia gazu w baterii cyklonów typu CE/04 oraz w
baterii cyklonów typu CE/05 i skomentować różnice w wartościach ziarna granicznego i spadku ciśnienia oszacowanych dla obu typów cyklonów.
ciśnienie barometryczne
Pb
hPa
ciśnienie manometryczne spalin za kotłem
Pm
Pa
temperatura spalin za kotłem
t
1,977
3
kg/m u
3
kg/m u
3
kg/m u
3
kg/m u
Wyniki
obliczeń
C
%
O2
%
N2
%
H2O
%
średnia wartość ciśnienia dynamicznego spalin (pomiar rurką Prandtla)
Pd
Pa
pole powierzchni przekroju pomiarowego
A
m
u
kg/m
gęstość spalin wilgotnych w warunkach rzeczywistych ( 0,01 kg/m )

kg/m
prędkość spalin ( 0,1 m/s)
v
m/s
qv
m /s
v0
m/s
P
Pa
gr
m
spadek ciśnienia gazu w cyklonie ( 50 Pa)
P
Pa
średnica ziarna granicznego ( 0,5 m)
gr
m
1,429
1,250
0,804
3
gęstość spalin wilgotnych w warunkach umownych ( 0,01 kg/m )
3
3
strumień objętości spalin ( 0,01 m /s)
Dane katalogowe
producenta
0
CO2
skład chemiczny spalin wilgotnych i gęstość składników
spalin w warunkach umownych
1000
2
3
u
3
3
typ - ilość x średnica dobranych cyklonów (w mm)
prędkość wlotowa spalin do cyklonu ( 0,1 m/s)
CE/04
spadek ciśnienia gazu w cyklonie ( 50 Pa)
średnica ziarna granicznego
CE/05
( 0,5 m)
Przy wykonywaniu obliczeń proszę podać wzór, z którego się korzysta (po wszystkich niezbędnych przekształceniach – należy
unikać wykonywania obliczeń cząstkowych), dane, które wstawia się do wzoru (wraz z jednostkami miar) oraz wynik końcowy
(wraz z jednostką miary).
WYDZIAŁ MECHANICZNO-ENERGETYCZNY
Zakład Miernictwa i Ochrony Atmosfery I-20
opr. wrzesień 2013 dr inż. Maria Mazur
TECHNIKI OCZYSZCZANIA SPALIN
– ćwiczenia
grupa nr .......................
…………………………………………………………………
Imię i nazwisko
zestaw nr ……………
……………………………….
data
……………………………….
ocena
Zadanie 5
Procesowi mokrego odsiarczania poddane zostały spaliny pochodzące ze spalania paliwa o parametrach podanych w poniższej tabeli. Dla znanej skuteczności odsiarczania należy wyznaczyć zużycie sorbentu CaCO 3 (wapniaka) oraz strumień masy wody traconej w trakcie procesu odsiarczania.
Typ kotła
(*niewłaściwe skreśl) węgiel kamienny* węgiel brunatny*
Dane wyjściowe
Rodzaj spalanego paliwa
Zużycie paliwa
B
Mg/h
Wartość opałowa paliwa
Q ri
kJ/kg
Zawartość siarki w paliwie
r
S
%
Udział O2 w spalinach za kotłem
%
Temperatura spalin przed absorberem
O2
t s1
ºC
Temperatura spalin za absorberem
t s2
ºC
SO 2
%
t wp
ºC
Strumień objętości spalin wilgotnych w warunkach umownych (Pu, Tu)
– przed absorberem
q v u
um /h
Unos SO2 w spalinach kotłowych
USO 2
kg/h
RCaCO3
kg/h
Strumień masy produktu reakcji – gipsu (CaSO4  2H2O)
Mgips
kg/h
Strumień masy wody traconej w instalacji w wyniku odparowania
MH2O
kg/h
Skuteczność odsiarczania
Wyniki obliczeń
Temperatura wody na wlocie do układu
Strumień masy przereagowanego sorbentu
3
Przy wykonywaniu obliczeń proszę podać wzór, z którego się korzysta (po wszystkich niezbędnych przekształceniach – należy
unikać wykonywania obliczeń cząstkowych), dane, które wstawia się do wzoru (wraz z jednostkami miar) oraz wynik końcowy
3
(wraz z jednostką miary). Strumień objętości spalin podać z dokładnością  10 um /h, strumienie mas podać z dokładno-
ścią  1 kg/h.
Wzory pomocnicze
Teoretyczna objętość spalin wilgotnych ze spalenia 1 kg węgla o danej wartości
3
opałowej dla współczynnika nadmiaru powietrza   1 , um /kg
t
Vmin
 0,89
Teoretyczne zapotrzebowanie powietrza do spalenia 1 kg węgla o danej wartości
3
opałowej, um /kg
Vpt  1,012
Współczynnik nadmiaru powietrza
ciepło parowania wody Cr  2149,5 kJ/kg
gęstość spalin wilgotnych w warunkach umownych:
3
3
dla węgla kamiennego  u= 1,30 kg/m , dla węgla brunatnego  u = 1,26 kg/m
WYDZIAŁ MECHANICZNO-ENERGETYCZNY
Zakład Miernictwa i Ochrony Atmosfery I-20
4186,8
Q ri
4186,8
20,9

20,9  O 2
Strumień masy wody traconej w instalacji w wyniku odparowania
Dane tablicowe: temperatura parowania kropli wody t wk  100 ,
ciepło właściwe: spalin C ps  1,0825 kJ/(kg K), wody C pw  4,181 kJ/(kg K),
Q ri
MH2O 
 1,65
 0,5
q v u u C ps t s1  t s2 

C r  C pw t wk  t wp
opr. wrzesień 2013 dr inż. Maria Mazur

TECHNIKI OCZYSZCZANIA SPALIN
– ćwiczenia
grupa nr .......................
…………………………………………………………………
Imię i nazwisko
zestaw nr ……………
……………………………….
data
……………………………….
ocena
Zadanie 6
Procesowi odsiarczania metodą półsuchą (dry scrubbing) z wykorzystaniem sorbentu Ca(OH)2 poddane zostały spaliny pochodzące ze spalania paliwa o parametrach podanych w poniższej tabeli. Charakterystykę wpływu
stosunku Ca/S (dla zakresu Ca/S=1÷2) na skuteczność odsiarczania wyrażoną w % opisuje wzór empiryczny
SO2  20( Ca / S )  44 . Obliczyć stężenie SO2 w spalinach emitowanych do atmosfery oraz sporządzić bilans
sorbentu w instalacji odsiarczającej (schemat).
Dane wyjściowe
Typ kotła
(niewłaściwe skreśl) węgiel kamienny
Rodzaj spalanego paliwa
Zużycie paliwa
B
Mg/h
Wartość opałowa paliwa
Q ri
r
kJ/kg
Zawartość siarki w paliwie
Skuteczność odsiarczania
Udział O2 w spalinach za kotłem
Strumień objętości spalin wilgotnych w warunkach umownych (Pu, Tu)
Wyniki obliczeń
węgiel brunatny
S
SO 2
%
O2
%
q v u
%
3
um /h
Unos SO2 w spalinach kotłowych
Stężenie SO2 w spalinach emitowanych do atmosfery odniesione do
warunków umownych (Pu, Tu)
Stosunek molowy Ca/S
USO 2
Ca/S
-
Strumień masy sorbentu wprowadzonego do instalacji odsiarczającej
MCa( OH )2
kg/h
MCa( OH )2
kg/h
MCaSO 3
kg/h
Strumień masy nieprzereagowanego sorbentu
Strumień masy produktu reakcji (CaSO3)
S SO 2
kg/h
mg/m
3
Przy wykonywaniu obliczeń proszę podać wzór, z którego się korzysta (po wszystkich niezbędnych przekształceniach – należy
unikać wykonywania obliczeń cząstkowych), dane, które wstawia się do wzoru (wraz z jednostkami miar) oraz wynik końcowy
3
(wraz z jednostką miary). Strumień objętości spalin podać z dokładnością  10 um /h, strumienie mas podać z dokładno-
ścią  1 kg/h.
Wzory pomocnicze
Teoretyczna objętość spalin wilgotnych ze spalenia 1 kg węgla o
danej wartości opałowej dla współczynnika nadmiaru powietrza
  1 , um3/kg
t
Vmin
 0,89
Teoretyczne zapotrzebowanie powietrza do spalenia 1 kg węgla o
3
danej wartości opałowej, um /kg
Vpt  1,012
Współczynnik nadmiaru powietrza

Qri
 1,65
4186,8
Qri
 0,5
4186,8
20,9
20,9  O2
Schemat: Bilans sorbentu w instalacji
WYDZIAŁ MECHANICZNO-ENERGETYCZNY
Zakład Miernictwa i Ochrony Atmosfery I-20
opr. wrzesień 2013 dr inż. Maria Mazur