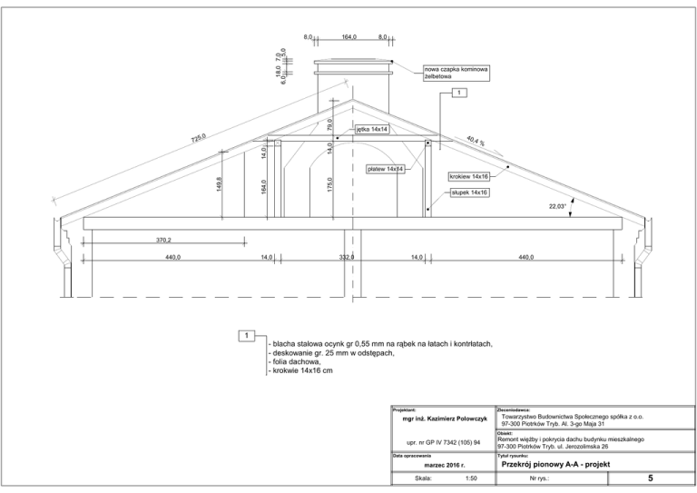
1 - blacha stalowa ocynk gr 0,55 mm na rąbek na łatach i kontrłatach

Transkrypt

1 - blacha stalowa ocynk gr 0,55 mm na rąbek na łatach i kontrłatach
164,0
8,0
18,0 7,0
6,0
5,0
8,0
nowa czapka kominowa
Ŝelbetowa
79,0
1
jętka 14x14
40,
4%
14,0
14,0
,0
725
krokiew 14x16
175,0
164,0
149,8
płatew 14x14
słupek 14x16
22,03°
370,2
440,0
14,0
332,0
14,0
440,0
1
- blacha stalowa ocynk gr 0,55 mm na rąbek na łatach i kontrłatach,
- deskowanie gr. 25 mm w odstępach,
- folia dachowa,
- krokwie 14x16 cm
Projektant:
Zleceniodawca:
mgr inŜ. Kazimierz Polowczyk
Towarzystwo Budownictwa Społecznego spółka z o.o.
97-300 Piotrków Tryb. Al. 3-go Maja 31
Obiekt:
upr. nr GP IV 7342 (105) 94
Data opracowania
Tytuł rysunku:
Przekrój pionowy A-A - projekt
marzec 2016 r.
Skala:
Remont więźby i pokrycia dachu budynku mieszkalnego
97-300 Piotrków Tryb. ul. Jerozolimska 26
1:50
Nr rys.:
5