06 D01 - MINIRAMPA _ Arkusz - Miasto i Gmina Grodzisk Mazowiecki

Transkrypt

06 D01 - MINIRAMPA _ Arkusz - Miasto i Gmina Grodzisk Mazowiecki
780
780
C
360
B
B
240
quarter: promień 260cm
quarter: promień 260cm
240
300
240
240
quarter: promień 260cm
300
240
360
840
360
wykończenie krawędzi rurą
ocynkowaną O48mm
A
rzut
barierka drewniana h=120cm wg technologii wykonawcy
barierka drewniana h=120cm wg technologii wykonawcy
120
+2.70
wykończenie krawędzi rurą
ocynkowaną O48mm
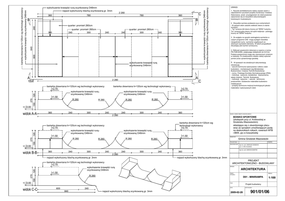
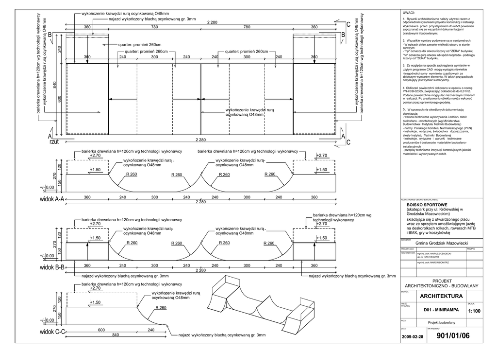
2. Wszystkie wymiary podawane są w centymetrach.
- W opisach okien zawarto wielkość otworu w stanie
surowym:
- "hp" oznacza dół otworu liczony od "ZERA" budynku;
"hn" oznacza górę otworu lub spód nadproża - podciągu
liczony od "ZERA" budynku.
3. Ze względu na sposób zaokrąglania wymiarów w
użytym programie CAD mogą wystąpić niewielkie
niezgodności sumy wymiarów cząstkowych ze
zbiorczym wymiarem elementu. W takich przypadkach
decydujący jest wymiar sumaryczny.
4. Oblliczeń powierzchni dokonano w oparciu o normę
PN-70/B-02365, zwiększając dokładność do 0,01m2.
Podane powierzchnie mogą ulec nieznacznym zmianom
w realizacji. Po zrealizowaniu obiektu należy wykonać
pomiar przez uprawnionego geodetę.
5 . W sprawach nie określonych dokumentacją
obowiazują:
- warunki techniczne wykonywania i odbioru robót
budowlano - montażowych (wg Ministerstwa
Budownictwa i Instytutu Techniki Budowlanej)
- normy Polskiego Komitetu Normalizacyjnego (PKN)
- instrukcje, wytyczne, świadectwa dopuszczenia,
atesty Instytutu Techniki Budowlanej
- instrukcje, wytyczne i warunki techniczne
producentów i dostawców materiałów budowlanoinstalacyjnych
- przepisy techniczne instytucji kontrolujacych jakości
materiałów i wykonywanych robót.
+1.50
270
R 260
R 260
R 260
360
240
300
240
240
300
240
wykończenie krawędzi rurą
ocynkowaną O48mm
+1.50
+1.50
270
BOISKO SPORTOWE
(skatepark przy ul. Królewskiej w
Grodzisku Mazowieckim)
składające się z utwardzonego placu
wraz ze sprzętem umożliwiającym jazdę
na deskorolkach rolkach, rowerach MTB
i BMX, gry w koszykówkę
+2.70
wykończenie krawędzi rurą
ocynkowaną O48mm
R 260
NAZWA I ADRES OBIEKTU BUDOWLANEGO
barierka drewniana h=120cm wg
technologii wykonawcy
+2.70
120
360
2 280
barierka drewniana h=120cm wg technologii wykonawcy
R 260
R 260
INWESTOR
Gmina Grodzisk Mazowiecki
R 260
PODPIS
150
PROJEKTANCI:
ARCHITEKTURA
mgr inż. arch. MARIUSZ CENDECKI
upr. nr 6/R-31/ŁOIA/03
widok B-B
360
240
300
240
240
300
mgr inż. arch. MARCIN DOMITRZ
360
najazd wykończony blachą ocynkowaną gr. 3mm
barierka drewniana h=120cm wg technologii wykonawcy
+2.70
wykończenie krawędzi rurą
ocynkowaną O48mm
+1.50
270
120
240
2 280
najazd wykończony blachą ocynkowaną gr. 3mm
PROJEKT
ARCHITEKTONICZNO - BUDOWLANY
BRANŻA
ARCHITEKTURA
SKALA
TREŚĆ
RYSUNKU
R 260
D01 - MINIRAMPA
150
+/- 0.00
+2.70
1. Rysunki architektoniczne należy używać razem z
odpowiednimi rysunkami projektu konstrukcji i instalacji.
Wykonawca przed przystąpieniem do robót powienien
zapoznanać się ze wszystkimi dokumentacjami
branżowymi i budowlanymi.
wykończenie krawędzi rurą
ocynkowaną O48mm
+1.50
R 260
widok A-A
+/- 0.00
C
UWAGI:
150
+/- 0.00
A
2 280
wykończenie krawędzi rurą ocynkowaną O48mm
barierka drewniana h=120cm wg technologii wykonawcy
360
2 280
600
wykończenie krawędzi rurą ocynkowaną O48mm
barierka drewniana h=120cm wg technologii wykonawcy
wykończenie krawędzi rurą ocynkowaną O48mm
najazd wykończony blachą ocynkowaną gr. 3mm
widok C-C
FAZA
600
DATA
240
840
najazd wykończony blachą ocynkowaną gr. 3mm
2009-02-28
1:100
Projekt budowlany
NR RYSUNKU
901/01/06