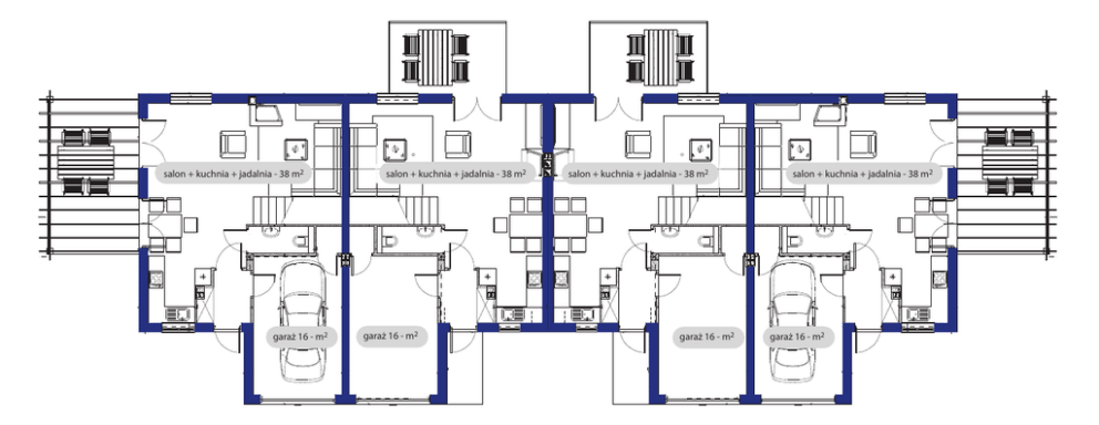
KLONOWA parter - SAINZ Development SA

Transkrypt

KLONOWA parter - SAINZ Development SA
salon + kuchnia + jadalnia - 38 m2
garaż 16 - m2
salon + kuchnia + jadalnia - 38 m2
garaż 16 - m2
salon + kuchnia + jadalnia - 38 m2
garaż 16 - m2
2
salon + kuchnia + jadalnia - 38 m2
garaż 16 - m2