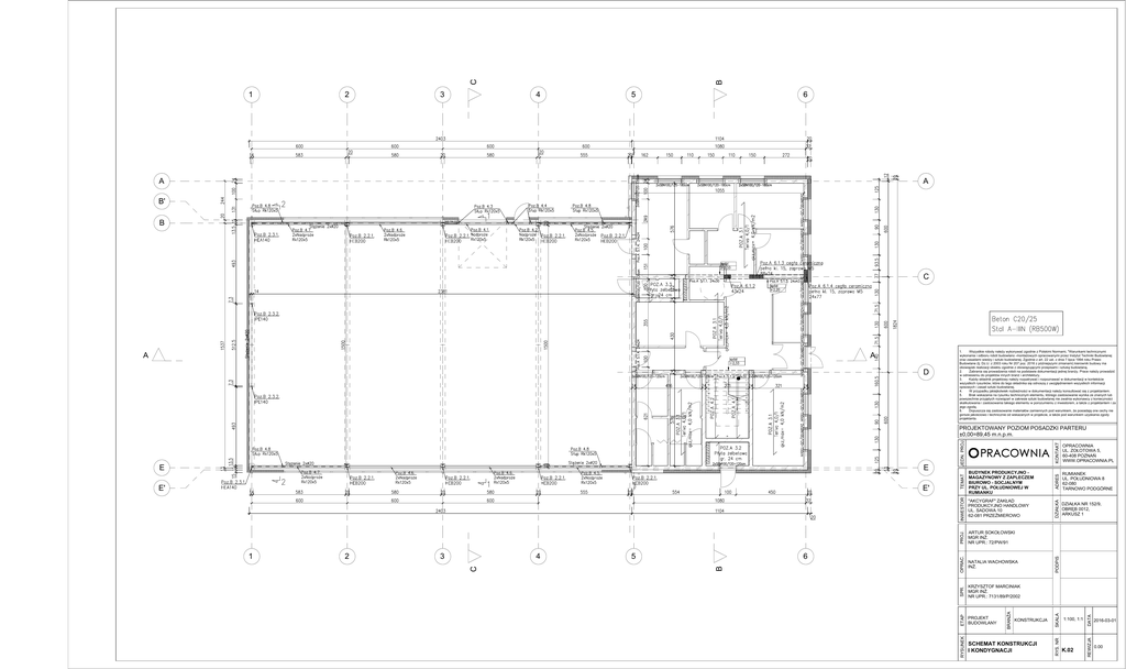
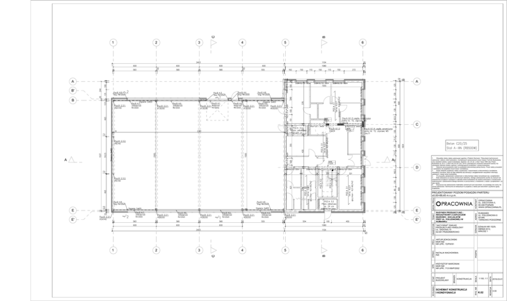
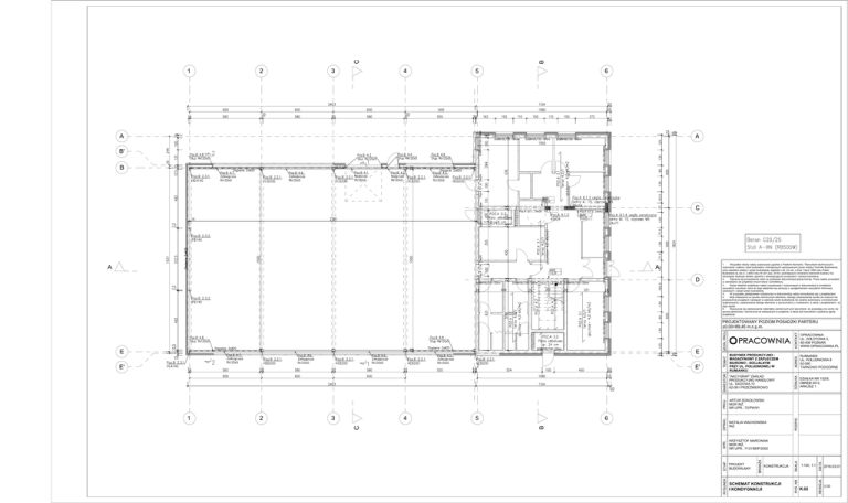
schemat konstrukcji i kondygnacji

Transkrypt

schemat konstrukcji i kondygnacji
1
2
3
4
5
6
A
A
B'
B
HP DN 52
C
A
A
D
1.
Wszystkie roboty należy wykonywać zgodnie z Polskimi Normami, "Warunkami technicznymi
wykonania i odbioru robót budowlano -montażowych opracowanymi przez Instytut Techniki Budowlanej
oraz zasadami wiedzy i sztuki budowlanej. Zgodnie z art. 22 ust. z dnia 7 lipca 1994 roku Prawo
Budowlane (tj. Dz.U. z 2003 roku Nr 207 poz. 2016 z późniejszymi zmianami) kierownik budowy ma
obowiązek realizacji obiektu zgodnie z obowiązującymi przepisami i sztuką budowlaną.
2.
Zabrania się prowadzenia robót na podstawie dokumentacji jednej branży. Prace należy prowadzić
w odniesieniu do projektów innych branż i architektury.
3.
Każdy składnik projektowy należy rozpatrywać i rozpoznawać w dokumentacji w kontekście
wszystkich rysunków, które do tego składnika się odnoszą z uwzględnieniem wszystkich informacji
opisowych i zasad sztuki budowlanej.
4.
W przypadku jakiejkolwiek rozbieżności w dokumentacji należy konsultować się z projektantem.
5.
Brak wskazania na rysunku technicznym elementu, którego zastosowanie wynika ze znanych lub
powszechnie przyjętych rozwiązań w zakresie sztuki budowlanej nie zwalnia wykonawcy z konieczności
skalkulowania i zastosowania takiego elementu w porozumieniu z inwestorem, a także z projektantem i za
jego zgodą.
6.
Dopuszcza się zastosowanie materiałów zamiennych pod warunkiem, że posiadają one cechy nie
gorsze jakościowo i technicznie od wskazanych w projekcie, a także pod warunkiem uzyskania zgody
projektanta.
KONTAKT
K.02
DATA
1:100, 1:1
2016-03-01
REWIZJA
SCHEMAT KONSTRUKCJI
I KONDYGNACJI
KONSTRUKCJA
ADRES
PROJEKT
BUDOWLANY
DZIAŁKA
KRZYSZTOF MARCINIAK
MGR INŻ.
NR UPR.: 7131/89/P/2002
DZIAŁKA NR 152/9,
OBRĘB 0012,
ARKUSZ 1
PODPIS
NATALIA WACHOWSKA
INŻ.
RUMIANEK
UL. POŁUDNIOWA 8
62-080
TARNOWO PODGÓRNE
SKALA
6
OPRACOWNIA
UL. ZOŁOTOWA 5,
60-408 POZNAŃ
WWW.OPRACOWNIA.PL
RYS. NR
5
ARTUR SOKOŁOWSKI
MGR INŻ.
NR UPR.: 72/PW/91
BRANŻA
4
TEMAT
3
INWESTOR
2
PROJ.
1
"AKCYGRAF" ZAKŁAD
PRODUKCYJNO HANDLOWY
UL. SADOWA 10
62-081 PRZEŹMIEROWO
OPRAC.
E'
SPR.
E'
BUDYNEK PRODUKCYJNO MAGAZYNOWY Z ZAPLECZEM
BIUROWO - SOCJALNYM
PRZY UL. POŁUDNIOWEJ W
RUMIANKU
ETAP
E
RYSUNEK
E
JEDN. PROJ.
PROJEKTOWANY POZIOM POSADZKI PARTERU
±0,00=89,45 m.n.p.m.
0.00