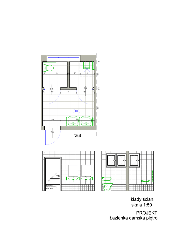
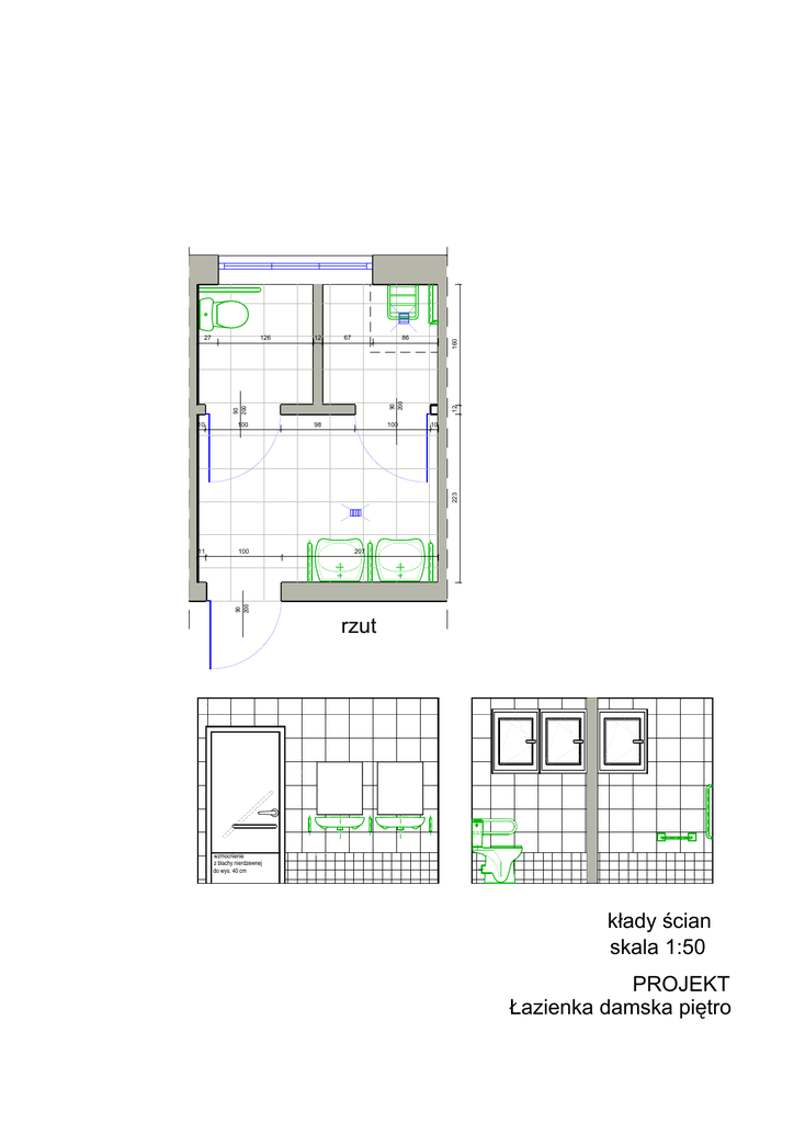
rzut skala 1:50 kłady ścian Łazienka damska piętro PROJEKT

Transkrypt

rzut skala 1:50 kłady ścian Łazienka damska piętro PROJEKT
67
86
100
11
100
98
100
12
10
223
10
160
12
90
200
126
90
200
27
90
200
207
rzut
wzmocnienie
z blachy nierdzewnej
do wys. 40 cm
kłady ścian
skala 1:50
PROJEKT
Łazienka damska piętro