Dokumentacja projektowa ( zał. nr 8 )

Transkrypt

Dokumentacja projektowa ( zał. nr 8 )
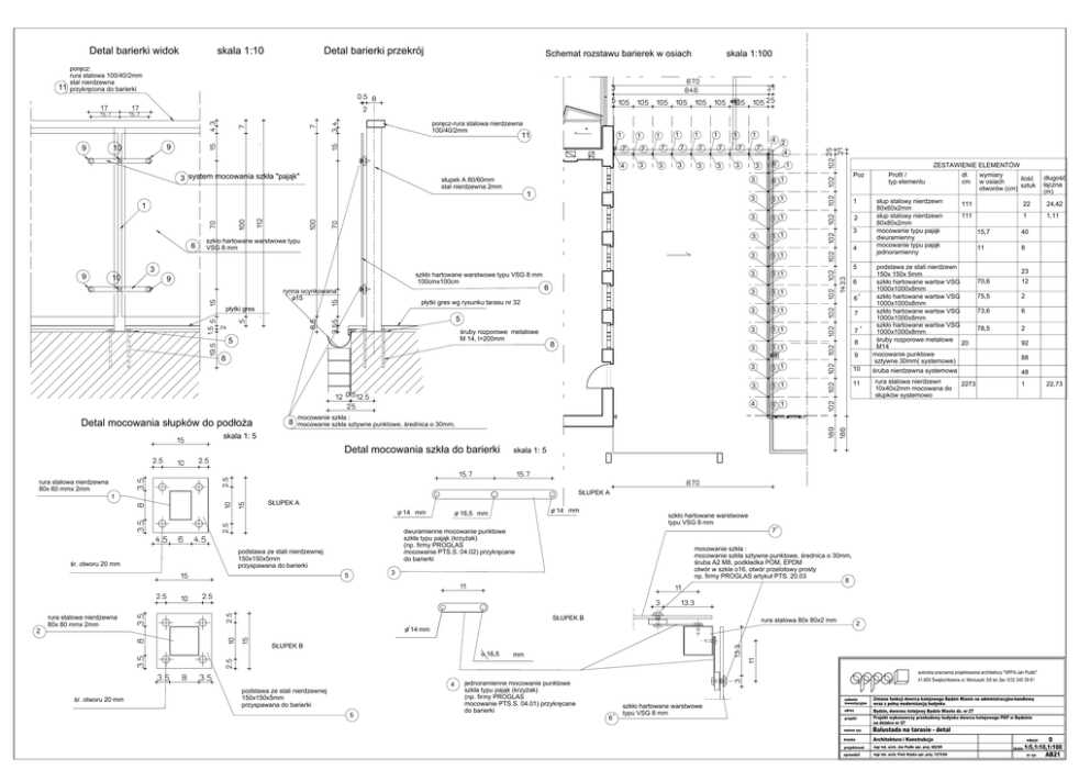
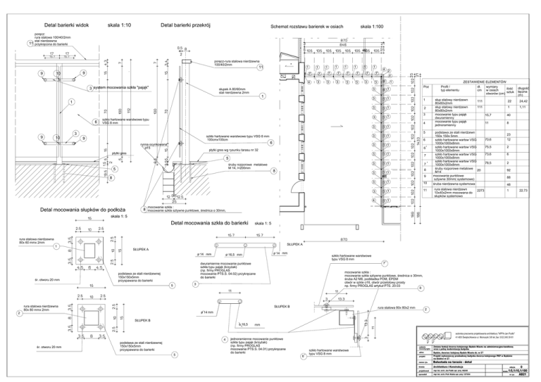
Detal barierki widok
11
skala 1:10
Detal barierki przekrój
Schemat rozstawu barierek w osiach
skala 1:100
poręcz:
rura stalowa 100/40/2mm
stal nierdzewna
przykręcona do barierki
poręcz-rura stalowa nierdzewna
100/40/2mm
11
9
1
9
10
3 system mocowania szkła "pająk"
słupek A 80/60mm
stal nierdzewna 2mm
1
1
1
7
7
4
3
7
3
1
7
3
1
1
1
7
7
3
3
3
1
1
6
9
10
3
szkło hartowane warstwowe typu
VSG 8 mm
szkło hartowane warstwowe typu VSG 8 mm
100cmx100cm
9
rynna ocynkowana
o15
6
płytki gres wg rysunku tarasu nr 32
płytki gres
5
śruby rozporowe metalowe
M 14, l=200mm
5
8
8
Detal mocowania słupków do podłoża
7
7
3
4 2
4
6
ZESTAWIENIE ELEMENTÓW
1
Poz
3
6 1
3
6 1
1
3
6 1
2
3
6 1
3
6 1
3
6 1
3
6 1
3
6 1
7
3
6 1
7
3
6 1
3
6 1
10
3
6 1
11
4
6 1
3
4
5
6
6
8
9
Profil /
typ elementu
słup stalowy nierdzewn
80x60x2mm
słup stalowy nierdzewn
80x80x2mm
mocowanie typu pająk
dwuramienny
mocowanie typu pająk
jednoramienny
dł.
cm
długość
łączna
(m)
111
22
24,42
111
1
1,11
podstawa ze stali nierdzewn
150x 150x 5mm
szkło hartowane wartsw VSG
1000x1000x8mm
szkło hartowane wartsw VSG
1000x1000x8mm
szkło hartowane wartsw VSG
1000x1000x8mm
szkło hartowane wartsw VSG
1000x1000x8mm
śruby rozporowe metalowe
20
M14
mocowanie punktowe
sztywne 30mm( systemowe)
śruba nierdzewna systemowa
rura stalowa nierdzewn
10x40x2mm mocowana do
słupków systemowo
wymiary
ilość
w osiach
otworów (cm) sztuk
2273
15,7
40
11
8
23
70,6
12
75,5
2
73,6
6
78,5
2
92
88
48
1
22,73
mocowanie szkła :
8 mocowanie szkła sztywne punktowe, średnica o 30mm,
skala 1: 5
Detal mocowania szkła do barierki
rura stalowa nierdzewna
80x 60 mmx 2mm
1
SŁUPEK A
SŁUPEK A
o 14 mm
śr. otworu 20 mm
podstawa ze stali nierdzewnej
150x150x5mm
przyspawana do barierki
szkło hartowane warstwowe
typu VSG 8 mm
7
mocowanie szkła :
mocowanie szkła sztywne punktowe, średnica o 30mm,
śruba A2 M8, podkładka POM, EPDM
otwór w szkle o16, otwór przelotowy prosty
np. firmy PROGLAS artykuł PTS. 20.03
8
3
rura stalowa nierdzewna
80x 80 mmx 2mm
SŁUPEK B
rura stalowa 80x 80x2 mm
2
o 14 mm
SŁUPEK B
śr. otworu 20 mm
o 14 mm
o 16,5 mm
dwuramienne mocowanie punktowe
szkła typu pająk (krzyżak)
(np. firmy PROGLAS
mocowanie PTS.S. 04.02) przykręcane
do barierki
5
2
skala 1: 5
o 16,5
4
podstawa ze stali nierdzewnej
150x150x5mm
przyspawana do barierki
5
mm
jednoramienne mocowanie punktowe
szkła typu pająk (krzyżak)
(np. firmy PROGLAS
mocowanie PTS.S. 04.01) przykręcane
do barierki
autorska pracownia projektowania architektury "APPA-Jan Pudło"
41-605 Świętochłowice ul. Moniuszki 3/8 tel.,fax: 0/32 245 39 61
6
szkło hartowane warstwowe
typu VSG 8 mm
zadanie
inwestycyjne
Zmiana funkcji dworca kolejowego Będzin Miasto na administracyjno-handlową
wraz z pełną modernizacją budynku
adres
Będzin, dworzec kolejowy Będzin Miasto dz. nr 27
Projekt wykonawczy przebudowy budynku dworca kolejowego PKP w Będzinie
na działce nr 27
projekt
nazwa rys.
Balustada na tarasie - detal
branża
Architektura i Konstrukcja
projektował
mgr inż. arch. Jan Pudło upr. proj. 482/85
sprawdził
mgr inż. arch. Piotr Kózka upr. proj. 1275/94
skala:
edycja
0
1:5,1:10,1:100
nr rys
AB21