E:\PROJEKTY\Wojsko zamość\Nowy folder (3)\Rysunk i.dwg

Transkrypt

E:\PROJEKTY\Wojsko zamość\Nowy folder (3)\Rysunk i.dwg
wiatrołap
11
Sanitariat
2/4
1/4
1/3
2/1
1/5
9
6
2/2
elektroliciarnia
szatnia
kancelaria
techniczna
Warsztat
mechaniczny
pomieszczenie
przechowywania
akumólatorów
ławki
3/1
1/2
1/1
8
destylatornia wody
10
Przedsionek sanit.
2/3
7
3/2
korytarz
WLZ typu 5x Lgy 16mm˛ ułożony
w rurze ochronnej RL 37
2/5
wył.
ppoż.
In=125A
proj.
ZK-2a
4/3
Pomieszczenie
socjalne
12
RG
4/4
R1
blat kuchenny
+ szafki kuchenne
R<30Ω
Akumulatory
V kategoria
1/10
1/9
1/8
1/7
1/6
1/5
1/4
1/3
1/2
1/1
prysznic
+ oczomyjka
zestaw BHP
ładownia
rozdzielnia
5/3
wózek do przewozu akumulatorów
5/1
4/2
5/2
4/1
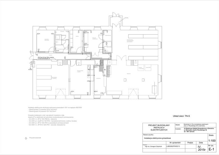
Instalacja elektryczna wtynkowa wykonana przewodami YDY na napięcie 450/750V
- Obwód gniazd 1f przewód YDYp 3x2,5mm²
- Obwód gniazd 3f przewód YDY 5x2,5mm²
Gniazda instalacyjne prod. wg zaleceń inwestora o odp.
stopniu IP w zależności od warunków środowiskowych pomieszczenia
- Gn 230V n.t. 2P+Z 16A IP66 Ex - ładownia
- Gn 230V p.t. 2x(2P+Z) 16A IP22 - kancelaria techniczna, szatnia, korytarz
- Gn 230V p.t. 2P+Z 16A IP44 w pozostałych pomieszczeniach
- Gn 400V n.t. 3P+N+Z 32A IP44 - warsztat, destylatornia
Układ sieci: TN-S
PROJEKT BUDOWLANY
INSTALACJI
ELEKTRYCZNYCH
Obiekt:
Budynkek nr 35 w kompleksie wojskowym
przy ul. Piłsudskiego 36 w Zamościu
Inwestor:
32 Wojskowy Oddział Gospodarczy w Zamościu
ul. Marszałka Józefa Piłsudskiego 36
22 - 400 Zamość
Nazwa rysunku:
Przycisk dzwonek
Skala:
Instalacja elektryczna gniazdowa
Nr uprawnień
Podpis
Data
Projektant:
mgr inż. Grzegorz Studnicki
LUB/0280/PWOE/13
IV.
2015r
1:100
Nr rys.
E-1
wiatrołap
Sanitariat
elektroliciarnia
AW
Warsztat
mechaniczny
szatnia
pomieszczenie
przechowywania
akumólatorów
ławki
kancelaria
techniczna
Przedsionek
sanit.
destylatornia wody
AW
AW
korytarz
AW
prysznic
+ oczomyjka
blat kuchenny
+ szafki kuchenne
Pomieszczenie
socjalne
zestaw BHP
RG
R1
ładownia
Akumulatory
V kategoria
wózek do przewozu akumulatorów
rozdzielnia
AW
Instalacja elektryczna wtynkowa wykonana przewodami YDYp na napięcie 450/750V
-Obwód oświetlenia - przewód YDYp 3x1,5mm², 4x1,5mm², 5x1,5mm²
Łączniki instalacyjne podtynkowe, prod. wg zaleceń inwestora o odp.
stopniu IP w zależności od warunków środowiskowych pomieszczenia
-IP65 - łączniki umieszczone na zewnątrz
-IP44 - pomieszczenie akumulatory V kat., pom. przechowywania akumulatorów, warsztat, sanitariat,
-IP22 - kancelaria tech.,rozdzielnia, pom. socjalne, korytarz, szatnia
Układ sieci: TN-S
Oprawy oświetleniowe:
- 2x36 Ex EVG IP66 - pomieszczenie ładowni - oprawa przeciwwybuchowa
- 2x36 EVG IP44 - szatnia, warsztat, pom. przechowywania akumulatorów,
rozdzielnia, pom. socjalne, akumulatory V kat., korytarz
- 4x18 rastrowa EVG natynkowa - kancelaria techniczna
- oprawa typu plafon, hermetyczna IP44 - sanitariat, elektroliciarnia, destylatornia
- oprawa LED z czujnikiem ruchu, IP65 - na zewnątrz - oprawy dodatkowo z łącznikiem
jednobiegunowym umieszczonym na zewnątrz
- AW - modół awaryjny z podtrzymaniem 2h
PROJEKT BUDOWLANY
INSTALACJI
ELEKTRYCZNYCH
Obiekt:
Budynkek nr 35 w kompleksie wojskowym
przy ul. Piłsudskiego 36 w Zamościu
Inwestor:
32 Wojskowy Oddział Gospodarczy w Zamościu
ul. Marszałka Józefa Piłsudskiego 36
22 - 400 Zamość
Nazwa rysunku:
- Wyłącznik schodowy
Instalacja elektryczna oświetleniowa
- Wyłącznik schodowy podwójny
- Wyłącznik jednobiegunowy
- Wyłącznik świecznikowy
Skala:
Nr uprawnień
Podpis
Data
Projektant:
mgr inż. Grzegorz Studnicki
LUB/0280/PWOE/13
IV.
2015r
1:100
Nr rys.
E-2
wiatrołap
Sanitariat
elektroliciarnia
Warsztat
mechaniczny
szatnia
pomieszczenie
przechowywania
akumólatorów
ławki
kancelaria
techniczna
Przedsionek
sanit.
destylatornia wody
korytarz
prysznic
+ oczomyjka
ładownia
rozdzielnia
wózek do przewozu akumulatorów
Akumulatory
V kategoria
blat kuchenny
+ szafki kuchenne
Pomieszczenie
socjalne
zestaw BHP
RG
Układ sieci: TN-S
- Oprawa ewakuacyjna kierunkowa LED
PROJEKT BUDOWLANY
INSTALACJI
ELEKTRYCZNYCH
Obiekt:
Budynkek nr 35 w kompleksie wojskowym
przy ul. Piłsudskiego 36 w Zamościu
Inwestor:
32 Wojskowy Oddział Gospodarczy w Zamościu
ul. Marszałka Józefa Piłsudskiego 36
22 - 400 Zamość
Nazwa rysunku:
Skala:
Instalacja elektryczna oświetlenia ewakuacyjnego
Nr uprawnień
Podpis
Data
Projektant:
mgr inż. Grzegorz Studnicki
LUB/0280/PWOE/13
IV.
2015r
1:100
Nr rys.
E-3
wiatrołap
Sanitariat
elektroliciarnia
Warsztat
mechaniczny
szatnia
pomieszczenie
przechowywania
akumólatorów
ławki
kancelaria
techniczna
Przedsionek
sanit.
wentylator
P = 0,18kW
destylatornia wody
korytarz
prysznic
+ oczomyjka
R1
rozdzielnia
MD-2
ładownia
wentylator
P = 0,55kW
wózek do przewozu akumulatorów
Akumulatory
V kategoria
blat kuchenny
+ szafki kuchenne
Pomieszczenie
socjalne
wentylator
P = 0,09kW
zestaw BHP
RG
Wentylatory należy zasilić przewodem YDY 5x1,5 mm², przyciski YDY 2x1,5 mm². Dwustopniowe detektory wodoru należy
podłączyć do centrali przewodem YDY 4x1,5 mm², sygnalizator optyczno - akustyczny przewodem YDY 3x1,5 mm².
Detektory wodoru powinny być zawieszone nie niżej niż 30cm pod sufitem.
Układ sieci: TN-S
Przycisk załączania ręcznego wentylatorów
Detektor wodoru 71.CY
Sygnalizator akustyczno/optyczny SL.21
PROJEKT BUDOWLANY
INSTALACJI
ELEKTRYCZNYCH
Obiekt:
Budynkek nr 35 w kompleksie wojskowym
przy ul. Piłsudskiego 36 w Zamościu
Inwestor:
32 Wojskowy Oddział Gospodarczy w Zamościu
ul. Marszałka Józefa Piłsudskiego 36
22 - 400 Zamość
Nazwa rysunku:
Skala:
Instalacja elektryczna sterowania wentylatorami
Nr uprawnień
Podpis
Data
Projektant:
mgr inż. Grzegorz Studnicki
LUB/0280/PWOE/13
IV.
2015r
1:100
Nr rys.
E-4