6.9.A2 - Stojak do koszykówki

Transkrypt

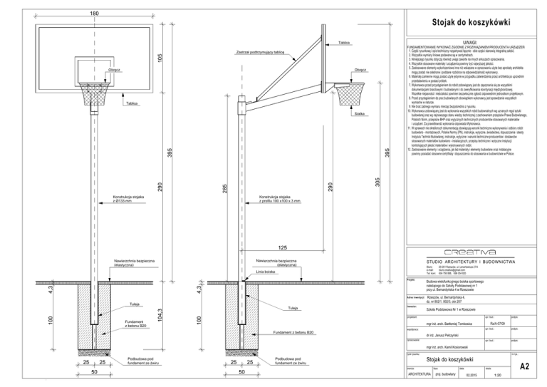
6.9.A2 - Stojak do koszykówki
180
Stojak do koszykówki
UWAGI:
Tablica
FUNDAMENTOWANIE WYKONAĆ ZGODNIE Z ROZWIĄZANIEM PRODUCENTA URZĄDZEŃ
105
Zastrzał podtrzymujący tablicę
Obręcz
Obręcz
Tablica
395
Konstrukcja stojaka
z Ø133 mm
305
290
285
290
395
Siatka
1. Część rysunkową i opis techniczny rozpatrywać łącznie - obie części stanowią integralną całość.
2. Wszystkie wymiary liniowe podawane są w centymetrach.
3. Niniejszego rysunku dotyczą również uwagi zawarte na innych arkuszach opracowania.
4. Wszystkie stosowane materiały i urządzenia powinny być najwyższej jakości.
5. Zastosowane elementy wykończeniowe inne niż wskazane w opracowaniu użyte bez aprobaty architekta
mogą zostać nie odebrane i poddane rozbiórce na odpowiedzialność wykonawcy.
6. Materiały zamienne mogą zostać użyte jedynie w przypadku zatwierdzenia przez architekta po uprzednim
przedstawieniu w postaci próbek.
7. Wykonawca przed przystąpieniem do robót zobowiązany jest do zapoznania się ze wszystkimi
dokumentacjami branżowymi i budowlanymi i do zweryfikowania koordynacji międzybranżowej.
Wszelkie niejasności i nieścisłości powinien bezzwłocznie zgłosić odpowiednim jednostkom projektowym.
8. Przed przystąpieniem do prac budowlanych obowiązkiem wykonawcy jest sprawdzenie wszystkich
wymiarów w naturze.
9. Nie brać żadnego wymiaru mierząc bezpośrednio z rysunku.
10. Wykonawca zobowiązany jest do wykonania wszystkich robót budownalnych wg uznanych reguł sztuki
budowlanej oraz wg najnowszego stanu wiedzy technicznej z zachowaniem przepisów Prawa Budowlanego,
Polskich Norm, przepisów BHP oraz wytycznych technicznych producentów stosowanych materiałów
i urządzeń. Za prawidłowość wykonania odpowiada Wykonawca.
11. W sprawach nie określonych dokumentacją obowiązują warunki techniczne wykonywania i odbioru robót
budowlano - montażowych, Polskie Normy (PN), instrukcje, wytyczne, świadectwa, dopuszczenia i atesty
Instytutu Techniki Budowlanej, instrukcje, wytyczne i warunki techniczne producentów i dostawców
stosowanych materiałów budowlano - instalacyjnych, przepisy techniczne i wytyczne instytucji
kontrolujących jakość materiałów i wykonywanych robót.
12. Zastosowane elementy i urządzenia, jak też materiały i elementy budowlane oraz instalacyjne
powinny posiadać stosowne certyfikaty i dopuszczenia do stosowania w budownictwie w Polsce.
Konstrukcja stojaka
z profilu 100 x100 x 3 mm
125
Nawierzchnia bezpieczna
(elastyczna)
Nawierzchnia bezpieczna
(elastyczna)
STUDIO ARCHITEKTURY I BUDOWNICTWA
Biuro:
e-mail:
Tel. kom:
Tuleja
Budowa wielofunkcyjnego boiska sportowego
należącego do Szkoły Podstawowej nr 1
przy ul. Bernardyńska 4 w Rzeszowie
Adres inwestycji:
Rzeszów, ul. Bernardyńska 4,
dz. nr 802/1, 802/3, obr.207
Inwestor:
Szkoła Podstawowa Nr 1 w Rzeszowie
projektant:
100
Fundament
z betonu B20
104,3
100
Tuleja
35-051 Rzeszów, ul. Lenartowicza 27/4
[email protected]
604 756 888, 696 054 820
Projekt:
4,3
4,3
Linia boiska
upr. bud.:
mgr inż. arch. Bartłomiej Tomkowicz
Fundament z betonu B20
współpraca:
podpis:
Rz/A-07/09
upr. bud.:
podpis:
upr. bud.:
podpis:
dr inż. Janusz Pełczyński
opracowanie:
mgr inż. arch. Kamil Kosiorowski
tytuł rysunku:
25
25
50
GSPublisherEngine 0.0.100.100
Podbudowa pod
fundament ze żwiru
25
25
50
nr rys.:
Stojak do koszykówki
Podbudowa pod
fundament ze żwiru
branża:
ARCHITEKTURA
faza:
proj. budowlany
data:
A2
skala:
02.2015
1:20
-