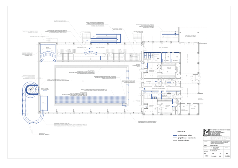
KONJCEPCJA Z PODBASEN _ 4. Stor

Transkrypt

KONJCEPCJA Z PODBASEN _ 4. Stor
WEJŚCIE GŁÓWNE DO BASENU DRZWI WEJŚCIOWE BEZ PROGU
POCHYLNIA DLA OSÓB NIEPEŁNOSPRAWNYCH
A W SZCZEGÓLNOŚCI PORUSZAJĄCYCH SIĘ
NA WÓZKACH INWALIDZKICH UMOŻLIWIAJĄCA
DOSTĘP DO BUDYNKU OD STRONY
PARKINGU I GŁÓWNEGO WEJŚCIA
POSZERZENIE SCHODÓW, ŚCIANA OPOROWA,
ZADASZENIE SCHODÓW I RĘCZNY
DŹWIG DO TRANSPORTU PIONOWEGO
W KONSTRUKCJI STALOWEJ
PROJEKTOWANE SCHODY I
PRZEBUDOWA WIDOWNI.
PROJEKTOWANA PRZEBUDOWA WIDOWNI
UMOŻLIWIAJĄCA WEJŚCIE DO "GROTY"
OD STRONY HALI BASENU.
SZATNIE OGÓLNĄ ZAPROJEKTOWANO ZMIENIAJĄC
SPOSÓB UŻYTKOWANIA POMIESZCZEŃ GOSPODARCZYCH
POD WIDOWNIĄ- LUKSFERY I BLAT SZATNIOWY.
KURTYNA POWIETRZNA
NAD WEJŚCIEM
KURTYNA POWIETRZNA
NAD WEJŚCIEM
ISTNIEJĄCE SCHODY DO WYBURZENIA
PRZEJŚCIE DO CZĘŚCI
SALI GIMNASTYCZNEJ
6%
-0,98
-0,56
6%
-0,02
BASEN
WHIRLPOOL
HALL WEJŚCIOWY
HALL WEJŚCIOWY
HALL WEJŚCIOWY
± 0,00
1
3
BILETY
6
SCHODY W KONSTRUKCJI
STALOWEJ DO ROZEBRANIA
13
HALL WEJŚCIOWY
5
SZATNIA OGÓLNA
12
SAUNA
WYPOCZYWALNIA
14
15
BASEN DO
DEZYNFEKCJI STÓP
GŁ. 15CM
SOLARIUM 1
19
16
20
SZATNIA
DAMSKA
18
-15
PROJEKTOWANE:
DYSZE BOCZNE W ŚCIANACH NIECKI (20 szt.)
REFLEKTORY OŚWIETLENIA PODWODNEGO HALOGENOWE (4 szt.)
PRZELEW GÓRNY Z WKŁADKĄ Z TWORZYWA
SOLARIUM 2
17
NATRYSKI
DAMSKIE
PRZEDSIONEK
SUSZARKI
2
4
PRYSZNIC
6 OSOBOWA "GROTA SPA"
DO MASAŻU PODWODNEGO
Z ŁAWECZKĄ DO SIEDZENIA
TEMP. WODY 30-37 C
7
21
22
10
PREFABRYKOWANE SŁUPKI Z TWORZYWA SZTUCZNEGO
SPEŁNIAJĄCE WYMOGI DO ROZGRYWANIA ZAWODÓW
MIĘDZYSZKOLNYCH I LOKALNYCH.
OPRYSKIWACZE DO DEZYNFEKCJI
I MYCIA STÓP ORAZ KÓŁEK WÓZKA
OSÓB NIEPEŁNOSPRAWNYCH
RATOWNIK
26
24
KORYTARZ WEWNĘTRZNY
PODEST Z TWORZYWA SZTUCZNEGO, PODWODNY, ROZBIERALNY,
WYPŁYCAJĄCY JEDEN Z TORÓW PŁYWACKICH DO GŁ. 90cm
34
35
36
37
MAGAZYN
SPRZĘTU
WÓZKI BASENOWE
BASEN DO
DEZYNFEKCJI STÓP
GŁ. 15CM
BASEN
HAMOWNIA
33
WC
MĘSKIE
44
-15
38
NATRYSKI
MĘSKIE
40
39
41
28
29
31
KABINA DLA OSÓB
NIEPEŁNOSPRAWNYCH
PROJEKTOWANE:
DYSZE BOCZNE W ŚCIANACH NIECKI (20 szt.)
REFLEKTORY OŚWIETLENIA PODWODNEGO HALOGENOWE (4 szt.)
PRZELEW GÓRNY Z WKŁADKĄ Z TWORZYWA
30
WC
DAMSKIE
SZATNIA
MĘSKA
43
32
45
42
11
HALL WEJŚCIOWY
WYJŚCIE DO ZEWN.
KLATKI SCHODOWEJ
8
27
ROZDZIELNIA PRZEDSIONEK
SUSZARKI
9
25
o
POM.
PORZĄDK.
OTWÓR W ŚCIANIE ZEWNĘTRZNEJ BUDYNKU HALI
BASENOWEJ NA CAŁEJ WYSOKOŚCI WIEŻY ZJEŻDŻALNI
PRZEDSIONEK
23
STALOWA KLATKA SCHODOWA
WSPARTA NA ŚRODKOWYM SŁUPIE
WYS. OKOŁO 8-9m
ZAKOŃCZONA POMOSTEM
STARTOWYM 60m ZJEŻDŻALNI.
ŁĄCZNIK
ZE SZKOŁĄ
46
POKÓJ
NAUCZYCIELI
47
SKLEPIK
PODNOŚNIK DLA OSÓB NIEPEŁNOSPRAWNYCH
UMOŻLIWIAJĄCY ŁATWY DOSTĘP DO BASENU
ZJEŻDŻALNIA O DŁUGOŚCI OKOŁO 40m.
MOCOWANA DO KONSTRUKCJI BUDYNKU ORAZ WSPARTA NA SŁUPACH STALOWYCH.
ZJEŻDŻALNIA ZAKOŃCZONA JEST BASENEM HAMOWNI USTAWIONYM NA POSADZCE.
RYNNA ZJEŻDŻALNI ZAMKNIĘTA WYKONANA Z TWORZYWA SZTUCZNEGO.
PROJEKTOWANIE ARCHITEKTONICZNE
MICHAŁ OTOMAŃSKI
LEGENDA:
KONSTRUKCJA
SŁUPÓW DLA ZJEŻDŻALNI
93-347 Łódź, ul. Leszczyńskiej 20/17
tel. kom. 0-601-26-83-86
tel./fax (042) 686-60- 36
[email protected]
projektowane ściany
projektowane wyburzenia
istniejące ściany
PROJEKT:
KONCEPCJA ROZBUDOWY, PRZEBUDOWY I
REMONTU PŁYWALNI KRYTEJ PRZY SZKOLE
PODSTAWOWEJ NR 10 W SIERADZU.
INWESTOR:
SZKOŁA PODSTAWOWA NR 10 W SIERADZU,
IM. BOLESŁAWA ZWOLIŃSKIEGO, 98-200
SIERADZ, Al. GRUNWALDZKA 10
BRANŻA:
NAZWA
RYSUNKU:
ARCHITEKTURA
"+- 0" RZUT PARTERU
KONCEPCJA
PODPIS:
PROJEKTANT:
mgr inż. arch. Michał Otomański
upr. bud. nr 43/01/ WŁ
OPRACOWAŁ:
mgr inż. arch. Andrzej Kusztelak
SKALA
1:100
FAZA
Koncepcja
NR
06
DATA
10.2006