ρ = 1) ε

Transkrypt

ρ = 1) ε
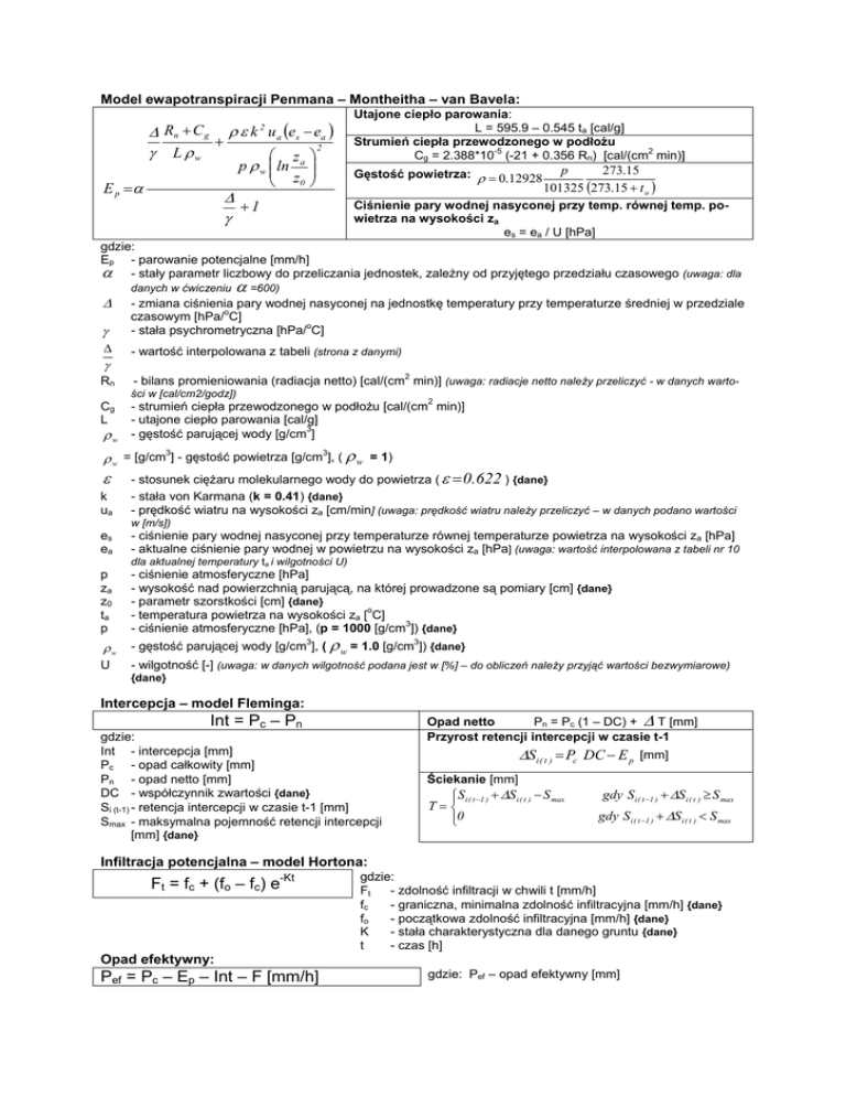
Model ewapotranspiracji Penmana – Montheitha – van Bavela:
∆ Rn + C g ρ ε k 2 u a (es − ea )
+
2
γ L ρw
 z 
p ρ w  ln a 
 z0 
E p =α
∆
+1
γ
Utajone ciepło parowania:
L = 595.9 – 0.545 ta [cal/g]
Strumień ciepła przewodzonego w podłożu
Cg = 2.388*10-5 (-21 + 0.356 Rn) [cal/(cm2 min)]
Gęstość powietrza: ρ = 0.12928
p
273.15
101325 (273.15 + t a )
Ciśnienie pary wodnej nasyconej przy temp. równej temp. powietrza na wysokości za
es = ea / U [hPa]
gdzie:
Ep - parowanie potencjalne [mm/h]
α - stały parametr liczbowy do przeliczania jednostek, zależny od przyjętego przedziału czasowego (uwaga: dla
∆
danych w ćwiczeniu
α =600)
γ
- zmiana ciśnienia pary wodnej nasyconej na jednostkę temperatury przy temperaturze średniej w przedziale
czasowym [hPa/oC]
- stała psychrometryczna [hPa/oC]
∆
- wartość interpolowana z tabeli (strona z danymi)
γ
Rn
Cg
L
ρw
- bilans promieniowania (radiacja netto) [cal/(cm2 min)] (uwaga: radiacje netto należy przeliczyć - w danych wartości w [cal/cm2/godz])
- strumień ciepła przewodzonego w podłożu [cal/(cm2 min)]
- utajone ciepło parowania [cal/g]
- gęstość parującej wody [g/cm3]
3
3
ρ w = [g/cm ] - gęstość powietrza [g/cm ], ( ρ w = 1)
k
ua
- stosunek ciężaru molekularnego wody do powietrza ( ε = 0.622 ) {dane}
- stała von Karmana (k = 0.41) {dane}
- prędkość wiatru na wysokości za [cm/min] (uwaga: prędkość wiatru należy przeliczyć – w danych podano wartości
es
ea
- ciśnienie pary wodnej nasyconej przy temperaturze równej temperaturze powietrza na wysokości za [hPa]
- aktualne ciśnienie pary wodnej w powietrzu na wysokości za [hPa] (uwaga: wartość interpolowana z tabeli nr 10
ε
p
za
z0
ta
p
w [m/s])
dla aktualnej temperatury ta i wilgotności U)
- ciśnienie atmosferyczne [hPa]
- wysokość nad powierzchnią parującą, na której prowadzone są pomiary [cm] {dane}
- parametr szorstkości [cm] {dane}
- temperatura powietrza na wysokości za [oC]
- ciśnienie atmosferyczne [hPa], (p = 1000 [g/cm3]) {dane}
ρw
- gęstość parującej wody [g/cm3], ( ρ w = 1.0 [g/cm3]) {dane}
U
- wilgotność [-] (uwaga: w danych wilgotność podana jest w [%] – do obliczeń należy przyjąć wartości bezwymiarowe)
{dane}
Intercepcja – model Fleminga:
Int = Pc – Pn
gdzie:
Int - intercepcja [mm]
Pc - opad całkowity [mm]
Pn - opad netto [mm]
DC - współczynnik zwartości {dane}
Si (t-1) - retencja intercepcji w czasie t-1 [mm]
Smax - maksymalna pojemność retencji intercepcji
[mm] {dane}
Opad netto
Pn = Pc (1 – DC) + ∆ T [mm]
Przyrost retencji intercepcji w czasie t-1
∆S i ( t ) = Pc DC − E p
Ściekanie [mm]
S i ( t −1 ) + ∆S i ( t ) − S max
T=
0
[mm]
gdy S i ( t −1 ) + ∆S i ( t ) ≥ S max
gdy S i ( t −1 ) + ∆S i ( t ) < S max
Infiltracja potencjalna – model Hortona:
Ft = fc + (fo – fc) e-Kt
gdzie:
Ft
- zdolność infiltracji w chwili t [mm/h]
fc
- graniczna, minimalna zdolność infiltracyjna [mm/h] {dane}
fo
- początkowa zdolność infiltracyjna [mm/h] {dane}
K
- stała charakterystyczna dla danego gruntu {dane}
t
- czas [h]
Opad efektywny:
Pef = Pc – Ep – Int – F [mm/h]
gdzie: Pef – opad efektywny [mm]