DN – 1 DEKLARACJA NA PODATEK OD NIERUCHOMOŚCI na
Transkrypt
										DN – 1 DEKLARACJA NA PODATEK OD NIERUCHOMOŚCI na
                                        
                                        
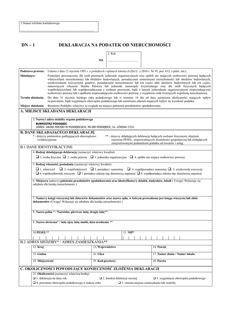
                                1.Numer telefonu kontaktowego Załącznik Nr 2 do Uchwały Nr …........... Rady Miejskiej w Poddębicach z dnia …............... r. ................................................................................................. DN – 1 DEKLARACJA NA PODATEK OD NIERUCHOMOŚCI 2. Rok na ........................................ Podstawa prawna: Ustawa z dnia 12 stycznia 1991 r. o podatkach i opłatach lokalnych (Dz.U. z 2010 r. Nr 95, poz. 613, z późn. zm.). Składający: Formularz przeznaczony dla osób prawnych, jednostek organizacyjnych oraz spółek nie mających osobowości prawnej będących właścicielami nieruchomości lub obiektów budowlanych, posiadaczami samoistnymi nieruchomości lub obiektów budowlanych, użytkownikami wieczystymi gruntów, posiadaczami nieruchomości lub ich części albo obiektów budowlanych lub ich części, stanowiących własność Skarbu Państwa lub jednostki samorządu terytorialnego oraz dla osób fizycznych będących współwłaścicielami lub współposiadaczami z osobami prawnymi, bądź z innymi jednostkami organizacyjnymi nieposiadającymi osobowości prawnej lub z spółkami nieposiadającymi osobowości prawnej, z wyjątkiem osób tworzących wspólnotę mieszkaniową. Do dnia 31 stycznia każdego roku podatkowego lub w terminie 14 dni od dnia zaistnienia okoliczności mających wpływ na powstanie, bądź wygaśnięcie obowiązku podatkowego lub zaistnienia zdarzeń mających wpływ na wysokość podatku. Termin składania: Miejsce składania: Burmistrz Poddębic właściwy ze względu na miejsce położenia przedmiotów opodatkowania. A. MIEJSCE SKŁADANIA DEKLARACJI 3. Nazwa i adres siedziby organu podatkowego BURMISTRZ PODDĘBIC ADRES: URZĄD MIEJSKI W PODDĘBICACH, 99-200 PODDĘBICE, UL. ŁÓDZKA 17/21 B. DANE SKŁADAJĄCEGO DEKLARACJĘ * - dotyczy podmiotów podlegających obowiązkowi ewidencyjnemu ** - dotyczy skłądających deklarację będących osobami fizycznymi objętymi rejestrem PESEL, nieprowadzących działalności gospodarczej lub niebędących zarejestrowanymi podatnikami podatku od towarów i usług B.1 DANE IDENTYFIKACYJNE 4. Rodzaj składającego deklarację (zaznaczyć właściwy kwadrat)  1. osoba fizyczna  2. osoba prawna  3. jednostka organizacyjna  4. spółka nie mająca osobowości prawnej 5. Rodzaj własności, posiadania (zaznaczyć właściwy kwadrat)  1. właściciel  2. współwłaściciel  3. posiadacz samoistny  4. współposiadacz samoistny  5. użytkownik wieczysty  6. współużytkownik wieczysty  7. posiadacz zależny (np. dzierżawca, najemca)  8. współposiadacz zależny (np. dzierżawca, najemca) 6. Miejsce/a (adres/y) położenia przedmiotów opodatkowania oraz identyfikator/y działek, budynków, lokali ( Uwaga! Wykazuje się odrębnie dla każdej nieruchomości ) 7. Numer/y księgi wieczystej lub zbioru/ów dokumentów oraz nazwa sądu, w którym prowadzona jest księga wieczysta lub zbiór dokumentów (Uwaga! Wykazuje się odrębnie dla każdej nieruchomości ) 8. Nazwa pełna * / Nazwisko, pierwsze imię, drugie imię** 9. Nazwa skrócona* / imię ojca, imię matki, data urodzenia ** 10.PESEL** 11. NIP* B.2 ADRES SIEDZIBY* / ADRES ZAMIESZKANIA** 12. Kraj 13. Województwo 14. Powiat 15. Gmina 16. Ulica 17. Numer domu / Numer lokalu 18. Miejscowość 19. Kod pocztowy 20. Poczta C. OKOLICZNOŚCI POWODUJĄCE KONIECZNOŚĆ ZŁOŻENIA DEKLARACJI 21. Okoliczności (zaznaczyć właściwą kratkę)  1. deklaracja na dany rok  2. korekta deklaracji rocznej  3. wygaśnięcie obowiązku podatkowego  4. powstanie obowiązku podatkowego w trakcie roku  5. zmiana miejsca zamieszkania lub siedziby D. DANE DOTYCZĄCE PRZEDMIOTÓW OPODATKOWANIA (z wyjątkiem zwolnionych) Wyszczególnienie Podstawa Stawka podatku Kwota podatku opodatkowania w zł,gr w zł,gr D.1 POWIERZCHNIA GRUNTÓW 1. związanych z prowadzeniem działalności gospodarczej, 22. 23. 24. bez względu na sposób zakwalifikowania w ewidencji gruntów i budynków ................... m2 2. związanych z prowadzeniem działalności gospodarczej 25. w zakresie wytwarzania, przesyłania i dystrybucji energii geotermalnej .................... m2 3. pod jeziorami, zajętych na zbiorniki wodne retencyjne lub 28. elektrowni wodnych .................... ha 4. pozostałe grunty, w tym zajęte na prowadzenie odpłatnej 31. statutowej działalności pożytku publicznego przez organizacje pożytku publicznego .................... m2 5. nieużytki 34. ................... m2 D.2 POWIERZCHNIA UŻYTKOWA BUDYNKÓW LUB ICH CZĘŚCI (*) .................,....... 26. .................,....... 27. .................,....... 29. .................,....... 30. .................,....... 32. .................,....... 33. .................,....... 35. .................,....... 36. .................,....... .................,....... * Do powierzchni użytkowej budynku lub jego części należy zaliczyć powierzchnię mierzoną, po wewnętrznej długości ścian na wszystkich kondygnacjach, z wyjątkiem powierzchni klatek schodowych oraz szybów dźwigowych. Za kondygnację uważa się również garaże podziemne, piwnice, sutereny i poddasza użytkowe. Powierzchnię pomieszczeń lub ich części kondygnacji o wysokości w świetle od 1,40 m do 2,20 m zalicza się do powierzchni użytkowej budynku w 50 %, a jeżeli wysokość jest mniejsza niż 1,40 m, powierzchnię tę pomija się. 1. mieszkalnych 37. 38. 39. ................... m2 .................,....... 41. .................,....... 42. .................,....... 44. .................,....... 45. .................,....... 47. .................,....... 48. .................,....... 50. .................,....... 51. .................,....... 53. .................,....... 54. 2. związanych z prowadzeniem działalności gospodarczej oraz 40. od budynków mieszkalnych lub ich części zajętych na prowadzenie działalności gospodarczej ................... m2 3. związanych z prowadzeniem działalności gospodarczej 43. w zakresie wytwarzania przesyłania i dystrybucji energii geotermalnej ................... m2 4. zajęte na prowadzenie działalności gospodarczej w zakresie 46. obrotu kwalifikowanym materiałem siewnym ................... m2 5. związanych z udzielaniem świadczeń zdrowotnych 49. w rozumieniu przepisów o działalności leczniczej, zajętych przez podmioty udzielające tych świadczeń ................... m2 6. pozostałych ogółem, w tym zajęte na prowadzenie odpłatnej 52. statutowej działalności pożytku publicznego przez organizacje pożytku publicznego ................... m2 .................,....... .................,....... D.3 WARTOŚĆ BUDOWLI LUB ICH CZĘŚCI (związanych z prowadzeniem działalności gospodarczej) 1. budowle lub ich części związane z prowadzeniem działalności 55. 56. 57. gospoddarczej według procentowej ich wartości (wartość, o której mowa w przepisach o podatkach dochodowych) ...............,...... zł .................,....... 59. .................,....... 60. ...............,...... zł ................,...... .................,....... 2. budowle lub ich częsci związane z prowadzeniem działalności 58. gospodarczej w zakresie wytwarzania przesyłania i dystrybucji energii geotermalnej według procentowej ich wartości E. ŁĄCZNA KWOTA PODATKU Kwota należnego podatku do zapłaty *) Suma kwot z kol. D 61. .................,....... F. INFORMACJA O PRZEDMIOTACH ZWOLNIONYCH (podać powierzchnię bądź wartość budowli przedmiotów zwolnionych, stawkę podatku, jaką byłby objęty dany przedmiot, gdyby podlegał opodatkowaniu, łączną kwotę podatku oraz przepis prawa - z jakiego tytułu występuje zwolnienie) G. OŚWIADCZENIE I PODPIS SKŁADAJĄCEGO / OSOBY REPREZENTUJĄCEJ SKŁADAJĄCEGO (niepotrzebne skreślić) Oświadczam, że podane przeze mnie dane są zgodne z rzeczywistością 62. Imię 63. Nazwisko 64. Data wypełnienia (dzień - miesiąc - rok) 65. Podpis (pieczęć) składającego / osoby reprezentującej składającego H. ADNOTACJE ORGANU PODATKOWEGO 66. Uwagi organu podatkowego 67. Identyfikator przyjmującego formularz 68. Podpis przyjmującego formularz * ) Zgodnie z art. 63 § 1 ustawy z dnia 29 sierpnia 1997 roku – Ordynacja podatkowa ( tekst jedn. Dz. U. z 2012 r., poz. 749 z późn. zm.), podstawy opodatkowania, kwoty podatku, odsetki za zwłokę, opłaty prolongacyjne, oprocentowanie nadpłat oraz wynagrodzenia przysługujące płatnikom zaokrągla się do pełnych złotych, w ten sposób, że końcówki kwot wynoszące mniej niż 50 groszy pomija się, a końcówki kwot wynoszące 50 i więcej groszy podwyższa się do pełnych złotych. Pouczenie: Niniejsza deklaracja stanowi podstawę do wystawienia tytułu wykonawczego, zgodnie z przepisami ustawy z dnia 17 czerwca 1966 r. o postępowaniu egzekucyjnym w administracji (Dz. U. z 2005 r. Nr 229, poz. 1954 z późn. zm.). Druk deklaracji na podatek od nieruchomości DN-1 dostępny jest na stronie internetowej Biuletynu Informacji Publicznej Urzędu Miejskiego w Poddębicach http://poddebice.signform.pl/poddebice/browse.php?catprz=1036