PRACOWNIK BUDOWLANY Kod ISCO

Transkrypt

PRACOWNIK BUDOWLANY Kod ISCO
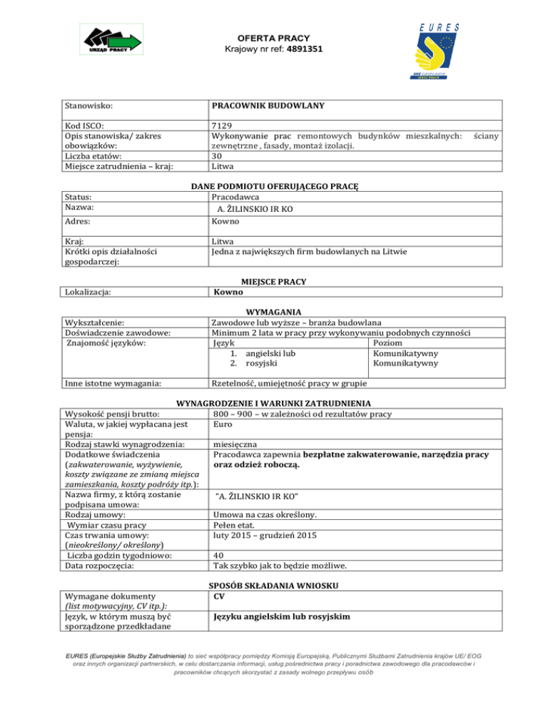
OFERTA PRACY
Krajowy nr ref: 4891351
Stanowisko:
PRACOWNIK BUDOWLANY
Kod ISCO:
Opis stanowiska/ zakres
obowiązków:
Liczba etatów:
Miejsce zatrudnienia – kraj:
7129
Wykonywanie prac remontowych budynków mieszkalnych:
zewnętrzne , fasady, montaż izolacji.
30
Litwa
Status:
Nazwa:
Adres:
Kraj:
Krótki opis działalności
gospodarczej:
Lokalizacja:
Wykształcenie:
Doświadczenie zawodowe:
Znajomość języków:
Inne istotne wymagania:
ściany
DANE PODMIOTU OFERUJĄCEGO PRACĘ
Pracodawca
A. ŽILINSKIO IR KO
Kowno
Litwa
Jedna z największych firm budowlanych na Litwie
MIEJSCE PRACY
Kowno
WYMAGANIA
Zawodowe lub wyższe – branża budowlana
Minimum 2 lata w pracy przy wykonywaniu podobnych czynności
Język
Poziom
1. angielski lub
Komunikatywny
2. rosyjski
Komunikatywny
Rzetelność, umiejętność pracy w grupie
WYNAGRODZENIE I WARUNKI ZATRUDNIENIA
Wysokość pensji brutto:
800 – 900 – w zależności od rezultatów pracy
Waluta, w jakiej wypłacana jest
Euro
pensja:
Rodzaj stawki wynagrodzenia:
miesięczna
Dodatkowe świadczenia
Pracodawca zapewnia bezpłatne zakwaterowanie, narzędzia pracy
(zakwaterowanie, wyżywienie,
oraz odzież roboczą.
koszty związane ze zmianą miejsca
zamieszkania, koszty podróży itp.):
Nazwa firmy, z którą zostanie
"A. ŽILINSKIO IR KO"
podpisana umowa:
Rodzaj umowy:
Umowa na czas określony.
Wymiar czasu pracy
Pełen etat.
Czas trwania umowy:
luty 2015 – grudzień 2015
(nieokreślony/ określony)
Liczba godzin tygodniowo:
40
Data rozpoczęcia:
Tak szybko jak to będzie możliwe.
Wymagane dokumenty
(list motywacyjny, CV itp.):
Język, w którym muszą być
sporządzone przedkładane
SPOSÓB SKŁADANIA WNIOSKU
CV
Języku angielskim lub rosyjskim
EURES (Europejskie Służby Zatrudnienia) to sieć współpracy pomiędzy Komisją Europejską, Publicznymi Służbami Zatrudnienia krajów UE/ EOG
oraz innych organizacji partnerskich, w celu dostarczania informacji, usług pośrednictwa pracy i poradnictwa zawodowego dla pracodawców i
pracowników chcących skorzystać z zasady wolnego przepływu osób
dokumenty:
Do kogo należy wysłać dokumenty:
(do pracodawcy/ doradcy EURES)
Kandydaci proszeni są o przesłanie CV do doradcy EURES z
Wojewódzkiego Urzędu Pracy w Białymstoku
Gdzie należy wysłać dokumenty:
(adres, adres e-mail, nr faksu z
kodem kraju itp.)
email: [email protected] – w tytule emaila
proszę wpisać - Litwa - pracownik budowlany
Tel. 85 74 97 235
WUP w Białymstoku,
ul. Pogodna 22
15-354 Białystok
Goda Maciulevičienė – doradca EURES z Litwy,
Kaunas Local Labour Exchange
E. Ožeškienės street 37, LT-44254 Kaunas, Lithuania
Tel.: +370 37 225 279
Fax.: +370 37 225 605
Email: [email protected]
Dane teleadresowe doradcy EURES
lub przedstawiciela pracodawcy:
WAŻNOŚĆ
Data publikacji:
Termin przedkładania podań o pracę /
zakończenia ważności oferty:
23.02.2015
Do odwołania
Uprzejmie informujemy, że skontaktujemy się wyłącznie z wybranymi kandydatami.
UWAGA:
1. Umowa z zagranicznym pracodawcą zostanie zawarta zgodnie z prawem kraju zatrudnienia. Oznacza to, że wszystkie
roszczenia odnośnie do warunków, które obejmuje umowa, można kierować wyłącznie do odpowiedniego sądu w kraju
zatrudnienia. Publiczne służby zatrudnienia (EURES) nie mogą pośredniczyć ani reprezentować pracownika w sądzie kraju
zatrudnienia w przypadku sporu z pracodawcą.
2. Publiczne służby zatrudnienia (EURES) dokładają wszelkich starań, aby zapewnić rzetelność i wiarygodność ofert pracy
zgłoszonych w lokalnym urzędzie pracy. Należy wyjaśnić, że oferta pracy została zgłoszona przez stronę trzecią i EURES
nie odpowiada za ewentualne rozbieżności między warunkami pracy określonymi w ofercie pracy i warunkami oferowanymi
przez potencjalnego pracodawcę.
3. Publiczne służby zatrudnienia (EURES) informują, że będą zbierać, przetwarzać i przekazywać potencjalnym pracodawcom
zgodnie z przepisami dotyczącymi ochrony danych osobowych wszystkie dane osobowe dostarczone przez osoby
poszukujące pracy.
EURES (Europejskie Służby Zatrudnienia) to sieć współpracy pomiędzy Komisją Europejską, Publicznymi Służbami Zatrudnienia krajów UE/ EOG
oraz innych organizacji partnerskich, w celu dostarczania informacji, usług pośrednictwa pracy i poradnictwa zawodowego dla pracodawców i
pracowników chcących skorzystać z zasady wolnego przepływu osób