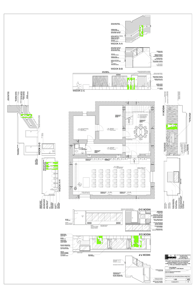
Załącznik nr 1a3

Transkrypt

Załącznik nr 1a3
WIDOK A-A
cokół z drewna
impregnowanego w
kolorze posadzki
WIDOK B-B
stolarka drzwiowa drewniana, ościeżnica
obejmująca drewniana, kolor parkietu
widoczne cegły malowane,
kolor NCS S 4000 - N szary
lokalizacja oprawy oświetleniowej
(liniowej)
I
G
A
F
F
stolarka drzwiowa drewniana, ościeżnica
obejmująca drewniana, kolor parkietu
1/01
projektowana zabudowa
szkieletowa, malowana,
kolor NCS 0503 - G94Y beż
A
tapeta dekoracyjna z przetłoczeniami,
kolor bordowy
cokół z drewna impregnowanego w
kolorze posadzki
WIDOK C-C
KLATKA SCHODOWA
parkiet lakierowany
24,0m² kolor teak/gres kolor
srebrno-brązowy
B
1/06
MAGAZYN
gres, kolor
18,30m²
srebrno-brązowy
POM.GOSPODARCZE
gres, kolor
12,05m²
srebrno-brązowy
B
gres, 30x60 cm,
kolor beż
1/05
H
lustra pochodzące z demontażu
z sali konferencyjnej
D
1/03
KORYTARZ
gres, kolor
10,00m²
srebrno-brązowy
projektowana zabudowa
szkieletowa, malowana,
kolor NCS 0503 - G94Y beż
ściana malowana, tynkowana,
kolor NCS S2570 - Y90R
bordowy
D
G
KD
A
A
A
C
C
1/02
SALA
parkiet lakierowany,
kolor drewna teak
grzejnik, malowany, kolor
NCS 0503 - G94Y beż
E
E
grzejnik, malowany, kolor
NCS 0503 - G94Y beż
B
I
H
B
obudowa z drewna
impregnowanego w
kolorze posadzki
cokół z drewna
impregnowanego w
kolorze posadzki
stolarka drzwiowa drewniana, ościeżnica
obejmująca drewniana, kolor parkietu
obudowa szkieletowa
systemowa na ruszcie
stalowym
C
C
C
C
kratka wentylacyjna,
kolor RAL 9006, szary
B
B
B
obudowa szkieletowa
systemowa na ruszcie
stalowym, wykończona
lustrami
B
roleta w kasecie
pochwyt, rura Ø 51mm,
malowana,
kolor RAL 9006, szary
lokalizacja oprawy oświetleniowej
DYSPOZYCJE WYKOŃCZENIA WNĘTRZ
stolarka drzwiowa drewniana,
ościeżnica obejmująca
drewniana, kolor parkietu
WIDOK H-H
53,15m²