doczz
  • Wejść
  • Rejestracja
Katalog

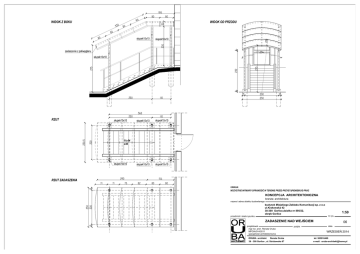
zadaszenie - MZK Gorlice

download Reklamacja

Transkrypt

zadaszenie - MZK Gorlice
WIDOK Z BOKU
WIDOK OD PRZODU
RZUT
11x14
x30
RZUT ZADASZENIA
UWAGA:
KONCEPCJA ARCHITEKTONICZNA
nazwa i adres obiektu budowlanego
ul.Krakowska 42
1:50
nr rys.
przedmiot i skala rysunku
06
podpis
data
MPOIA/014/2011
ORUBA architekt
Renata Oruba
tel. 505916469

Podobne dokumenty

Tenis stołowy - komunikat MIASTO

Tenis stołowy - komunikat MIASTO

Bardziej szczegółowo

Załącznik nr 6 - skład Zespołu Lokalnej Współpracy

Załącznik nr 6 - skład Zespołu Lokalnej Współpracy

Bardziej szczegółowo

ENGER Robert Kwiecień, ul. Zagrody 25, 32

ENGER Robert Kwiecień, ul. Zagrody 25, 32

Bardziej szczegółowo

SCS AW Regulamin REKREACJA Solec Zima w Mieście 2017

SCS AW Regulamin REKREACJA Solec Zima w Mieście 2017

Bardziej szczegółowo

zawartość opracowania architektura konstrukcja instalacja elektryczna

zawartość opracowania architektura konstrukcja instalacja elektryczna

Bardziej szczegółowo

LM 15.16 Tenis stołowy mężczyzn

LM 15.16 Tenis stołowy mężczyzn

Bardziej szczegółowo

TENIS STOŁOWY – drużynowy. 1. Uczestnictwo: zawody

TENIS STOŁOWY – drużynowy. 1. Uczestnictwo: zawody

Bardziej szczegółowo

(Rzutowanie prostok¹tne teoria)

(Rzutowanie prostok¹tne teoria)

Bardziej szczegółowo

agenda szkolenia dot

agenda szkolenia dot

Bardziej szczegółowo

Sygnalizacja sędziów

Sygnalizacja sędziów

Bardziej szczegółowo

Zadaszenia - architekt krajobrazu E. Ciężkowska

Zadaszenia - architekt krajobrazu E. Ciężkowska

Bardziej szczegółowo

Zobacz ofertę letnią - Przystanek Lipińskie

Zobacz ofertę letnią - Przystanek Lipińskie

Bardziej szczegółowo
2026 © doczz.pl
O nas | DMCA / GDPR | Nadużycie