MAPA DO CELÓW PROJEKTOWYCH SKALA 1:500 dz. 93/4

Transkrypt

MAPA DO CELÓW PROJEKTOWYCH SKALA 1:500 dz. 93/4
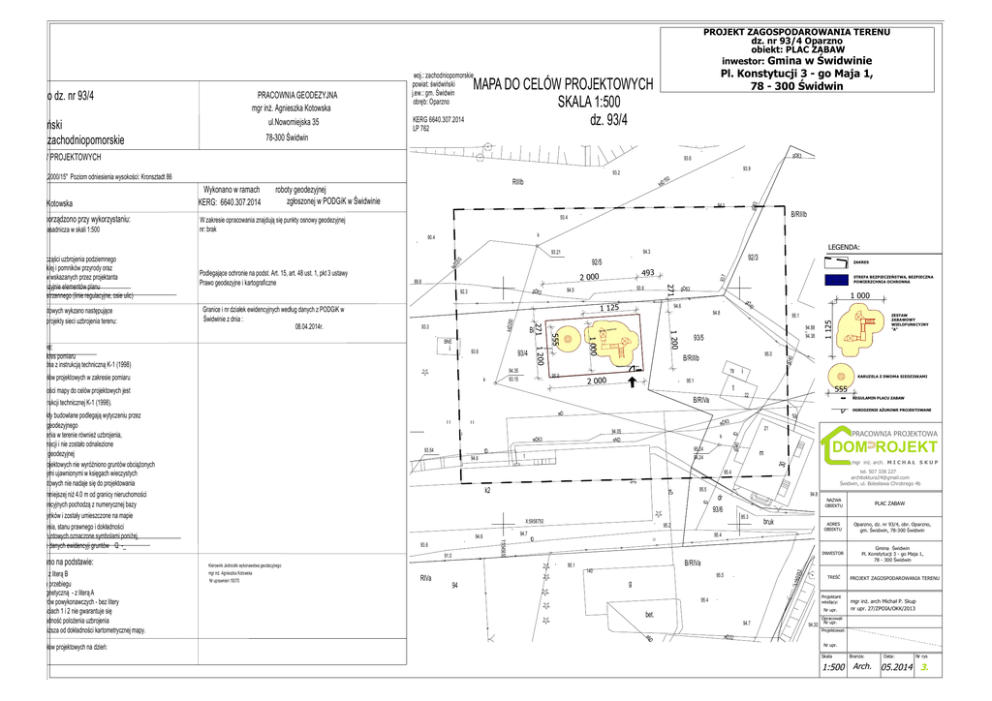
PROJEKT ZAGOSPODAROWANIA TERENU
dz. nr 93/4 Oparzno
obiekt: PLAC ZABAW
inwestor: Gmina w Świdwinie
KERG 6640.307.2014
LP 762
78-300 Świdwin
MAPA DO CELÓW PROJEKTOWYCH
W zakresie opracowania znajdują się punkty osnowy geodezyjnej
nr: brak
92/3
92/5
ksD200
93/4
94.35
93.15
k
1 200
1 000
555
Karuzela
93.6
Mapa nadaje się do celów projektowych w zakresie pomiaru
1 200
i
zakres pomiaru
Redakcja znaków zgodna z instrukcją techniczną K-1 (1998)
94.8
awo wy
Dom ek zab
BNE
ormacje dodatkowe:
1 000
40
gD
Bi
gD63
94.6
1 125
93.3
STREFA BEZPIECZEŃSTWA, BEZPIECZNA
POWIERZCHNIA OCHRONNA
95.1
94.88
94.38
93/5
95.0
B/RIIIb
Regulamin placu zabaw
78
95.0
2 000
KARUZELA Z DWOMA SIEDZISKAMI
t
OGRODZENIE AŻUROWE PROJEKTOWANE
gD
wD 6 3
93.54
tD
k
95.24
94.24
t
PRACOWNIA PROJEKTOWA
DOM ROJEKT
m
mgr inż. arch. M I C H A Ł S K U P
30
94.6
21
gD40
wD63
tD
94.05
eND
tel. 507 338 227
[email protected]
Świdwin, ul. Bolesława Chrobrego 4b
31
95.4
95.5
tD
wD
k2
93.6
91.0
Kierownik Jednostki wykonawstwa geodezyjnego
mgr inż. Agnieszka Kotowska
Nr uprawnień 19370
95.2
94.7
tD
95.5
g
Oparzno, dz. nr 93/4, obr. Oparzno,
gm. Świdwin, 78-300 Świdwin
INWESTOR
Gmina Świdwin
Pl. Konstytucji 3 - go Maja 1,
78 - 300 Świdwin
TREŚĆ
Projektant
wiodący:
95.4
Nr upr.
bet.
94.7
94.30
PLAC ZABAW
ADRES
OBIEKTU
B/RIVa
140
94
bruk
95.4
95.1
RIVa
NAZWA
OBIEKTU
t-19 /2 0
13
94.6
94.8
dr
93/6
95.3
X:5958750
PROJEKT ZAGOSPODAROWANIA TERENU
mgr inż. arch Michał P. Skup
nr upr. 27/ZPOIA/OKK/2013
Opracował:
Nr upr.
Projektował:
eND
ktualność mapy do celów projektowych na dzień:
REGULAMIN PLACU ZABAW
wD
Y:5545650
danych branżowych - z literą B
pośredniego ustalenia przebiegu
aparaturą elektromagnetyczną - z literą A
bezpośrednich pomiarów powykonawczych - bez litery
związku z tym w częściach 1 i 2 nie gwarantuje się
kompletności, a dokladność polożenia uzbrojenia
na mapie może być niższa od dokładności kartometrycznej mapy.
555
22
B/RIVa
dny z przepisami instrukcji technicznej K-1 (1998).
brojenie opracowano na podstawie:
i
95.1
topień kartometryczności mapy do celów projektowych jest
Wszystkie trwałe obiekty budowlane podlegają wytyczeniu przez
nostkę wykonawstwa geodezyjnego
Nie wyklucza się istnienia w terenie również uzbrojenia,
tórym brak było informacji i nie zostało odnalezione
czasie inwentaryzacji geodezyjnej
Na mapie do celów projektowych nie wyróżniono gruntów obciążonych
żebnościami gruntowymi ujawnionymi w księgach wieczystych
Mapa do celów projektowych nie nadaje się do projektowania
dynków w odległości mniejszej niż 4.0 m od granicy nieruchomości
Granice działek ewidencyjnych pochodzą z numerycznej bazy
idencji gruntów i budynków i zostały umieszczone na mapie
z analizy ich pochodzenia, stanu prawnego i dokładności
Konturów użytków gruntowych oznaczone symbolami poniżej,
są ujawnione w bazie danych ewidencyji gruntów Q -_
ZESTAW
ZABAWOWY
WIELOFUNKCYJNY
"A"
1 125
93.6
94.5
g D6 3
ZAKRES
93 .7
493
2 000
89.8
92.3
Granice i nr działek ewidencyjnych według danych z PODGiK w
Świdwinie z dnia :
08.04.2014r.
LEGENDA:
94.3
93.21
Podlegające ochronie na podst. Art. 15, art. 48 ust. 1, pkt 3 ustawy
Prawo geodezyjne i kartograficzne
B/RIIIb
k
90.4
271
mapie do celów projektowych wykzano następujące
odnione przez ZUDP projekty sieci uzbrojenia terenu:
94.1
93.4
271
Danych branżowych cząści uzbrojenia podziemnego
Pomiaru zieleni wysokiej i pomników przyrody oraz
miaru innych obiektów wskazanych przez projektanta
Opracowanych geodezyjnie elementów planu
gospodarowania przestrzennego (linie regulacyjne, osie ulic)
RIIIb
roboty geodezyjnej
zgłoszonej w PODGiK w Świdwinie
20 0
Numeryczna mapa zasadnicza w skali 1:500
Wykonano w ramach
KERG: 6640.307.2014
150
ksD
ksD
Wtórnik niniejszy sporządzono przy wykorzystaniu:
93.9
93.2
kład współrzędnych: ,,2000/15" Poziom odniesienia wysokości: Kronsztadt 86
gr inż. Agnieszka Kotowska
gD63
93.6
gD 40
owiat : świdwiński
ojewództwo: zachodniopomorskie
PRACOWNIA GEODEZYJNA
mgr inż. Agnieszka Kotowska
ul.Nowomiejska 35
MAPA DO CELÓW PROJEKTOWYCH
SKALA 1:500
dz. 93/4
gD 63
biekt: Oparzno dz. nr 93/4
Pl. Konstytucji 3 - go Maja 1,
78 - 300 Świdwin
woj.: zachodniopomorskie
powiat: świdwiński
j.ew.: gm. Świdwin
obręb: Oparzno
wD 32
Nr upr.
Skala
Branża:
1:500 Arch.
Data:
Nr rys
05.2014 3.