Largo Ebke - PERFECTLINE

Transkrypt

Largo Ebke - PERFECTLINE
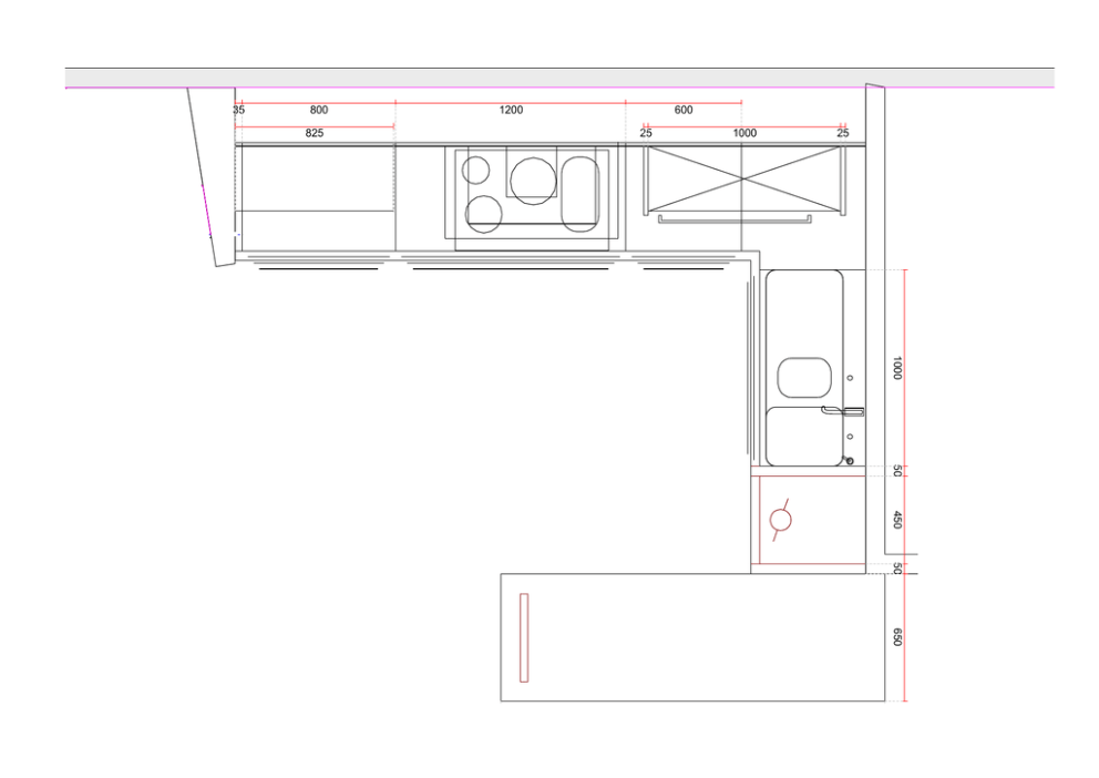
Plan view Project number: 115/1/12
50
450
Project: Studio Alternative: Kitchen - FORMAT Scale:1:20 (A4)
1000
50
650
2010-09-30
This design is copyrighted. To forward it to a third party or copying it without prior agreement is prohibited. The drawing is only an indication of the planned installation.
Designed/presented with Compusoft ® WINNER
2000
25
1000
25
825
600
1200
800
35
Elevation Project number: 115/1/12
Project: Studio Alternative: Kitchen - FORMAT
2010-09-30
1000
150
150
722
725
825
35
800
1200
This design is copyrighted. To forward it to a third party or copying it without prior agreement is prohibited. The drawing is only an indication of the planned installation.
600
650
Designed/presented with Compusoft ® WINNER
Project: Studio Alternative: Kitchen - FORMAT
2010-09-30
150
851
1141
1445
1991 2166
2435
Elevation Project number: 115/1/12
650
1000
50
This design is copyrighted. To forward it to a third party or copying it without prior agreement is prohibited. The drawing is only an indication of the planned installation.
450
50
Designed/presented with Compusoft ® WINNER