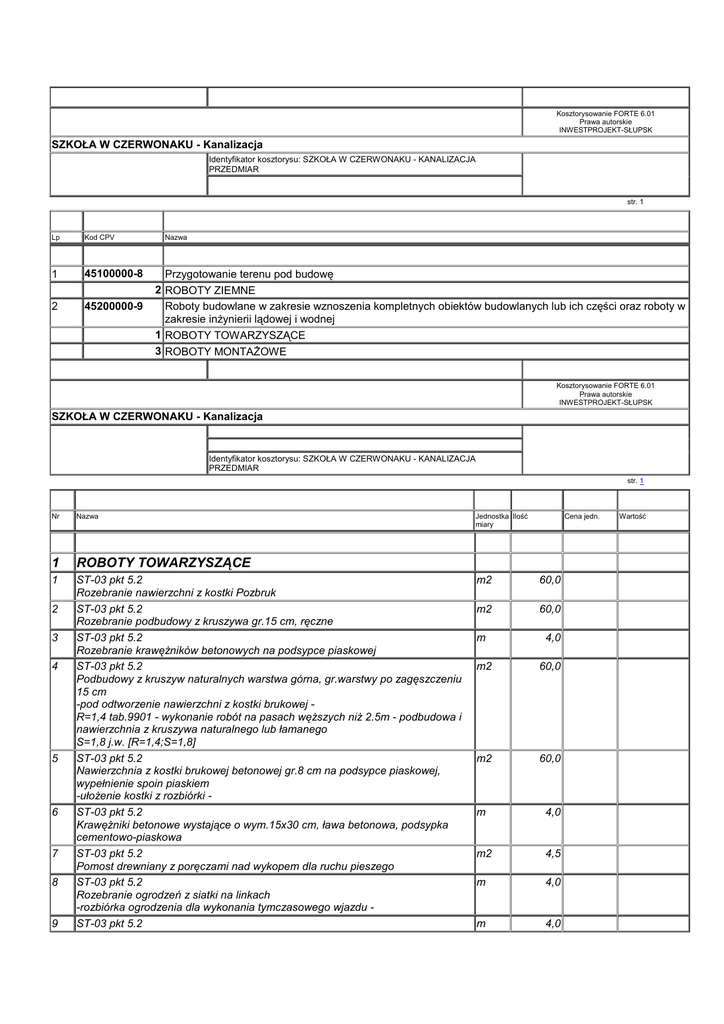
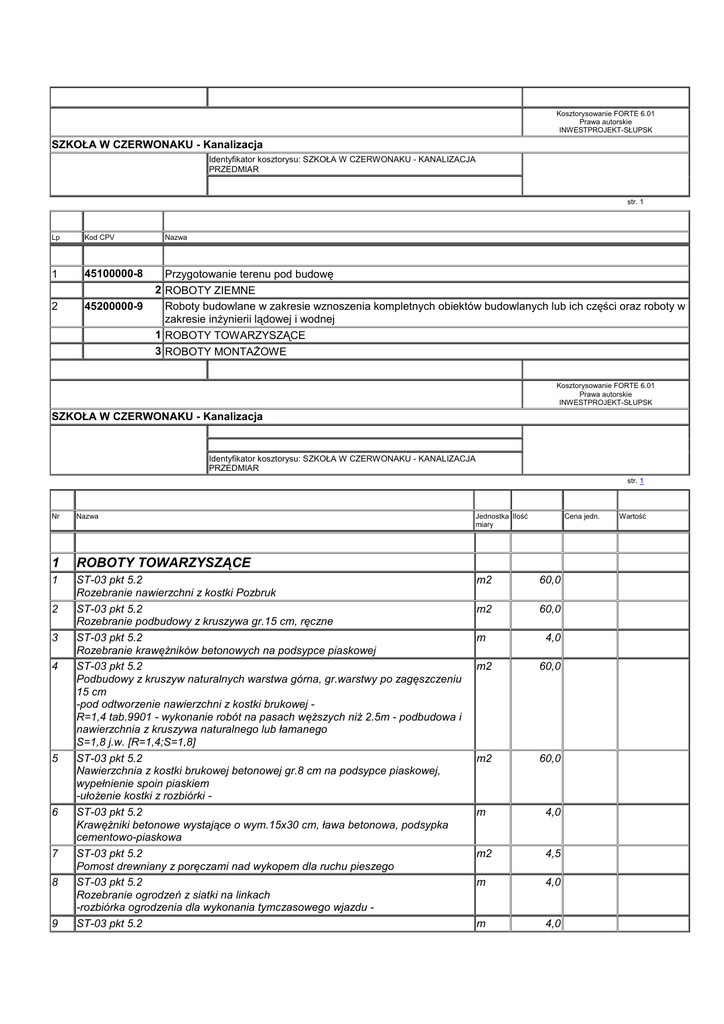
1 roboty towarzyszące

Transkrypt

1 roboty towarzyszące
Kosztorysowanie FORTE 6.01
Prawa autorskie
INWESTPROJEKT-SŁUPSK
SZKOŁA W CZERWONAKU - Kanalizacja
Identyfikator kosztorysu: SZKOŁA W CZERWONAKU - KANALIZACJA
PRZEDMIAR
wyk.dn.2006-07-11
WD Spis działów przedmiaru robót
Lp
Kod CPV
1
45100000-8
2
45200000-9
str. 1
Nazwa
Przygotowanie terenu pod budowę
2 ROBOTY ZIEMNE
Roboty budowlane w zakresie wznoszenia kompletnych obiektów budowlanych lub ich części oraz roboty w
zakresie inŜynierii lądowej i wodnej
1 ROBOTY TOWARZYSZĄCE
3 ROBOTY MONTAśOWE
Kosztorysowanie FORTE 6.01
Prawa autorskie
INWESTPROJEKT-SŁUPSK
SZKOŁA W CZERWONAKU - Kanalizacja
Stawka robocizny: 7,50
Waluta:złoty
Identyfikator kosztorysu: SZKOŁA W CZERWONAKU - KANALIZACJA
PRZEDMIAR
wyk.dn.2006-07-11
WU Kosztorys uproszczony
Nr
Nazwa
1
ROBOTY TOWARZYSZĄCE
1
ST-03 pkt 5.2
Rozebranie nawierzchni z kostki Pozbruk
ST-03 pkt 5.2
Rozebranie podbudowy z kruszywa gr.15 cm, ręczne
ST-03 pkt 5.2
Rozebranie krawęŜników betonowych na podsypce piaskowej
ST-03 pkt 5.2
Podbudowy z kruszyw naturalnych warstwa górna, gr.warstwy po zagęszczeniu
15 cm
-pod odtworzenie nawierzchni z kostki brukowej R=1,4 tab.9901 - wykonanie robót na pasach węŜszych niŜ 2.5m - podbudowa i
nawierzchnia z kruszywa naturalnego lub łamanego
S=1,8 j.w. [R=1,4;S=1,8]
ST-03 pkt 5.2
Nawierzchnia z kostki brukowej betonowej gr.8 cm na podsypce piaskowej,
wypełnienie spoin piaskiem
-ułoŜenie kostki z rozbiórki ST-03 pkt 5.2
KrawęŜniki betonowe wystające o wym.15x30 cm, ława betonowa, podsypka
cementowo-piaskowa
ST-03 pkt 5.2
Pomost drewniany z poręczami nad wykopem dla ruchu pieszego
ST-03 pkt 5.2
Rozebranie ogrodzeń z siatki na linkach
-rozbiórka ogrodzenia dla wykonania tymczasowego wjazdu ST-03 pkt 5.2
2
3
4
5
6
7
8
9
Jednostka Ilość
miary
Cena jedn.
m2
60,0
m2
60,0
m
4,0
m2
60,0
m2
60,0
m
4,0
m2
4,5
m
4,0
m
4,0
str. 1
Wartość
Ogrodzenie z siatki o wys.2 m na słupkach stal.o rozstawie 2.10 m z rur o
średnicy 76 mm
-montaŜ ogrodzenia po zlikwidowaniu wjazdu Razem rozdział 1: ROBOTY TOWARZYSZĄCE
2
ROBOTY ZIEMNE
10
ST-02 pkt 5.1
Roboty pomiarowe przy liniowych robotach ziemnych
ST-01 pkt 5
Ręczne usunięcie warstwy ziemi urodzajnej (humusu) gr.do 15cm z przerzutem humus z darnią
-pod wykop w trawnikach ST-01 pkt 5
Roboty ziemne wyk.koparkami,z transportem urobku samochodami
samowyładowczymi na odl.do 1 km - koparki podsiębierne o poj.łyŜki
0.15m3,kat.gruntu III
ST-01 pkt 5
Wykopy oraz przekopy wykonywane na odkład koparkami podsiębiernymi o
poj.łyŜki 0.15 m3, kat.gruntu III
ST-01 pkt 5
Wykopy liniowe o ścianach pionowych pod fundamenty,rurociągi i kolektory w
gruntach suchych,z wydobyciem urobku łopatą lub wyciągiem ręcznym gł.wykopu
do 3m,szer.0.8-1.5m,kat.gruntu III-IV
ST-01 pkt 5
Pełne umocnienie pionowych ścian wykopów liniowych balami drewnianymi w
gruntach suchych wraz z rozbiórką wykopy o szer.do 1m,gł.do 3m,kat.gruntu IIIIV
11
12
13
14
15
km
0,1
m2
105,4
m3
29,5
m3
187,8
m3
54,3
m2
390,8
wyk.dn.2006-07-11
WU Kosztorys uproszczony
Nr
Nazwa
Jednostka Ilość
miary
16
ST-01 pkt 5
Umocnienie ścian wykopów pod studzienki w gruntach suchych wraz z rozbiórką
- umocnienie balami drewnianymi,gł.wykopu do 3m,kat.gruntu III-IV
ST-01 pkt 5
Wykopy przy odkrywaniu istniejących fundamentów o głębokości do 1.5 m na
zewnątrz budynku grunt kat.III
-próbne przekopy w celu ustalenia wyjścia przewodów kanalizacji sanitarnej z
budynku ST-02 pkt 5.4
PodłoŜa z materiałów sypkich o gr. 15cm
ST-01 pkt 5
UłoŜenie drenaŜy z rur z tworzyw sztucznych w zwojach o średnicy nominalnej
50 mm
ST-01 pkt 5
Studzienki rewizyjne i zbiorcze drenaŜowe w dnie wykopu,osadniki piasku o Dn:
800-1000mm,kat.gruntu III
ST-01 pkt 5
Pompowanie wody z wykopu do rozliczenia wg dziennika pompowania
ST-02 pkt 5.6
Obsypka rurociągu gruntem z wykopu z jego przesianiem
ST-01 pkt 5
Zagęszczenie nasypów ubijakami mechanicznymi, grunt sypki kat.I-III
ST-01 pkt 5
Zasypywanie wykopów liniowych o ścianach pionowych gł.wykopu do
3m,szer.0.8-1.5m,kat.gruntu III-IV
ST-01 pkt 5
Zagęszczenie nasypów ubijakami mechanicznymi, grunt sypki kat.I-III
R=1,71 tab.9907 - wskaźnik zagęszczenia 0.99
S=1,71 j.w. [R=1,71;S=1,71]
m2
107,1
m3
5,9
m2
110,6
m
91,0
17
18
19
20
21
22
23
24
25
szt.o
gł.2m
Cena jedn.
2,0
mg
100,0
m3
33,9
m3
33,9
m3
54,3
m3
54,3
str. 2
Wartość
26
ST-01 pkt 5
Zasypywanie wykopów spycharkami przemieszczenie gruntu na odległość do 10
m, kat.gruntu I-III
27 ST-01 pkt 5
Zagęszczenie nasypów ubijakami mechanicznymi, grunt sypki kat.I-III
28 ST-03 pkt 5.1
Darniowanie na płask z humusem
-darnina miejscowa, zdjęta z powierzchni pod wykop 29 ST-01 pkt 5
MontaŜ konstrukcji podwieszeń rurociągów i kanałów
30 ST-01 pkt 5
DemontaŜ konstrukcji podwieszeń rurociągów i kanałów
Razem rozdział 2: ROBOTY ZIEMNE
3
ROBOTY MONTAśOWE
31
ST-02 pkt 5.5
Oczyszczenie zbiornika bezodpływowego ścieków
ST-02 pkt 5.5
Studnie rewizyjne w gotowym wykopie z kręgów betonowych o średnicy 1000mm
i głębokości studni 3m
-studnie rewizyjne na istniejącym kanale sanitarnym DN 200 mm ST-02 pkt 5.5
Rury z PCW kielichowe o średnicy nominalnej 200 mm
-przyłączenie kanalizacji deszczowej do istniejącej kanalizacji sanitarnej (wcinka
- 2 szt)
ST-02 pkt 5.5
Studnie rewizyjne w gotowym wykopie z kręgów betonowych o średnicy 1000mm
i głębokości studni 3m
-przebudowa istniejącej studni S2 -
32
33
34
m3
153,9
m3
153,9
m2
105,4
kpl
4,0
kpl
4,0
szt
1,0
studnia
2,0
m
2,0
studnia
1,0
wyk.dn.2006-07-11
WU Kosztorys uproszczony
Nr
Nazwa
Jednostka Ilość
miary
35
ST-02 pkt 5.5
Studnie rewizyjne w gotowym wykopie z kręgów betonowych o średnicy 1000mm
i głębokości studni 3m
-studnie z elementów prefabrykowanych z betonu B 45 W8, z pełną dennicą oraz
kinetą, elementy łączone na uszczelkę ST-02 pkt 5.5
Tuleje PVC 200 mm osadzone w ścianach studni rewizyjnych
ST-02 pkt 5.5
Remonty obiektów z betonu o objętości betonu w jednym miejscu do 0.3 m3
-naprawa istniejących studzienek rewizyjnych ST-02 pkt 5.5
Kanały z rur typu PVC łączone na wcisk - średnica zewnętrzna rury 200 mm
ST-02 pkt 5.5
Kanały z rur typu PVC łączone na wcisk - średnica zewnętrzna rury 160 mm
ST-02 pkt 5.5
Budowle i elementy betonowe
-przebudowa kinety studzienkach S2 i S Sistn. ST-02 pkt 5.5
Połączenie kanału z istniejącą kanalizacją sanitarną
ST-02 pkt 5.5
Próba wodna szczelności kanałów rurowych o średnicy nominalnej 200 m
ST-02 pkt 5.5
DemontaŜ studni rewizyjnych z kręgów betonowych w gotowym wykopie studnia z kręgów o średnicy 1000mm i głębokości 3mm
ST-02 pkt 5.5
DemontaŜ rurociągu sanitarnego DN 200 mm
studnia
2,0
szt
7,0
36
37
38
39
40
41
42
43
44
Cena jedn.
m3
betonu
0,10
m
88,0
m
9,0
m3
0,3
kpl
1,0
próba
3,0
kpl
1,0
m
5,0
str. 3
Wartość
45
ST-02 pkt 5.5
Wcinka do istniejącej studni rewizyjnej
Razem rozdział 3: ROBOTY MONTAśOWE
Razem kosztorys: SZKOŁA W CZERWONAKU - Kanalizacja
szt
3,0