A A 6 7 E D C 8 9 B A 7 6 8 9 12 10 11 E D C 12 10 11 B A B B A A 6

Transkrypt

A A 6 7 E D C 8 9 B A 7 6 8 9 12 10 11 E D C 12 10 11 B A B B A A 6
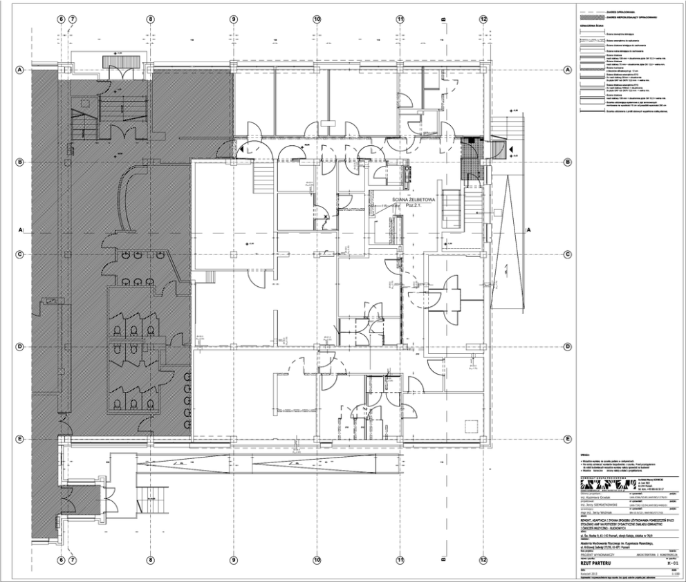
- ZAKRES OPRACOWANIA
7
8
9
10
11
12
B
6
- ZAKRES NIEPODLEGAJĄCY OPRACOWANIU
OZNACZENIA ŚCIAN:
- Ściana zewnętrzna istniejąca
118
118
118
118
- Ściana wewnętrzna do wyburzenia
- Ściana działowa istniejąca do zachowania
- Ściana nośna istniejąca do zachowania
-1,04
- Ściana działowa
ruszt stalowy 100 mm + obustronnie płyta GK 12,5 + wełna min.
- Ściana działowa
ruszt stalowy 75 mm + obustronnie płyta GK 12,5 + wełna min.
A
A
- Ściana murowana
z bloczków silikatowych gr. 12 cm
Ściana działowa wewnętrzna STG
- 2x ruszt stalowy 50mm + obustronnie
2x płyta GKF lub GKFI 12,5 mm + wełna min.
Ściana działowa wewnętrzna STG
- 2x ruszt stalowy 100mm + obustronnie
2x płyta GKF lub GKFI 12,5 mm + wełna min.
-1,03
- Ściana działowa
ruszt stalowy 100 mm + obustronnie płyta GK 12,5 + wełna min.
6x17x32
- Ścianka oddzielająca systemowa z płyt laminowanych
montowana na wysokości 15 cm od posadzki wysokości 200 cm
-0,98
10x15x33
- Ścianka oddzielenia z profili stalowych wypełniona siatką stalową
HP25+GP
±0,00
±0,00
-0,02
B
went
went
Ø=22.5
(hso=2.20)
hp 145
HP: HW-25W-K-30
Ø=22.5
(hso=2.20)
B
42
ŚCIANA ŻELBETOWA
Poz.2.1.
38
115
A
A
-1,44
Ø=22.5
(hso=2.20)
-1,44
C
C
D
went
Ø=25.0
(hso=1.75)
went
Ø=21.0
(hso=2.33)
went
went
went
Ø=30.0
(hso=2.33)
Ø=30.0
(hso=2.33)
went
Ø=25.0
(hso=2.28)
Ø=25.0
(hso=1.75)
12%
went
D
went
210
went
Ø=25.0
(hso=1.75)
Ø=25
(hso=2.20)
210
E
went
E
210
Ø=26.0
(hso=2.20)
506
6%
118
UWAGA:
+ Wszystkie wymiary na rysunku podano w centymetrach.
+ Nie należy odmierzać wymiarów bezpośrednio z rysunku. Przed przystąpieniem
do robót budowlanych wszystkie wymiary należy sprawdzić na budowie!
zmiany należy ustalać z projektantami.
+ Wszelkie konieczne
118
63
6%
KOMBINAT GRUPA PROJEKTOWA
k o mb i n a t @d a t a . p l
6x14x35
www. k ombi n a t . c om. pl
Architekt Maciej KORNECKI
ul. Lwa 30/2
61-244 Poznań
tel. kom. +48 606 66 58 17
Główny projektant :
nr uprawnień:
inż. Kazimierz Grzelak
UAN.8386/50/85;WKP/BO/1378/01
nr uprawnień:
podpis:
projektował:
inż. Jerzy SIEMIĄTKOWSKI
podpis:
sprawdzający:
UAN-7342-52/94;WKP/BO/4480/01
nr uprawnień:
podpis:
mgr inż. Jerzy Woźniak
BN-10.9/32/; WKP/BO/5717/01
obiekt:
REMONT, ADAPTACJA I ZMIANA SPOSOBU UŻYTKOWANIA POMIESZCZEŃ BYŁEJ
STOŁÓWKI AWF NA POTRZEBY DYDAKTYCZNE ZAKŁADU GIMNASTYKI
I ĆWICZEŃ MUZYCZNO - RUCHOWYCH
adres:
ul. Św. Rocha 9, 61-142 Poznań, obręb Rataje, działka nr 76/9
inwestor:
Akademia Wychowania Fizycznego im. Eugeniusza Piaseckiego,
ul. Królowej Jadwigi 27/39, 61-871 Poznań
faza projektu:
6
7
8
9
10
11
B
PROJEKT WYKONAWCZY
12
branża:
ARCHITEKTURA I KONSTRUKCJA
nazwa rysunku:
RZUT PARTERU
nr rysunku:
K-01
data:
skala
Kwiecień 2013
1:100
Kopiowanie i rozpowszechnianie tego rysunku bez zgody autorów projektu jest zabronione