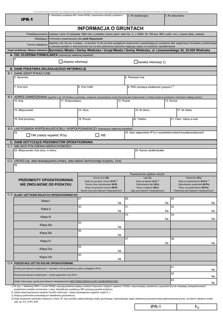
informacja o gruntach

Transkrypt

informacja o gruntach
POLA JASNE WYPEŁNIA PODATNIK. POLA CIEMNE WYPEŁNIA ORGAN PODATKOWY. WYPEŁNIAĆ NA MASZYNIE, KOMPUTEROWO LUB RĘCZNIE, DUŻYMI, DRUKOWANYMI LITERAMI, CZARNYM LUB NIEBIESKIM KOLOREM.
1. Identyfikator podatkowy NIP / numer PESEL (niepotrzebne skreślić) podatnika1)
2. Nr ewidencyjny
3. Nr dokumentu
IPR-1
INFORMACJA O GRUNTACH
Podstawa prawna: Ustawa z dnia 15 listopada 1984 roku o podatku rolnym (jedn. tekst Dz. U. z 2006r. Nr 136 poz. 969 z późn. zm.), zwana dalej „ustawą”.
Składający: Formularz przeznaczony dla osób fizycznych
Termin składania:
Organ podatkowy / Miejsce składania:
Zgodnie z art. 6a ust. 5 ustawy - w terminie 14 dni od dnia wystąpienia okoliczności uzasadniających powstanie albo wygaśnięcie obowiązku podatkowego
w zakresie podatku o nieruchomości lub od dnia zaistnienia zdarzenia mającego wpływ na wysokość opodatkowania.
Burmistrz Miasta i Gminy Wieliczka / Urząd Miasta i Gminy Wieliczka, ul. Limanowskiego 32, 32-020 Wieliczka
A. CEL ZŁOŻENIA FORMULARZA (zaznaczyć właściwy kwadrat):
4.
złożenie informacji
korekta informacji 2)
B. DANE PODATNIKA SKŁADAJĄCEGO INFORMACJĘ
B.1. DANE IDENTYFIKACYJNE
5. Nazwisko
6. Pierwsze imię
7. Imię ojca
9. PKD (wiodąca działalność gospod.) 3)
8. Imię matki
B.2. ADRES ZAMIESZKANIA (zgodnie z art. 25 Kodeksu cywilnego, miejscem zamieszkania osoby fizycznej jest miejscowość, w której osoba ta przebywa z zamiarem stałego pobytu)
10. Kraj
11. Województwo
14. Miejscowość
15. Ulica
18. Kod pocztowy
19. Poczta
12. Powiat
13. Gmina
16. Nr domu
17. Nr lokalu
20. Telefon
21. Faks / Adres e-mail
B.3. LAS POSIADA WSPÓŁWŁAŚCICIELI / WSPÓŁPOSIADACZY (zaznaczyć właściwy kwadrat):
23. Ilość załączników IP1a o współwłaścicielach/współposiadaczach
22.
TAK (należy wypełnić IP1a)
NIE
C. DANE DOTYCZĄCE PRZEDMIOTÓW OPODATKOWANIA
C.1. MIEJSCE POŁOŻENIA NIERUCHOMOŚCI
24. Miejscowość i/lub ulica, nr domu
25. Numer działki/działek
C.2. UWAGI (np. data obowiązywania zmiany, data odbioru technicznego budynku, inne)
26.
Powierzchnia użytków rolnych
PRZEDMIOTY OPODATKOWANIA
NIE ZWOLNIONE OD PODATKU
Grunty orne (R),
Łąki (Ł)
Pastwiska (Ps)
Sady na gruntach ornych (S-R) 4)
Grunty rolne zabudowane (B-R)
Rowy na gruntach ornych (W-R)
Grunty orne pod stawami niezarybionymi
Sady na łąkach (S-Ł) 4)
Zabudowane łąki (B-Ł)
Rowy na łąkach (W-Ł)
Łąki pod stawami niezarybionymi
Sady na pastwiskach (S-Ps) 4)
Zabudowane pastwiska (B-Ps)
Rowy na pastwiskach (W-Ps)
Pastwiska pod stawami niezarybionymi
C.3. KLASY UŻYTKÓW ROLNYCH OPODATKOWANYCH
Klasa I
Klasa II
27.
28.
30.
Klasa IIIb
Klasa IVb
ha
32.
ha
ha
33.
ha
34.
ha
ha
35.
ha
36.
ha
37.
Klasa IV
Klasa IVa
ha
31.
Klasa III
Klasa IIIa
29.
ha
38.
ha
ha
39.
ha
40.
ha
C.4. POZOSTAŁE UŻYTKI ROLNE OPODATKOWANE
41.
Grunty pod stawami zarybionymi - łososiem, trocią, głowacicą, palią i pstrągiem (Wsr)
ha
42.
Grunty pod stawami zarybionymi - innymi gatunkami ryb (Wsr)
ha
43.
Użytki rolne (rowy, grunty pod stawami niezarybionymi) BEZ OZNACZENIA KLASY GLEBOZNAWCZEJ
ha
1) W poz. 1 deklaracji DPN-1 numer PESEL wpisują podatnicy będący osobami fizycznymi objętymi rejestrem PESEL nieprowadzący działalności gospodarczej lub niebędący zarejestrowanymi
podatnikami podatku od towarów i usług. Identyfikator podatkowy NIP wpisują pozostali podatnicy.
2) Jeżeli został zaznaczony kwadrat "korekta informacji", należy obowiązkowo wypełnić część E.1.
3) Dotyczy podmiotów prowadzących działalność gospodarczą.
4) Sady oznaczone symbolem złożonym z litery "S" oraz symbolu odpowiedniego użytku gruntowego, stanowiącego część składową oznaczenia klasy gleboznawczej gruntu, na którym założony został
sad, np. S-Ł, S-Ps, S-R;
IPR-1
1/2
POLA JASNE WYPEŁNIA PODATNIK. POLA CIEMNE WYPEŁNIA ORGAN PODATKOWY. WYPEŁNIAĆ NA MASZYNIE, KOMPUTEROWO LUB RĘCZNIE, DUŻYMI, DRUKOWANYMI LITERAMI, CZARNYM LUB NIEBIESKIM KOLOREM.
D. ZWOLNIENIA I ULGI PODATKOWE
Przedmiot zwolnienia
Podstawa prawna zwolnienia
(powierzchnia w ha fizycznych)
44.
D.1. Art.12 ust.1 pkt 1 ustawy 5) - użytki rolne klasy V, VI i VIz
ha
D.2. Art.12 ust.1 pkt 1 ustawy 5) - grunty zadrzewione i zakrzewione ustanowione na użytkach rolnych
Art.12 ust.1 pkt 4 ustawy 6) - grunty na utworzenie nowego gospodarstwa rolnego lub powiększenie już istniejącego do powierzchni
D.3.
nieprzekraczającej 100 ha
45.
ha
46.
ha
75%
W przypadku korzystania z ulgi, po upływie okresu zwolnienia (zaznaczyć właściwy kwadrat)
D.4. Art.12 ust.1 pkt 5 ustawy 6) - grunty gospodarstw rolnych powstałe z zagospodarowania nieużytków
ha
75%
W przypadku korzystania z ulgi, po upływie okresu zwolnienia (zaznaczyć właściwy kwadrat)
D.5. Art.12 ust.1 pkt 6 ustawy 6) - grunty gospodarstw rolnych otrzymane w drodze wymiany lub scalenia
50%
47.
50%
48.
ha
75%
W przypadku korzystania z ulgi, po upływie okresu zwolnienia (zaznaczyć właściwy kwadrat)
50%
49.
D.6. Art.12 ust.1 pkt 8 ustawy 5) - użytki ekologiczne
ha
D.7. Art.12 ust.1 pkt 10 ustawy 5) - grunty pod wałami przeciwpowodziowymi i grunty położone w międzywalach
50.
ha
51.
D.8. Art.12 ust.1 pkt 11 ustawy 5) - grunty wpisane do rejestru zabytków
ha
52.
D.9. Art.13 ustawy 6) - ulga inwestycyjna (zaznaczyć właściwy kwadrat)
Art.13a ustawy 6) - ulga dla żołnierzy odbywających zasadniczą służbę wojskową lub długotrwałe przeszkolenie wojskowe, osób spełniających zastępczo
TAK
NIE
60%
40%
60%
30%
TAK
NIE
53.
D.10. obowiązek służby wojskowej w formie skoszarowanej i prowadzących te gospodarstwa bezpośrednio przed powołaniem do służby oraz członków rodzin tych osób
(zaznaczyć właściwy kwadrat)
D.11. Art.13b ustawy 5) - ulga dla gruntów położonych na terenach podgórskich i górskich (zaznaczyć właściwy kwadrat)
D.12. Art.13c ustawy 6) - ulga z tytułu wystąpienia klęski żywiołowej (zaznaczyć właściwy kwadrat)
D.13. 56. Inne zwolnienia nie wymienione powyżej - proszę wpisać podstawę prawną zwolnienia
54.
55.
57.
ha
E. OŚWIADCZENIE I PODPIS PODATNIKA* / PEŁNOMOCNIKA* (*niepotrzebne skreślić)
E.1. PISEMNE UZASADNIENIE PRZYCZYNY KOREKTY (zgodnie z art. 81 § 2 - ustawy Ordynacja Podatkowa)
....................................................................................................................................................................................................................................................................................................................................................................................................................................................................................
....................................................................................................................................................................................................................................................................................................................................................................................................................................................................................
....................................................................................................................................................................................................................................................................................................................................................................................................................................................................................
....................................................................................................................................................................................................................................................................................................................................................................................................................................................................................
E.2. OŚWIADCZENIE I PODPIS SKŁADAJĄCEGO INFORMACJĘ
Oświadczam, że są mi znane przepisy Kodeksu karnego skarbowego o odpowiedzialności za
podanie danych niezgodnych z rzeczywistością.
58. Nazwisko
59. Pierwsze imię
60. Data wypełnienia informacji (dzień.miesiąc.rok)
61.Czytelny podpis (pieczątka) składającego informację
F. ADNOTACJE ORGANU PODATKOWEGO
62. Uwagi organu podatkowego
63. Data i podpis przyjmującego informację
5) Zwolnienia i ulgi podatkowe określone w art. 12 ust. 1 pkt 1 i 2 oraz pkt 8-12, a także w art. 13b stosuje się z urzędu (patrz art. 13d).
6) Zwolnienia i ulgi podatkowe nie określone w art. 12 ust. 1 pkt 1 i 2 oraz pkt 8-12, a także w art. 13b stosuje się na podstawie decyzji wydanej na wniosek podatnika.
IPR-1
2/2