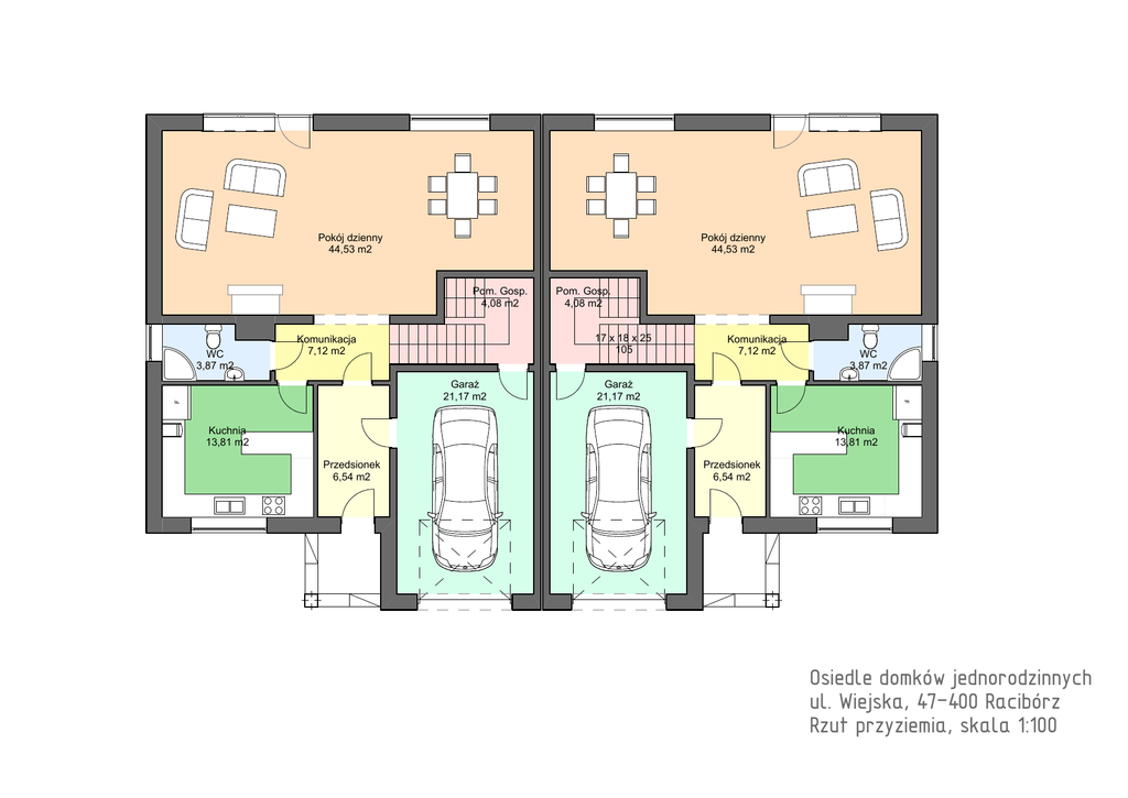
Rzut przyziemia

Transkrypt

Rzut przyziemia
Pokój dzienny
44,53 m2
Pokój dzienny
44,53 m2
Pom. Gosp.
4,08 m2
WC
3,87 m2
17 x 18 x 25
105
Komunikacja
7,12 m2
Komunikacja
7,12 m2
WC
3,87 m2
Garaż
21,17 m2
F
Garaż
21,17 m2
F
Pom. Gosp.
4,08 m2
Kuchnia
13,81 m2
Kuchnia
13,81 m2
Przedsionek
6,54 m2
Przedsionek
6,54 m2
Osiedle domków jednorodzinnych
ul. Wiejska, 47-400 Racibórz
Rzut przyziemia, skala 1:100