karta katalogowa

Transkrypt

karta katalogowa
Wytyczne do przygotowania przyłączy dla pieca elektrycznego MKN wielkości 6.1
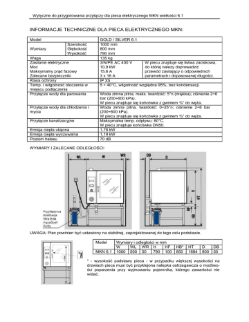
INFORMACJE TECHNICZNE DLA PIECA ELEKTRYCZNEGO MKN:
Model
Wymiary
Szerokość
Głębokość
Wysokość
Waga
Zasilanie elektryczne
Moc
Maksymalny prąd fazowy
Zalecane bezpieczniki
Klasa ochrony
Temp. i wilgotność otoczenia w
miejscu podłączenia
Przyłącze wody dla parowania
Przyłącze wody dla chłodzenia i
mycia
Przyłącze kanalizacyjne
Emisja ciepła utajona
Emisja ciepła wyczuwalna
Poziom hałasu
GOLD / SILVER 6.1
1000 mm
800 mm
790 mm
135 kg
3/N/PE AC 400 V
W piecu znajduje się listwa zaciskowa,
10,9 kW
do której należy doprowadzić
przewód zasilający o odpowiednich
15,6 A
parametrach i dopasowanej długości.
3 x 16 A
IP X5
5 ÷ 40°C, wilgotność względna 95%, bez kondensacji.
Woda zimna pitna, maks. twardość: 5°n (miękka); ciśnienie 2÷6
bar (200÷600 kPa).
W piecu znajduje się końcówka z gwintem ¾” do węża.
Woda zimna pitna, twardość: 0÷25°n; ciśnienie 2÷6 bar
(200÷600 kPa).
W piecu znajduje się końcówka z gwintem ¾” do węża.
Maksymalna temp. odpływu: 80°C.
W piecu znajduje końcówka DN50.
1,78 kW
1,19 kW
70 dB
WYMIARY I ZALECANE ODLEGŁOŚCI:
UWAGA: Piec powinien być ustawiony na stabilnej, zaprojektowanej do tego celu podstawie.
Model
MKN 6.1
Wymiary i odległości w mm
W
WL WR H
HF
1000 500 50
790 100
HB*
850
HT
1684
D
800
DB
50
* - wysokość podstawy pieca - w przypadku większej wysokości na
drzwiach pieca musi być przyklejona nalepka ostrzegawcza o możliwości poparzenia przy wyjmowaniu pojemnika, którego zawartości nie
widać.
Wytyczne do przygotowania przyłączy dla pieca elektrycznego MKN wielkości 6.1
INFORMACJE O PRZYŁĄCZACH:
WYMAGANE PRZYŁĄCZE
 ELEKTRYCZNE 3/N/PE
AC 400 V
WYTYCZNE
Przygotować gniazdo 16A w dostępnym miejscu z lewej strony
pieca na wysokości ok. 150 cm.
Przygotować zawór czerpalny ½” ze złączką do węża ¾" w dostępnym miejscu z lewej strony pieca na wysokość ok. 50 cm, z którego
 WODA ZMIĘKCZONA
woda będzie podawana do zmiękczacza (jeżeli w obiekcie jest
DLA PAROWANIA
osobny obieg wody zmiękczonej, wtedy wodę należy podawać z
zaworu wprost do pieca). Max. przepływ - 1 l/min.
Przygotować zawór czerpalny ½” ze złączką do węża ¾" w dostępnym miejscu z lewej strony pieca na wysokość ok. 50 cm. Max.
przepływ - 20 l/min.
 WODA ZIMNA DLA
UWAGA: do mycia i chłodzenia można podawać wodę zmiękCHŁODZENIA I MYCIA czoną, w takim wypadku wystarczy przygotowanie jednego
zaworu, z którego poprzez zmiękczacz woda będzie podawana
do obu wejść w piecu.
Dla pieca w wersji GOLD oraz SILVER z systemem mycia WaveClean przygotować króciec DN50 do podłączenia stałego bez syfonu
(syfon i przelew bezpieczeństwa znajdują się w piecu) na wysokości ok. 40 cm za piecem (lub w wyjątkowej sytuacji kratkę ściekową
w pobliżu pieca, której konstrukcja umożliwia włożenia rury odpły KANALIZACJA
wowej DN50).
UWAGA: piec w wersji SLIVER bez systemu mycia WaveClean
należy podłączyć do odpływu poprzez lejek, nie może być podłączenia stałego, ponieważ piec w tej wersji nie zawiera syfonu.
Max. temp. odpływu: 80°C; max. przepływ: 25 l/min.
Urządzenie powinno być umieszczone pod okapem wentylacyjnym.
 WENTYLACJA Przyłącze należy określić w projekcie układu wentylacji po-
mieszczenia.
UWAGI:
 PRZYŁĄCZENIE PIECA DO POSZCZEGÓLNYCH INSTALACJI ORAZ PIERWSZE URU-
CHOMIENIE MUSI BYĆ WYKONANE PRZEZ AUTORYZOWANEGO TECHNIKA.

 Ciśnienie wody zasilającej nie może być niższe niż 200 kPa (2 bar) i wyższe niż 600 kPa (6
bar). Przy ciśnieniu wyższym należy zastosować zawór redukcyjny.


Podłoga
pod piecem powinna być wypoziomowana.

 Z prawej strony i z tyłu pieca zaleca się zachowanie dystansu od ściany około 50 mm. Z lewej
strony pieca musi być dostępna przestrzeń nie mniej niż 500 mm. Zalecana odległość: 800
mm.

 Z lewej strony musi być zachowany przynajmniej 500 mm odstęp od pieca dla sąsiednich
urządzeń grzewczych.
UWAGI DO JAKOŚCI WODY:
 Zaleca się zmiękczanie wody, jeżeli twardość przekracza 5°n.

 Zawartość chloru nie może przekraczać 150 mg/l - dla redukcji zawartości stosować system
demineralizacji.


Jeżeli woda jest zanieczyszczona mechanicznie, należy zastosować filtr 0,08 mm.

 Niektóre składniki zawarte w wodzie (jony sodu, krzemiany) mogą powodować powstawanie
nalotu na powierzchniach w komorze.

 W przypadku złej jakości wody zaleca się stosowanie systemu filtrującego np. Brita.