ankieta Pilchowice - Urząd Gminy Pilchowice

Transkrypt

ankieta Pilchowice - Urząd Gminy Pilchowice
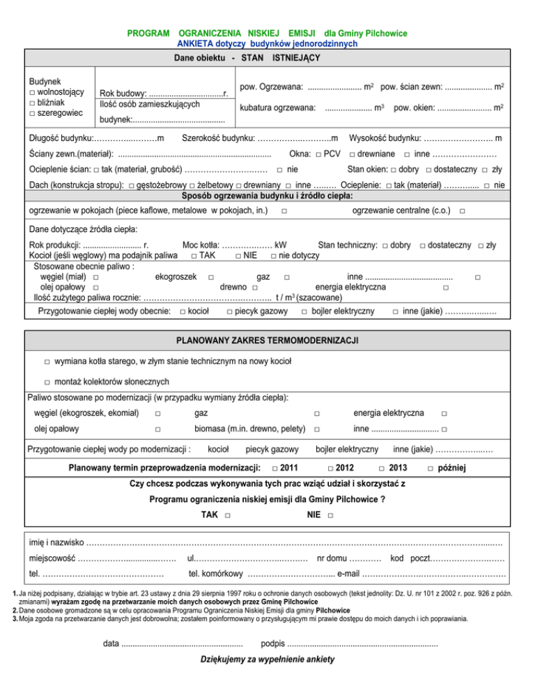
PROGRAM OGRANICZENIA NISKIEJ EMISJI dla Gminy Pilchowice
ANKIETA dotyczy budynków jednorodzinnych
Dane obiektu - STAN ISTNIEJĄCY
Budynek
□ wolnostojący
□ bliźniak
□ szeregowiec
Rok budowy: .................................r.
Ilość osób zamieszkujących
pow. Ogrzewana: ........................ m2 pow. ścian zewn: ..................... m2
kubatura ogrzewana: ..................... m3 pow. okien: ........................ m2
budynek:.........................................
Długość budynku:…………...………m
Szerokość budynku: ……………..………..m
Ściany zewn.(materiał): ....................................................................
Wysokość budynku: …………………….. m
Okna: □ PCV □ drewniane □ inne ……………………
Ocieplenie ścian: □ tak (materiał, grubość) …………………….…… □ nie
Stan okien: □ dobry □ dostateczny □ zły
Dach (konstrukcja stropu): □ gęstoŜebrowy □ Ŝelbetowy □ drewniany □ inne …..…. Ocieplenie: □ tak (materiał) ………..... □ nie
Sposób ogrzewania budynku i źródło ciepła:
ogrzewanie w pokojach (piece kaflowe, metalowe w pokojach, in.)
□
ogrzewanie centralne (c.o.) □
Dane dotyczące źródła ciepła:
Rok produkcji: .......................... r.
Moc kotła: ………….…… kW
Stan techniczny: □ dobry □ dostateczny □ zły
Kocioł (jeśli węglowy) ma podajnik paliwa □ TAK
□ NIE □ nie dotyczy
Stosowane obecnie paliwo :
węgiel (miał) □
ekogroszek □
gaz □
inne .......................................
□
olej opałowy □
drewno □
energia elektryczna
□
Ilość zuŜytego paliwa rocznie: ……………………………….……….. t / m3 (szacowane)
Przygotowanie ciepłej wody obecnie: □ kocioł
□ piecyk gazowy □ bojler elektryczny
□ inne (jakie) ……….…...….
PLANOWANY ZAKRES TERMOMODERNIZACJI
□ wymiana kotła starego, w złym stanie technicznym na nowy kocioł
□ montaŜ kolektorów słonecznych
Paliwo stosowane po modernizacji (w przypadku wymiany źródła ciepła):
węgiel (ekogroszek, ekomiał)
□
gaz
olej opałowy
□
biomasa (m.in. drewno, pelety) □
Przygotowanie ciepłej wody po modernizacji :
□
kocioł
piecyk gazowy
Planowany termin przeprowadzenia modernizacji:
□ 2011
energia elektryczna
□
inne .............................. □
bojler elektryczny
□ 2012
inne (jakie) ……………...….
□ 2013
□ później
Czy chcesz podczas wykonywania tych prac wziąć udział i skorzystać z
Programu ograniczenia niskiej emisji dla Gminy Pilchowice ?
TAK □
NIE □
imię i nazwisko …………………………………………………………………………………………………………………………………....….
miejscowość ………………..............…….
ul.…………………………..…….… nr domu ………… kod poczt………………….……
tel. ………………………………………
tel. komórkowy …………………………... e-mail ………………….……………..……………
1. Ja niŜej podpisany, działając w trybie art. 23 ustawy z dnia 29 sierpnia 1997 roku o ochronie danych osobowych (tekst jednolity: Dz. U. nr 101 z 2002 r. poz. 926 z późn.
zmianami) wyraŜam zgodę na przetwarzanie moich danych osobowych przez Gminę Pilchowice
2. Dane osobowe gromadzone są w celu opracowania Programu Ograniczenia Niskiej Emisji dla gminy Pilchowice
3. Moja zgoda na przetwarzanie danych jest dobrowolna; zostałem poinformowany o przysługującym mi prawie dostępu do moich danych i ich poprawiania.
data ......................................................
podpis ...................................................................
Dziękujemy za wypełnienie ankiety
Program Ograniczenia Niskiej Emisji w Gminie Pilchowice
Realizacja Programu Ograniczenia Niskiej Emisji polega na przeprowadzeniu prac termomodernizacyjnych
w budynkach indywidualnych jednorodzinnych stanowiących własność mieszkańców, przy udziale środków
z WFOŚIGW w Katowicach. Głównym celem Programu jest zmniejszenie zanieczyszczenia powietrza poprzez
wymianę starych, nieefektywnych urządzeń grzewczych na kotły nowoczesne, o wysokiej sprawności i ekologiczne
oraz montaŜ kolektorów słonecznych.
Warunkiem uzyskania dofinansowania oraz wdroŜenia Programu jest w duŜej mierze odpowiednie
zainteresowanie mieszkańców. Dlatego tak waŜne jest wypełnienie ankiety i złoŜenie jej w Urzędzie Gminy. Po
zebraniu odpowiedniej ilości ankiet Gmina przystąpi do kolejnego etapu przygotowań do realizacji Programu.
Wypełnienie ankiet jest dobrowolne, natomiast jest ona cennym źródłem informacji niezbędnych do uzyskania przez
Gminę dofinansowania.
Przewiduje się, Ŝe mieszkańcy będą mogli liczyć na uzyskanie dofinansowania w wysokości do 60%
kosztów wykonania modernizacji.
Mieszkaniec będzie musiał dysponować własnym wkładem finansowym, czyli około 40% plus nadwyŜka
ponad przyjęte górne granice kosztów. Wszystkie prace termomodernizacyjne zostaną wykonane przez
wykwalifikowane firmy.
W ramach Programu mieszkaniec będzie mógł uzyskać dotację m.in. na zakup i montaŜ nowego kotła,
likwidując stare nieekologiczne źródło ciepła, na montaŜ kolektorów słonecznych wykorzystujących energię
słoneczną do podgrzewania wody uŜytkowej. Program w ten sposób promuje odnawialne źródła energii, które stają
się coraz bardziej popularne i dostępne.
Program, oprócz korzyści ekonomicznych (oszczędność paliwa), przyczyni się znacznie do poprawy stanu
powietrza, zwiększy atrakcyjność i polepszy wizerunek Gminy.
Realizacja Programu oraz zakres moŜliwych do przeprowadzenia przez mieszkańców prac modernizacyjnych
zaleŜy ostatecznie od zainteresowania mieszkańców, moŜliwości finansowych Gminy oraz otrzymania
dofinansowania z Wojewódzkiego Funduszu Ochrony Środowiska i Gospodarki Wodnej w Katowicach.
Kolejnym krokiem będzie składanie wniosków o udział w Programie przez mieszkańców a następnie
podpisanie wiąŜących umów z mieszkańcami, które będą określać wielkość indywidualnego dofinansowania oraz
zasady jego rozliczenia. NaleŜy pamiętać o tym, Ŝe dotacja przekazana będzie tylko na prace, które będą
przeprowadzane po uzyskaniu przez Gminę dofinansowania z WFOŚiGW.
Dodatkowe informacje znajdą Państwo na stronach
www.niskaemisja.pl
Wypełnioną ankietę prosimy złoŜyć u sołtysa lub w Urzędzie Gminy Pilchowice pokój nr 10
najpóźniej do dnia
08.06.2011 !!!
W razie jakichkolwiek wątpliwości czy pytań związanych z ankietą, Programem prosimy o kontakt z:
•
Urzędem Gminy Pilchowice – Gabriela Frystacka, tel. (32) 235 65 69
•
Firmą AT GROU SA., która zajmuje się przygotowaniem Programu, tel. (032) 494 48 79,
e-mail: [email protected]
Zachęcamy równieŜ do przekazywania uwag i sugestii, które pomogą w tworzeniu Programu.