ankieta - Gmina Libiąż

Transkrypt

ankieta - Gmina Libiąż
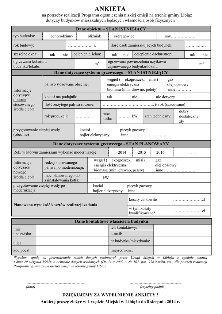
ANKIETA
na potrzeby realizacji Programu ograniczenia niskiej emisji na terenie gminy Libiąż
dotyczy budynków mieszkalnych będących własnością osób fizycznych
Dane obiektu – STAN ISTNIEJĄCY
typ budynku:
jednorodzinny
rok budowy:
bliźniak
szeregowiec
……………… r.
szczelne okna:
tak
nie
ilość osób zamieszkujących budynek:
ocieplenie ścian:
ogrzewana kubatura
budynku/lokalu:
......….. m3
inny………………
tak
.……..……
ocieplenie dachu/stropu:
nie
tak
ogrzewana powierzchnia użytkowa
zajmowanego budynku/lokalu:
nie
............ m2
Dane dotyczące systemu grzewczego – STAN ISTNIEJĄCY
Informacje
dotyczące
obecnie
stosowanego
źródła ciepła
paliwo stosowane obecnie:
węgiel ( ekogroszek, miał)
energia elektryczna
biomasa (min. drewno, pelety)
kocioł ma podajnik:
tak
nie
gaz
olej opałowy
inne …………
nie dotyczy
ilość zużytego paliwa rocznie:
……………………………….. t/ rok (szacowane)
rok produkcji:
moc
kotła:
..………..
przygotowanie ciepłej wody
(obecnie)
kocioł
bojler elektryczny
……… kW
dobry
dostateczny
zły
stan techniczny:
piecyk gazowy
inne……………………….
Dane dotyczące systemu grzewczego - STAN PLANOWANY
Rok, w którym zamierzam wykonać modernizację
Informacje
dotyczące
nowego
źródła ciepła
rodzaj stosowanego
paliwa po modernizacji:
moc planowanego do
zainstalowania kotła:
przygotowanie ciepłej wody po
modernizacji
2014
2015
węgiel ( ekogroszek, miał)
energia elektryczna
biomasa (min. drewno, pelety)
……
2016
gaz
olej opałowy
inne …………………..
……… kW
kocioł
bojler elektryczny
Planowana wysokość kosztów realizacji zadania
piecyk gazowy
inne……………………….
koszty całkowite
…………………zł
w tym koszty
kwalifikowane*
…………………zł
Dane kontaktowe właściciela budynku
tel. kontaktowy:
imię
i nazwisko
e-mail:
nr budynku/mieszkania:
ulica:
kod poczt.:
miejscowość:
Wyrażam zgodę na przetwarzanie moich danych osobowych przez Urząd Miejski w Libiążu z zgodnie ustawą
z dnia 29 sierpnia 1997r. o ochronie danych osobowych (Dz. U. z 2002 r. Nr 101, poz. 926 z późn. zm.) dla potrzeb realizacji
Programu ograniczenia niskiej emisji na terenie gminy Libiąż
………………………………………………………………
(data)
………………………………………………………
(czytelny podpis)
DZIĘKUJEMY ZA WYPEŁNIENIE ANKIETY !
Ankietę proszę złożyć w Urzędzie Miejski w Libiążu do 8 sierpnia 2014 r.
ANKIETA
na potrzeby realizacji Programu ograniczenia niskiej emisji na terenie gminy Libiąż
dotyczy budynków mieszkalnych będących własnością osób fizycznych
Program ograniczenia niskiej emisji na terenie gminy Libiąż (PONE) polega na wymianie starych
i nieefektywnych pieców węglowych na ekologiczne kotły o wysokiej sprawności. Zgodnie z zapisami
PONE Gmina Libiąż planuje złożyć wniosek o dofinansowanie z Wojewódzkiego Funduszu Ochrony
Środowiska i Gospodarki Wodnej w Krakowie.
Warunkiem złożenia wniosku i wdrożenia Programu jest pozyskanie danych i zainteresowanych
mieszkańców udziałem w realizacji inwestycji. Dane zawarte w ankiecie są źródłem informacji
niezbędnych do uzyskania przez Gminę dofinansowania. Wypełnienie ankiety jest dobrowolne.
Ankieta ma tylko charakter informacyjny - nie stanowi żadnej formy zobowiązania, będzie tylko
podstawą do przygotowania wniosku o dofinansowanie z WFOŚiGW w Krakowie.
Osoby zainteresowane skorzystaniem z Programu ograniczania niskiej emisji na dalszym etapie będą
informowani o dalszych działaniach.
Zakres rzeczowy inwestycji wynikający z współfinansowania z WFOŚiGW obejmował będzie wykonanie:
1. Demontażu kotłowni, palenisk opalanych paliwem stałym o niskiej sprawności energetycznej.
2. Montażu nowej kotłowni na gaz wraz z wewnętrzną instalacją c.o. i c.w.u. z wyłączeniem kosztów grzejników.
3. Montażu nowej kotłowni na olej wraz z wewnętrzną instalacją c.o. i c.w.u. z wyłączeniem kosztów grzejników.
4.Montażu nowej kotłowni na węgiel lub biomasę wraz z wewnętrznymi pionami c.o. i c.w.u.
z wyłączeniem kosztów grzejników, o sprawności energetycznej większej bądź równej 87 % dla kotłów
zasilanych kwalifikowanymi paliwami węglowymi. Ponadto stężenie pyłu całkowitego w gazach wylotowych
wyznaczone przy 10% O2 odniesione do spalin suchych, 0oC, 1013 mbar dla obciążenia
100 % mocy nominalnej kotła nie może osiągać wartości większej niż 40 mg/m3, OGC nie więcej niż
20 mg/m3.Powyższe wartości parametrów obowiązują dla kotłów instalowanych po 1 lipca 2015 r.
co odpowiada klasie 5 wg normy PN-EN 303-5:2012 dla wszystkich paliw dopuszczalnych w instrukcji
użytkowania urządzenia. Dla kotłów instalowanych do 30 czerwca 2015 r. o sprawności energetycznej większej
bądź równej 80 % stężenie pyłu całkowitego w gazach wylotowych wyznaczone przy 10% O2 odniesione do
spalin suchych, 0oC, 1013 mbar dla obciążenia 100 % mocy nominalnej kotła nie może osiągać wartości większej
niż 60 mg/m3, OGC nie więcej niż 30 mg/m3 co odpowiada klasie 4 wg normy PN-EN 303-5:2012 dla wszystkich
paliw dopuszczalnych w instrukcji użytkowania urządzenia.
5. Podłączenia do sieci ciepłowniczej wraz z wewnętrzną instalacją c.o. i c.w.u. z wyłączeniem kosztów grzejników.
6. Montaż pieca zasilanego prądem elektrycznym wraz z podłączeniem do sieci energetycznej oraz wewnętrznej linii
zasilania.
Dofinansowanie nowej kotłowni na węgiel lub biomasę będzie możliwe w przypadku braku
technicznej możliwości podłączenia do sieci ciepłowniczej.
* Koszty kwalifikowane stanowią w szczególności:
1. Dla kotłów gazowych, olejowych, węglowych oraz na biomasę.
1.1. Demontaż starego źródła ciepła.
1.2. Zakup i montaż nowego źródła ciepła.
1.3. Zakup i montaż niezbędnej armatury: czopuch, pompy wymaganej do prawidłowego funkcjonowania i obiegu
instalacji c. o., zawór trój- /czwór- drogowy, zawory przelotowe i zwrotne, zespół rurowy, izolacja
rurociągów, montaż naczynia zbiorczego, osprzęt niezbędny do zainstalowania nowego źródła ciepła, wkład
kominowy – tylko w przypadku kotłów gazowych.
1.4. Wewnętrzną instalacją c.o. i c.w.u z wyłączeniem kosztów grzejników.
2. Podłączenie do miejskiej sieci ciepłowniczej.
2.1. Demontaż starego źródła ciepła.
2.2. Koszty podłączenia do węzła ciepła wraz z instalacją rozprowadzającą.
2.3. Wewnętrzną instalacją c.o. i c.w.u z wyłączeniem kosztów grzejników.
3. Montaż pieca zasilanego prądem elektrycznym.
3.1. Demontaż starego źródła ciepł.
3.2. Podłączenie do zewnętrznego źródła energii elektrycznej.
3.3. Wewnętrzna linia zasilania.