załącznik nr 6: Warunki dostepu do kanalizacji kablowej Orange

Transkrypt

załącznik nr 6: Warunki dostepu do kanalizacji kablowej Orange
DANE CHRONIONE PRZED DETALEM
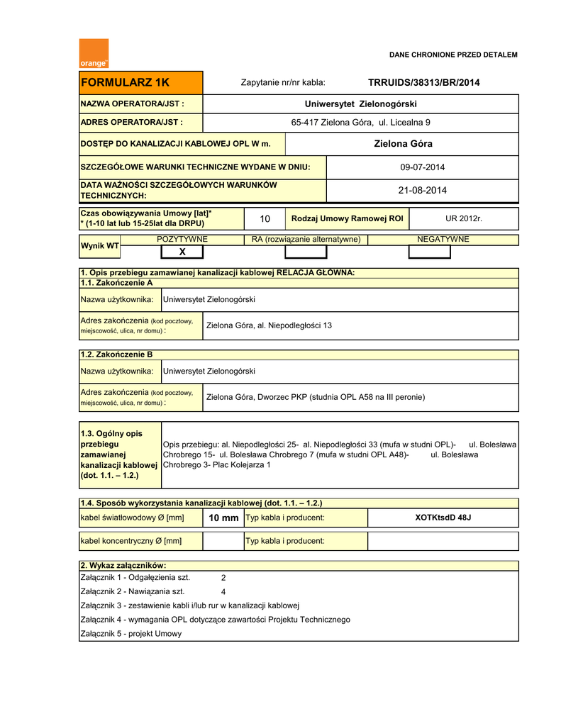
FORMULARZ 1K
Zapytanie nr/nr kabla:
TRRUIDS/38313/BR/2014
NAZWA OPERATORA/JST :
Uniwersytet Zielonogórski
ADRES OPERATORA/JST :
65-417 Zielona Góra, ul. Licealna 9
Zielona Góra
DOSTĘP DO KANALIZACJI KABLOWEJ OPL W m.
SZCZEGÓŁOWE WARUNKI TECHNICZNE WYDANE W DNIU:
09-07-2014
DATA WAŻNOŚCI SZCZEGÓŁOWYCH WARUNKÓW
TECHNICZNYCH:
21-08-2014
Czas obowiązywania Umowy [lat]*
* (1-10 lat lub 15-25lat dla DRPU)
Wynik WT
10
POZYTYWNE
Rodzaj Umowy Ramowej ROI
RA (rozwiązanie alternatywne)
UR 2012r.
NEGATYWNE
X
1. Opis przebiegu zamawianej kanalizacji kablowej RELACJA GŁÓWNA:
1.1. Zakończenie A
Nazwa użytkownika:
Uniwersytet Zielonogórski
Adres zakończenia (kod pocztowy,
miejscowość, ulica, nr domu) :
Zielona Góra, al. Niepodległości 13
1.2. Zakończenie B
Nazwa użytkownika:
Uniwersytet Zielonogórski
Adres zakończenia (kod pocztowy,
miejscowość, ulica, nr domu) :
Zielona Góra, Dworzec PKP (studnia OPL A58 na III peronie)
1.3. Ogólny opis
przebiegu
Opis przebiegu: al. Niepodległości 25- al. Niepodległości 33 (mufa w studni OPL)ul. Bolesława
zamawianej
Chrobrego 15- ul. Bolesława Chrobrego 7 (mufa w studni OPL A48)ul. Bolesława
kanalizacji kablowej Chrobrego 3- Plac Kolejarza 1
(dot. 1.1. – 1.2.)
1.4. Sposób wykorzystania kanalizacji kablowej (dot. 1.1. – 1.2.)
kabel światłowodowy Ø [mm]
10 mm Typ kabla i producent:
kabel koncentryczny Ø [mm]
Typ kabla i producent:
2. Wykaz załączników:
Załącznik 1 - Odgałęzienia szt.
2
Załącznik 2 - Nawiązania szt.
4
Załącznik 3 - zestawienie kabli i/lub rur w kanalizacji kablowej
Załącznik 4 - wymagania OPL dotyczące zawartości Projektu Technicznego
Załącznik 5 - projekt Umowy
XOTKtsdD 48J
3. Uwagi do Zapytania:
Kabel światłowodowy 48J planuje OA ułożyć w relacji od budynku Urzędu Miasta Zielonej Góry przy al. Niepodległości 13
do Dworca PKP (studnia OPL A58 na III peronie). Planuję się następujące odgałęzienia i nawiązania:
-nawiązanie al. Niepodległości 25 (Gazeta Lubuska)
-odgałęzienie al. Niepodległości 32 (Zarząd Dróg Wojewódzkich w Zielonej Górze)
-nawiązanie: ul. Bolesława Chrobrego 15- studnia Orange A46)
-odgałęzienie ul. Bolesława Chrobrego 2 (Wojewódzka Stacja Pogotowia Ratunkowego)- poprzez studnie Orange A48
oraz A48/3/3
-nawiązanie: ul. Bolesława Chrobrego 3- studnia Orange A49 (DA-SA s.c.)
-nawiązanie: Placu Kolejarza 1- studnia OPL A54 (MEDKOL)
4. Odmowa wydania szczegółowych warunków technicznych - uzasadnienie
5. Osoba kontaktowa ze strony Realizacji Usług:
imię i nazwisko
e-mail
nr telefonu
Infolinia
[email protected]
19333
uwagi
6. Osoba wydająca szczegółowe warunki techniczne w Dostarczaniu i Serwisie Usług:
imię i nazwisko
e-mail
nr telefonu
Daniel Grochowicz
Daniel. [email protected]
68 324 00 99
uwagi
7. Osoba do współpracy w trybie roboczym (min. przy opracowaniu Projektu Technicznego)
imię i nazwisko
e-mail
nr telefonu
Daniel Grochowicz
Daniel. [email protected]
68 324 00 99
uwagi
8. Osoba upoważniona do zaakceptowania Projektu Technicznego
imię i nazwisko
e-mail
nr telefonu
Daniel Grochowicz
Daniel. [email protected]
68 324 00 99
uwagi
9. Osoba do współpracy w trybie roboczym do ustalenia szczegółów fizycznego odbioru kanalizacji
imię i nazwisko
e-mail
nr telefonu
Robert Kieniewicz
[email protected]
68 327 26 50
uwagi
10. Kontakt w sprawie dostępu do kanalizacji w celu wykonania prac doraźnych i prac planowych oraz zgłaszania uszkodzeń
kanalizacji mogących mieć wpływ na stan kabli/reklamacji technicznych
adres
e-mail
nr telefonu
uwagi
ul. Lenartowicza 22,
41-219 Sosnowiec
[email protected]
19333
fax. (22) 699 12 23
11. Osoba kontaktowa ze strony Operatora Alternatywnego / JST
imię i nazwisko
e-mail
nr telefonu
Janusz Baranowski
[email protected]
68 328 25 25
kom. 607 834 497
fax: 068 324 40 12
uwagi
12. Uwagi do wydanych szczegółowych warunków technicznych:
12.1 Wszelkie prace, jakie będą wykonywane przez Operatora lub podwykonawców działających w jego imieniu na
Kanalizacji kablowej i/lub Kanalizacji pierwotnej OPL, muszą spełniać i być zgodne z wymaganiami nw. Norm
Zakładowych OPL i być wykonywane wyłącznie pod nadzorem pracowników OPL:
• ZN-96 – 011 – Telekomunikacyjna kanalizacja kablowa – Ogólne wymagania techniczne;
• ZN-96 – 012 – Telekomunikacyjna kanalizacja kablowa – Kanalizacja pierwotna. Wymagania i badania;
• ZN-96 – 013 – Telekomunikacyjna kanalizacja kablowa – Kanalizacja wtórna i rurociągi kablowe. Wymagania i badania;
• ZN-10 – 022 – Telekomunikacyjna kanalizacja kablowa – Przywieszki identyfikacyjne. Wymagania i badania;
• ZN-96 – 023 – Telekomunikacyjna kanalizacja kablowa – Studnie kablowe. Wymagania i badania;
• oraz normami i dokumentami związanymi i wynikającymi z powyższych punktów oraz zmianami do nich.
Powyższe Normy rozpowszechnia: Orange Polska S.A. Badania i Rozwój Sieci i Platform Usługowych
Integracja Technologii i Innowacje, Strategia i Planowanie, Ewa Wojtczak
ul. Obrzeżna 7, 02-691 Warszawa
tel. +48 22 699 53 47; +48 508 367 786, Fax: +48 22 857 99 86
12.2 Projekt Techniczny, podlegający akceptacji, powinien być przekazany w ilości egzemplarzy
określonej w piśmie przewodnim załączonym do niniejszych szczegółowych warunków technicznych.
12.3 Warunkiem rozpoczęcia prac instalacyjnych jest zaakceptowanie przez OPL Projektu
Technicznego oraz podpisanie przez obie strony Umowy na dostęp do kanalizacji kablowej OPL.
oraz zgłoszenie dostępu do kanalizacji kablowej na odpowiedni adres dostępny w Załączniku Adresowym Umowy
Szczegółowej.
W trakcie wykonywania instalacji wykonawca na placu budowy powinien obowiązkowo
posiadać zaakceptowany Projekt Techniczny i numer zgłoszenia dostępu do kanalizacji.
12.4 Budowa przyłączy do budynku i nawiązania do kanalizacji OPL powinny spełniać wszystkie wymagania ustawy z dnia
7 lipca 1994 r. - Prawo budowlane (t.j. Dz. U. z 2010 r. Nr 243 poz.1623 z późn. zm.,” i zgodnie z normą ZN-96 – 012,
• na każde nawiązanie wykonywane do studni OPL, Operator zobowiązany jest do dostarczenia 1 egz. powykonawczej
inwentaryzacji geodezyjnej.
• nawiązanie do studni OPL powinno być tak wykonane, aby nie utrudniało dostępu do istniejących
kabli teletechnicznych
• Projekt Techniczny należy uzgodnić zgodnie wymaganiami prawa budowlanego.
• zaleca się, aby roboty budowlano – montażowe były wykonywane przez firmy specjalizujące się w robotach
teletechnicznych, które posiadają udokumentowane doświadczenie w wykonywaniu prac o podobnym zakresie
rzeczowym.
• przed przystąpieniem do prac budowlanych należy powiadomić pisemnie lub mailowo OPL z podaniem imiennie osoby
sprawującej funkcje techniczne na budowie
• po zakończeniu prac budowlanych należy dokonać odbioru technicznego przy udziale przedstawiciela OPL i przekazać
dokumentację powykonawczą osobie wskazanej w Protokole Odbioru Wykonanych Prac
• koszty prac związanych z nawiązaniem do studni kablowych OPL ponosi Inwestor.
• w przypadku uszkodzenia sieci teletechnicznej Inwestor zostanie obciążony kosztami awarii
oraz kosztami wynikającymi z przerwy eksploatacyjnej.
• w przypadku, gdy występują dodatkowe, niestandardowe zabezpieczenia studni kablowych przed kradzieżami,
obowiązkiem Operatora jest własnymi siłami i środkami dokonać zdjęcia w/w zabezpieczeń, a po zakończeniu
prac ich ponowne założenie.
13. Inne Uwagi
Opracowany projekt techniczny powinien uwzględniać możliwość wybudowania kabla Operatora w sposób nie ograniczający swobody
korzystania z kanalizacji. Lokalizację projektowanej w studni OPL mufy oraz stelaży należy uzgodnić z koordynatorem strefy na etapie
opracowywania projektu. W przypadku braku możliwości, mufy kablowe oraz zapasy powinny być usytuowane w studni Operatora, w
pobliżu studni OPL z nawiązaniem do kanalizacji OPL.
Otwory w ścianie studni wykonać na wysokości istniejących rur teletechnicznych nie uszkadzając konstrukcji ściany i istniejącej sieci
telekomunikacyjnej. Na projekcie technicznym należy wskazać kierunek (ścianę studni) wyprowadzenia do wykopu projektowanego kabla
lub rury HDPE. Wykonany otwór wyprawić zaprawą betonową. Kable w studniach należy tak układać na uchwytach kablowych, aby nie
krzyżowały się z istniejącymi kablami, zachować zapas technologiczny.
Na kablu założyć przywieszki identyfikacyjne, zawierające nazwę Operatora, typ kabla, dane Wykonawcy i rok budowy oraz numer WT z
Formularza 1K (w miejsce relacji). Format przywieszki powinien być zgodny z Normą Zakładową ZN-10 TP S.A. 022 „Telekomunikacyjna kanalizacja kab
W przypadku zaistnienia konieczności przebudowy kanalizacji OPL na ww. trasie, dla której zostało wydane uzgodnienie
lub zatwierdzony projekt, Dzierżawca będzie zobowiązany do wykonania przebudowy we własnym zakresie lub poniesienia
kosztów przeprojektowania i przebudowy własnej sieci.
Dokumentację projektową wykonać zgodnie z obowiązującym wzorem
DANE CHRONIONE PRZED DETALEM
Załącznik nr 1 do Formularza 1K - ODGAŁĘZIENIA*
Zapytanie nr/nr kabla:
TRRUIDS/38313/BR/2014
Zielona Góra
Sieć miejscowa:
Opis przebiegu zamawianej kanalizacji kablowej - Odgałęzienie nr**
1
Zakończenie A
Nazwa użytkownika:
Uniwersytet Zielonogórski
Adres zakończenia (kod pocztowy,
miejscowość, ulica, nr domu) :
Zielona Góra, al. Niepodległości 33
Zakończenie B
Nazwa użytkownika:
Uniwersytet Zielonogórski
Adres zakończenia (kod pocztowy,
miejscowość, ulica, nr domu) :
Zielona Góra, al. Niepodległości 32 (Zarząd Dróg Wojewódzkich w Zielonej
Górze)
UWAGI i/lub ogólny
opis przebiegu
al. Niepodległości - al. Niepodległości 32 (Zarząd Dróg Wojewódzkich w Zielonej Górze)
zamawianej
kanalizacji kablowej
j.w.
Sposób wykorzystania kanalizacji kablowej j.w.
kabel koncentryczny Ø [mm]
Typ kabla i producent:
kabel światłowodowy Ø [mm]
10 mm Typ kabla i producent:
Opis przebiegu zamawianej kanalizacji kablowej - Odgałęzienie nr**
XOTKtsdD 12J
2
Zakończenie A
Nazwa użytkownika:
Uniwersytet Zielonogórski
Adres zakończenia (kod pocztowy,
miejscowość, ulica, nr domu) :
Zielona Góra, ul. Bolesława Chrobrego (studnia OPL A48)
Zakończenie B
Nazwa użytkownika:
Uniwersytet Zielonogórski
Adres zakończenia (kod pocztowy,
miejscowość, ulica, nr domu) :
Zielona Góra, ul. Bolesława Chrobrego 2 (Wojewódzka Stacja Pogotowia
Ratunkowego)
UWAGI i/lub ogólny
opis przebiegu
Bolesława Chrobrego- Bolesława Chrobrego 2 (Wojewódzka Stacja Pogotowia
zamawianej
Ratunkowego)
kanalizacji kablowej
j.w.
Sposób wykorzystania kanalizacji kablowej j.w.
kabel koncentryczny Ø [mm]
Typ kabla i producent:
kabel światłowodowy Ø [mm]
10 mm Typ kabla i producent:
* Formularz wielokrotny
** brak ograniczenia dla liczby odgałęzień wskazanych w jednym Formularzu 1K
XOTKtsdD 12J
DANE CHRONIONE PRZED DETALEM
Załącznik nr 2 do Formularza 1K - NAWIĄZANIA/
URZĄDZENIA DODATKOWE*
Zapytanie nr/nr kabla:
Zielona Góra
Sieć miejscowa:
Planowane nawiązanie do kanalizacji kablowej nr **
Adres zakończenia (kod pocztowy,
miejscowość, ulica, nr domu) :
Opis (wprowadzenie/
Wyprowadzeie kabli do
otaczającego grutu,
budowli itp..):
Kabel światłowodowy 12J zostanie wprowadzony do budynku przy al. Niepodległości 25
(Gazeta Lubuska)
Adres zakończenia (kod pocztowy,
miejscowość, ulica, nr domu) :
Kabel światłowodowy 12J zostanie wprowadzony do budynku przy ul. Bolesława Chrobrego
15 ze studni OPL A46.
Adres zakończenia (kod pocztowy,
miejscowość, ulica, nr domu) :
3
Zielona Góra, ul. Bolesława Chrobrego 3 (DA-SA s.c.)
Kabel światłowodowy 12J zostanie wprowadzony do budynku przy ul. Bolesława Chrobrego 3
(DA-SA s.c.) ze studni OPL A50.
Planowane nawiązanie do kanalizacji kablowej nr **
Adres zakończenia (kod pocztowy,
miejscowość, ulica, nr domu) :
Opis (wprowadzenie/
Wyprowadzeie kabli do
otaczającego grutu,
budowli itp..):
2
Zielona Góra, ul. Bolesława Chrobrego 15
Planowane nawiązanie do kanalizacji kablowej nr **
Opis (wprowadzenie/
Wyprowadzeie kabli do
otaczającego grutu,
budowli itp..):
1
Zielona Góra, al. Niepodległości 25 (Gazeta Lubuska)
Planowane nawiązanie do kanalizacji kablowej nr **
Opis (wprowadzenie/
Wyprowadzeie kabli do
otaczającego grutu,
budowli itp..):
TRRUIDS/38313/BR/2014
4
Zielona Góra, Plac Kolejarza 1 (MEDKOL)
Kabel światłowodowy 12J zostanie wprowadzony do budynku przy Placu Kolejarza 1
(MEDKOL) ze studni OPL A54.
Planowane nawiązanie do kanalizacji kablowej nr **
Adres zakończenia (kod pocztowy,
miejscowość, ulica, nr domu) :
Opis (wprowadzenie/
Wyprowadzeie kabli do
otaczającego grutu,
budowli itp..):
Planowane instalacje dodatkowych urządzeń w studniach kablowych (mufy kablowe, stelaże itp.)
* Formularz wielokrotny
** brak ograniczenia dla liczby odgałęzień wskazanych w jednym Formularzu 1K
DANE CHRONIONE PRZED DETALEM
Załącznik nr 3 do Formularza 1K
TRRUIDS/38313/BR/2014
Zapytanie nr/ nr kabla:
Zielona Góra
Sieć miejscowa:
ZESTAWIENIE KABLI I/LUB RUR W KANALIZACJI KABLOWEJ
Lp.
Adres administracyjny
(budynek/ nr działki)
Oznaczenie
studni
Adres administracyjny
(budynek/ nr działki)
Oznaczenie
studni
Długość [m]
1
Al. Niepodległości 13
A24
Al. Niepodległości
A25
36,0
2
Al. Niepodległości
A25
Al. Niepodległości
A26
18,0
Suma
Wewn.
średnic
Ilość kabli
średnica rur
kabli lub
OA w
kanaliz.
rur kanaliz.
otworze
pierwotnej
wtórnej
[mm]
[mm]
1
10
100
1
10
100
Zajętość otw.
(w, cz)*
Przebieg relacji
Nawiązania
Tabela nr 1
cz
cz
3
Al. Niepodległości
A26
Al. Niepodległości
A27
80,0
1
10
100
cz
4
Al. Niepodległości
A27
Al. Niepodległości
A28
31,0
1
10
100
cz
5
Al. Niepodległości
A28
Al. Niepodległości
A29
28,0
1
10
100
cz
6
Al. Niepodległości
A29
Al. Niepodległości
A30
22,0
1
10
100
cz
7
Al. Niepodległości
A30
Al. Niepodległości
A31
19,0
1
10
100
cz
8
Al. Niepodległości
A31
Al. Niepodległości
A32
60,0
1
10
100
cz
9
Al. Niepodległości
A32
Al. Niepodległości
A33
63,0
1
10
100
cz
10
Al. Niepodległości
A33
Al. Niepodległości
A34
44,0
1
10
100
cz
11
Al. Niepodległości
A34
Al. Niepodległości
A35
50,0
1
10
100
cz
12
Al. Niepodległości
A35
Al. Niepodległości
A36
21,0
1
10
100
cz
13
Al. Niepodległości
A36
ul. Chrobrego
A37
42,0
1
10
100
cz
14
ul. Chrobrego
A37
ul. Chrobrego
A38
4,0
1
10
100
cz
15
ul. Chrobrego
A38
ul. Chrobrego
A39
18,0
1
10
100
cz
16
ul. Chrobrego
A39
ul. Chrobrego
A40
11,0
1
10
100
cz
17
ul. Chrobrego
A40
ul. Wyspiańskiego
A40a
33,0
1
10
100
cz
18
ul. Wyspiańskiego
A40a
ul. Wyspiańskiego
A41
18,0
1
10
100
cz
19
ul. Wyspiańskiego
A41
ul. Wyspiańskiego
A42
9,0
1
10
100
cz
20
ul. Wyspiańskiego
A42
ul. Wyspiańskiego
A43
19,0
1
10
100
cz
21
ul. Wyspiańskiego
A43
ul. Wyspiańskiego
A44
37,0
1
10
100
cz
22
ul. Wyspiańskiego
A44
ul. Chrobrego
A45
27,0
1
10
100
cz
23
ul. Chrobrego
A45
ul. Chrobrego
A46
25,0
1
10
100
cz
24
ul. Chrobrego
A46
ul. Chrobrego
A47
40,0
1
10
100
cz
25
ul. Chrobrego
A47
ul. Chrobrego
A48
20,0
1
10
100
cz
26
ul. Chrobrego
A48
ul. Chrobrego
A49
54,0
1
10
100
cz
27
ul. Chrobrego
A49
ul. Sulechowska
A50
30,0
1
10
100
cz
28
ul. Sulechowska
A50
ul. Sulechowska
A51
16,0
1
10
100
cz
29
ul. Sulechowska
A51
ul. Sulechowska
A52
67,0
1
10
100
cz
30
ul. Sulechowska
A52
ul. Sulechowska
A53
64,0
1
10
100
cz
31
ul. Sulechowska
A53
ul. Sulechowska
A54
10,0
1
10
100
cz
32
ul. Sulechowska
A54
ul. Sulechowska
A55
20,0
1
10
100
cz
33
ul. Sulechowska
A55
ul. Sulechowska
A56
25,0
1
10
100
cz
34
ul. Sulechowska
A56
ul. Sulechowska
A57
11,0
1
10
100
cz
35
ul. Sulechowska
A57
ul. Sulechowska
A58
14,0
1
10
100
cz
Odgałezienie I
1
Al. Niepodległości
A34
Al. Niepodległości
A34/1a
20,0
1
10
100
cz
2
Al. Niepodległości
A34/1a
Al. Niepodległości 32
A34/1a/1
18,0
1
10
100
cz
Odgałęzienie II
1
ul. Chrobrego
A48
ul. Chrobrego
A48/1
16,0
1
10
100
cz
2
ul. Chrobrego
A48/1
ul. Chrobrego
A48/2
24,0
1
10
100
cz
3
ul. Chrobrego
A48/2
ul. Kazimierza Wielkiego
A48/3
51,0
1
10
100
cz
4
ul. Kazimierza Wielkiego
A48/3
ul. Kazimierza Wielkiego
A48/3/1
8,0
1
10
100
cz
5
ul. Kazimierza Wielkiego
A48/3/1
ul. Kazimierza Wielkiego
A48/3/2
18,0
1
10
100
cz
6
ul. Kazimierza Wielkiego
A48/3/2
ul. Chrobrego 2 (Pogotowie)
A48/3/3
9,0
1
10
100
cz
A32
1,0
1
10
100
cz
ul. Chrobrego 15
A46
1,0
1
10
100
cz
ul. Chrobrego 3
A50
1,0
1
10
100
cz
ul. Sulechowska (Pl. Kolejarza)
A54
1,0
1
10
100
cz
Nawiązanie 1
1
ul. Niepodległości 25
Nawiązanie 2
1
Nawiązanie 3
1
Nawiązanie 4
1
Łączna długość udostępnionych otworów w kanalizacji teletechnicznej [m]
1254,0
Tabela nr 2
L.p.
1.
2.
3.
4.
5.
…
Średnice kabli lub rur kanalizacji wtórnej
[mm]
Zsumowane długości kabli lub rur osłonowych w ramach
każdej z sum średnic /ilość dodatkowych nawiązań
Długości
obliczeniowe
10,00
10,00
1250,00
4,00
1250,00
400,00
Zaakceptowano zestawienie
w Tabeli nr 1 i Tabeli nr 2
DATA
PODPIS
* w - wolna, cz - częściowo zajęta
08-07-2014
D.Grochowicz