Karty rejestracyjne osuwisk - Kuźnia Raciborska

Transkrypt

Karty rejestracyjne osuwisk - Kuźnia Raciborska
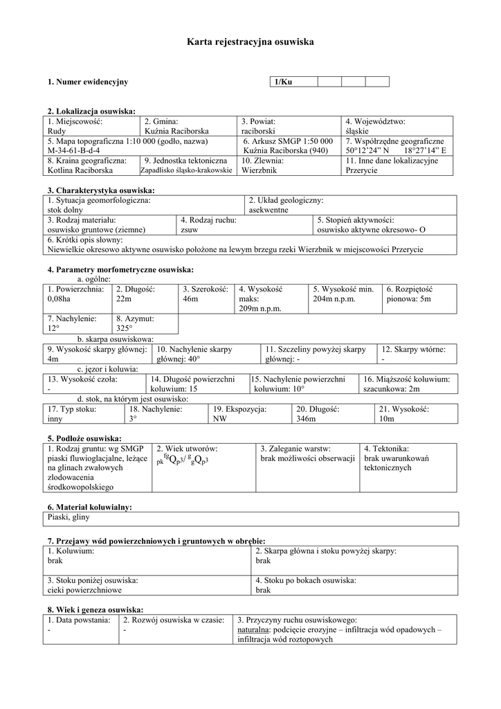
Karta rejestracyjna osuwiska
1. Numer ewidencyjny
1/Ku
2. Lokalizacja osuwiska:
1. Miejscowość:
2. Gmina:
Rudy
Kuźnia Raciborska
5. Mapa topograficzna 1:10 000 (godło, nazwa)
M-34-61-B-d-4
8. Kraina geograficzna:
9. Jednostka tektoniczna
Zapadlisko śląsko-krakowskie
Kotlina Raciborska
3. Powiat:
raciborski
6. Arkusz SMGP 1:50 000
Kuźnia Raciborska (940)
10. Zlewnia:
Wierzbnik
4. Województwo:
śląskie
7. Współrzędne geograficzne
50°12’24” N
18°27’14” E
11. Inne dane lokalizacyjne
Przerycie
3. Charakterystyka osuwiska:
1. Sytuacja geomorfologiczna:
2. Układ geologiczny:
stok dolny
asekwentne
3. Rodzaj materiału:
4. Rodzaj ruchu:
5. Stopień aktywności:
osuwisko gruntowe (ziemne)
zsuw
osuwisko aktywne okresowo- O
6. Krótki opis słowny:
Niewielkie okresowo aktywne osuwisko położone na lewym brzegu rzeki Wierzbnik w miejscowości Przerycie
4. Parametry morfometryczne osuwiska:
a. ogólne:
1. Powierzchnia: 2. Długość:
3. Szerokość:
0,08ha
22m
46m
4. Wysokość
maks:
209m n.p.m.
5. Wysokość min.
204m n.p.m.
6. Rozpiętość
pionowa: 5m
7. Nachylenie:
8. Azymut:
12°
325°
b. skarpa osuwiskowa:
9. Wysokość skarpy głównej: 10. Nachylenie skarpy
11. Szczeliny powyżej skarpy
12. Skarpy wtórne:
4m
głównej: 40°
głównej: c. jęzor i koluwia:
13. Wysokość czoła:
14. Długość powierzchni
15. Nachylenie powierzchni
16. Miąższość koluwium:
koluwium: 15
koluwium: 10°
szacunkowa: 2m
d. stok, na którym jest osuwisko:
17. Typ stoku:
18. Nachylenie:
19. Ekspozycja:
20. Długość:
21. Wysokość:
inny
3°
NW
346m
10m
5. Podłoże osuwiska:
1. Rodzaj gruntu: wg SMGP
piaski fluwioglacjalne, leżące
na glinach zwałowych
zlodowacenia
środkowopolskiego
2. Wiek utworów:
pk
Qp3/ ggQp3
fg
3. Zaleganie warstw:
brak możliwości obserwacji
4. Tektonika:
brak uwarunkowań
tektonicznych
6. Materiał koluwialny:
Piaski, gliny
7. Przejawy wód powierzchniowych i gruntowych w obrębie:
1. Koluwium:
2. Skarpa główna i stoku powyżej skarpy:
brak
brak
3. Stoku poniżej osuwiska:
cieki powierzchniowe
8. Wiek i geneza osuwiska:
1. Data powstania:
2. Rozwój osuwiska w czasie:
-
4. Stoku po bokach osuwiska:
brak
3. Przyczyny ruchu osuwiskowego:
naturalna: podcięcie erozyjne – infiltracja wód opadowych –
infiltracja wód roztopowych
9. Użytkowanie terenu w obrębie osuwiska:
a. pokrycie stoku:
1. Lasy:
2. Zarośla krzewiaste 3. Łąki i pastwiska 4. Grunty orne:
5. Sady:
X
X
b. zabudowa:
7. Mieszkalna:
8. Gospodarcza:
9. Przemysłowa/usługowa:
11. Zabytkowa/sakralna:
12. Inna:
c. infrastruktura komunikacyjna:
13. Drogi:
14. Linie kolejowe:
d. linie przesyłowe:
15. Linie energetyczne:
16. Linie telefoniczne:
17. Wodociągi:
19. Gazociągi:
20. Inne:
10. Powstałe szkody:
1. Uprawy:
-
i zagrożenia
6. Uprawy: -
2. Zabudowa:
7. Zabudowa: -
-
3. Infrastruktura komunikacyjna:
4. Linie przesyłowe:
5. Inne:
-
6. Nieużytki:
X
10. Użyteczności publicznej:
-
18. Kanalizacja:
-
8. Infrastruktura komunikacyjna:
-
9. Linie przesyłowe:
-
-
-
10. Inne: płoty posesji graniczących ze skarpą osuwiska
11. Ocena możliwości wystąpienia dalszych ruchów:
możliwe po intensywnych opadach i roztopach
11. Rodzaje i zakres wykonanych prac zabezpieczających:
Opis: TAK NIE
X
12. Prowadzenie instrumentalnych prac monitoringowych:
Opis: TAK NIE
X
13. Stan badań:
-
14. Szkic osuwiska o pow. poniżej 0,01 ha:
-
15. Przekrój geologiczny osuwiska o pow. poniżej 0,01 ha
-
16. Fotografia osuwiska:
1Ku.jpg
17. Uwagi o możliwości zabezpieczenia oraz dodatkowe informacje:
18. Autor karty
Imię i nazwisko
Sylwester Wilanowski
Rafał Sikora
Andrzej Piotrowski
19. Kategoria i numer
uprawnień geologicznych:
VIII-0133
20. Instytucja:
Państwowy Instytut
Geologiczny, Oddział
Górnośląski w Sosnowcu
21. Data wypełnienia
październik 2011 r.
Karta rejestracyjna osuwiska
1. Numer ewidencyjny
2/Ku
2. Lokalizacja osuwiska:
1. Miejscowość:
2. Gmina:
Rudy
Kuźnia Raciborska
5. Mapa topograficzna 1:10 000 (godło, nazwa)
M-34-61-B-d-4
8. Kraina geograficzna:
9. Jednostka tektoniczna
Zapadlisko śląsko-krakowskie
Kotlina Raciborska
3. Powiat:
raciborski
6. Arkusz SMGP 1:50 000
Kuźnia Raciborska (940)
10. Zlewnia:
Ruda
4. Województwo:
śląskie
7. Współrzędne geograficzne
50°11’47” N
18°26’20” E
11. Inne dane lokalizacyjne
Rudy
3. Charakterystyka osuwiska:
1. Sytuacja geomorfologiczna:
2. Układ geologiczny:
stok dolny
asekwentne
3. Rodzaj materiału:
4. Rodzaj ruchu:
5. Stopień aktywności:
osuwisko gruntowe (ziemne)
zsuw
osuwisko aktywne okresowo - O
6. Krótki opis słowny:
Nieduże okresowo aktywne osuwisko położone nad lewym dopływem Rudy
4. Parametry morfometryczne osuwiska:
a. ogólne:
1. Powierzchnia: 2. Długość:
3. Szerokość:
0,4ha
72m
62m
4. Wysokość
maks:
210m n.p.m.
5. Wysokość min.
201m n.p.m.
6. Rozpiętość
pionowa: 9m
7. Nachylenie:
8. Azymut:
6°
10°
b. skarpa osuwiskowa:
9. Wysokość skarpy głównej: 10. Nachylenie skarpy
11. Szczeliny powyżej skarpy
12. Skarpy wtórne:
3m
głównej: 20°
głównej: c. jęzor i koluwia:
13. Wysokość czoła:
14. Długość powierzchni
15. Nachylenie powierzchni
16. Miąższość koluwium:
koluwium: 60m
koluwium: 10°
szacunkowa: 3m
d. stok, na którym jest osuwisko:
17. Typ stoku:
18. Nachylenie:
19. Ekspozycja:
20. Długość:
21. Wysokość:
wypukło-wklęsły
3°
NE
541m
21m
5. Podłoże osuwiska:
1. Rodzaj gruntu: wg SMGP
piaski fluwioglacjalne, leżące
na glinach zwałowych
zlodowacenia
środkowopolskiego
2. Wiek utworów:
pk
Qp3/ ggQp3
fg
3. Zaleganie warstw:
brak możliwości obserwacji
4. Tektonika:
brak uwarunkowań
tektonicznych
6. Materiał koluwialny:
Piaski, gliny
7. Przejawy wód powierzchniowych i gruntowych w obrębie:
1. Koluwium:
2. Skarpa główna i stoku powyżej skarpy:
brak
brak
3. Stoku poniżej osuwiska:
cieki powierzchniowe
8. Wiek i geneza osuwiska:
1. Data powstania:
2. Rozwój osuwiska w czasie:
-
4. Stoku po bokach osuwiska:
brak
3. Przyczyny ruchu osuwiskowego:
naturalna: podcięcie erozyjne – infiltracja wód opadowych –
infiltracja wód roztopowych
9. Użytkowanie terenu w obrębie osuwiska:
a. pokrycie stoku:
1. Lasy:
2. Zarośla krzewiaste 3. Łąki i pastwiska 4. Grunty orne:
5. Sady:
X
X
b. zabudowa:
7. Mieszkalna:
8. Gospodarcza:
9. Przemysłowa/usługowa:
11. Zabytkowa/sakralna:
12. Inna:
c. infrastruktura komunikacyjna:
13. Drogi:
14. Linie kolejowe:
d. linie przesyłowe:
15. Linie energetyczne:
16. Linie telefoniczne:
17. Wodociągi:
19. Gazociągi:
20. Inne:
10. Powstałe szkody:
1. Uprawy:
-
i zagrożenia
6. Uprawy: -
2. Zabudowa:
7. Zabudowa: -
-
3. Infrastruktura komunikacyjna:
4. Linie przesyłowe:
5. Inne:
-
6. Nieużytki:
X
10. Użyteczności publicznej:
-
18. Kanalizacja:
-
8. Infrastruktura komunikacyjna:
-
9. Linie przesyłowe:
-
10. Inne:
-
-
-
11. Ocena możliwości wystąpienia dalszych ruchów:
możliwe po intensywnych opadach i roztopach
11. Rodzaje i zakres wykonanych prac zabezpieczających:
Opis: TAK NIE
X
12. Prowadzenie instrumentalnych prac monitoringowych:
Opis: TAK NIE
X
13. Stan badań:
-
14. Szkic osuwiska o pow. poniżej 0,01 ha:
-
15. Przekrój geologiczny osuwiska o pow. poniżej 0,01 ha
-
16. Fotografia osuwiska:
2Ku.jpg
17. Uwagi o możliwości zabezpieczenia oraz dodatkowe informacje:
18. Autor karty
Imię i nazwisko
Sylwester Wilanowski
Rafał Sikora
Andrzej Piotrowski
19. Kategoria i numer
uprawnień geologicznych:
VIII-0133
20. Instytucja:
Państwowy Instytut
Geologiczny, Oddział
Górnośląski w Sosnowcu
21. Data wypełnienia
październik 2011 r.
Karta rejestracyjna osuwiska
1. Numer ewidencyjny
3/Ku
2. Lokalizacja osuwiska:
1. Miejscowość:
2. Gmina:
Rudy
Kuźnia Raciborska
5. Mapa topograficzna 1:10 000 (godło, nazwa)
M-34-61-B-d-4
8. Kraina geograficzna:
9. Jednostka tektoniczna
Zapadlisko śląsko-krakowskie
Kotlina Raciborska
3. Powiat:
raciborski
6. Arkusz SMGP 1:50 000
Kuźnia Raciborska (940)
10. Zlewnia:
Ruda
4. Województwo:
śląskie
7. Współrzędne geograficzne
50°11’43” N
18°26’29” E
11. Inne dane lokalizacyjne
Rudy
3. Charakterystyka osuwiska:
1. Sytuacja geomorfologiczna:
2. Układ geologiczny:
Skarpa przykorytowa
asekwentne
3. Rodzaj materiału:
4. Rodzaj ruchu:
5. Stopień aktywności:
osuwisko gruntowe (ziemne)
zsuw
osuwisko aktywne okresowo - O
6. Krótki opis słowny:
Niewielkie okresowo aktywne osuwisko położone nad lewym dopływem rzeki Ruda, w pobliżu drogi nr 425
4. Parametry morfometryczne osuwiska:
a. ogólne:
1. Powierzchnia: 2. Długość:
3. Szerokość:
0,07ha
23m
32m
4. Wysokość
maks:
208m n.p.m.
5. Wysokość min.
204m n.p.m.
6. Rozpiętość
pionowa: 4m
7. Nachylenie:
8. Azymut:
10°
30°
b. skarpa osuwiskowa:
9. Wysokość skarpy głównej: 10. Nachylenie skarpy
11. Szczeliny powyżej skarpy
12. Skarpy wtórne:
2m
głównej:30 °
głównej: c. jęzor i koluwia:
13. Wysokość czoła:
14. Długość powierzchni
15. Nachylenie powierzchni
16. Miąższość koluwium:
koluwium: 18
koluwium: 8°
szacunkowa: 2m
d. stok, na którym jest osuwisko:
17. Typ stoku:
18. Nachylenie:
19. Ekspozycja:
20. Długość:
21. Wysokość:
wypukły
3°
NE
383m
15m
5. Podłoże osuwiska:
1. Rodzaj gruntu: wg SMGP
piaski fluwioglacjalne, leżące
na glinach zwałowych
zlodowacenia
środkowopolskiego
2. Wiek utworów:
pk
Qp3/ ggQp3
fg
3. Zaleganie warstw:
brak możliwości obserwacji
4. Tektonika:
brak uwarunkowań
tektonicznych
6. Materiał koluwialny:
Piaski, gliny
7. Przejawy wód powierzchniowych i gruntowych w obrębie:
1. Koluwium:
2. Skarpa główna i stoku powyżej skarpy:
podmokłości
brak
3. Stoku poniżej osuwiska:
cieki powierzchniowe
8. Wiek i geneza osuwiska:
1. Data powstania:
2. Rozwój osuwiska w czasie:
-
4. Stoku po bokach osuwiska:
brak
3. Przyczyny ruchu osuwiskowego:
naturalna: podcięcie erozyjne – infiltracja wód opadowych –
infiltracja wód roztopowych
9. Użytkowanie terenu w obrębie osuwiska:
a. pokrycie stoku:
1. Lasy:
2. Zarośla krzewiaste 3. Łąki i pastwiska 4. Grunty orne:
5. Sady:
X
X
b. zabudowa:
7. Mieszkalna:
8. Gospodarcza:
9. Przemysłowa/usługowa:
11. Zabytkowa/sakralna:
12. Inna:
c. infrastruktura komunikacyjna:
13. Drogi:
14. Linie kolejowe:
d. linie przesyłowe:
15. Linie energetyczne:
16. Linie telefoniczne:
17. Wodociągi:
19. Gazociągi:
20. Inne:
10. Powstałe szkody:
1. Uprawy:
-
i zagrożenia
6. Uprawy: -
2. Zabudowa:
7. Zabudowa: -
-
3. Infrastruktura komunikacyjna:
4. Linie przesyłowe:
5. Inne:
-
6. Nieużytki:
10. Użyteczności publicznej:
-
18. Kanalizacja:
-
8. Infrastruktura komunikacyjna:
-
9. Linie przesyłowe:
-
10. Inne:
-
-
-
11. Ocena możliwości wystąpienia dalszych ruchów:
możliwe po intensywnych opadach i roztopach
11. Rodzaje i zakres wykonanych prac zabezpieczających:
Opis: TAK NIE
X
12. Prowadzenie instrumentalnych prac monitoringowych:
Opis: TAK NIE
X
13. Stan badań:
-
14. Szkic osuwiska o pow. poniżej 0,01 ha:
-
15. Przekrój geologiczny osuwiska o pow. poniżej 0,01 ha
-
16. Fotografia osuwiska:
3Ku.jpg
17. Uwagi o możliwości zabezpieczenia oraz dodatkowe informacje:
18. Autor karty
Imię i nazwisko
Sylwester Wilanowski
Rafał Sikora
Andrzej Piotrowski
19. Kategoria i numer
uprawnień geologicznych:
VIII-0133
20. Instytucja:
Państwowy Instytut
Geologiczny, Oddział
Górnośląski w Sosnowcu
21. Data wypełnienia
październik 2011 r.
Karta rejestracyjna osuwiska
1. Numer ewidencyjny
4/Ku
2. Lokalizacja osuwiska:
1. Miejscowość:
2. Gmina:
Rudy
Kuźnia Raciborska
5. Mapa topograficzna 1:10 000 (godło, nazwa)
M-34-61-B-d-4
8. Kraina geograficzna:
9. Jednostka tektoniczna
Zapadlisko śląsko-krakowskie
Kotlina Raciborska
3. Powiat:
raciborski
6. Arkusz SMGP 1:50 000
Kuźnia Raciborska (940)
10. Zlewnia:
Ruda
4. Województwo:
śląskie
7. Współrzędne geograficzne
50°11’39” N
18°26’34” E
11. Inne dane lokalizacyjne
Rudy
3. Charakterystyka osuwiska:
1. Sytuacja geomorfologiczna:
2. Układ geologiczny:
stok dolny
asekwentne
3. Rodzaj materiału:
4. Rodzaj ruchu:
5. Stopień aktywności:
osuwisko gruntowe (ziemne)
zsuw
osuwisko aktywne okresowo - O
6. Krótki opis słowny:
Okresowo aktywne osuwisko położone w miejscowości Rudy w rejonie drogi nr 425 i ulicy Kozielskiej
4. Parametry morfometryczne osuwiska:
a. ogólne:
1. Powierzchnia: 2. Długość:
3. Szerokość:
0,8ha
56m
115m
4. Wysokość
maks:
209m n.p.m.
5. Wysokość min.
202m n.p.m.
6. Rozpiętość
pionowa: 7m
7. Nachylenie:
8. Azymut:
7°
65°
b. skarpa osuwiskowa:
9. Wysokość skarpy głównej: 10. Nachylenie skarpy
11. Szczeliny powyżej skarpy
12. Skarpy wtórne:
2m
głównej: 35°
głównej: c. jęzor i koluwia:
13. Wysokość czoła:
14. Długość powierzchni
15. Nachylenie powierzchni
16. Miąższość koluwium:
1,5m
koluwium: 52m
koluwium: 10°
szacunkowa: 3m
d. stok, na którym jest osuwisko:
17. Typ stoku:
18. Nachylenie:
19. Ekspozycja:
20. Długość:
21. Wysokość:
Wypukło-wklesły
2°
NE
588m
20m
5. Podłoże osuwiska:
1. Rodzaj gruntu: wg SMGP
piaski fluwioglacjalne, leżące
na glinach zwałowych
zlodowacenia
środkowopolskiego
2. Wiek utworów:
pk
Qp3/ ggQp3
fg
3. Zaleganie warstw:
brak możliwości obserwacji
4. Tektonika:
brak uwarunkowań
tektonicznych
6. Materiał koluwialny:
piaski, gliny
7. Przejawy wód powierzchniowych i gruntowych w obrębie:
1. Koluwium:
2. Skarpa główna i stoku powyżej skarpy:
Podmokłości, wysięki
brak
3. Stoku poniżej osuwiska:
cieki powierzchniowe
8. Wiek i geneza osuwiska:
1. Data powstania:
2. Rozwój osuwiska w czasie:
-
4. Stoku po bokach osuwiska:
brak
3. Przyczyny ruchu osuwiskowego:
naturalna: podcięcie erozyjne – infiltracja wód opadowych –
infiltracja wód roztopowych –wypływy wód na zboczu
9. Użytkowanie terenu w obrębie osuwiska:
a. pokrycie stoku:
1. Lasy:
2. Zarośla krzewiaste 3. Łąki i pastwiska 4. Grunty orne:
5. Sady:
X
X
b. zabudowa:
7. Mieszkalna:
8. Gospodarcza:
9. Przemysłowa/usługowa:
11. Zabytkowa/sakralna:
12. Inna:
c. infrastruktura komunikacyjna:
13. Drogi:
14. Linie kolejowe:
d. linie przesyłowe:
15. Linie energetyczne:
16. Linie telefoniczne:
17. Wodociągi:
19. Gazociągi:
20. Inne:
10. Powstałe szkody:
1. Uprawy:
-
i zagrożenia
6. Uprawy: -
2. Zabudowa:
7. Zabudowa: -
-
3. Infrastruktura komunikacyjna:
4. Linie przesyłowe:
5. Inne:
-
6. Nieużytki:
X
10. Użyteczności publicznej:
-
18. Kanalizacja:
-
8. Infrastruktura komunikacyjna:
-
9. Linie przesyłowe:
-
10. Inne:
-
-
-
11. Ocena możliwości wystąpienia dalszych ruchów:
możliwe po intensywnych opadach i roztopach
11. Rodzaje i zakres wykonanych prac zabezpieczających:
Opis: TAK NIE
X
12. Prowadzenie instrumentalnych prac monitoringowych:
Opis: TAK NIE
X
13. Stan badań:
-
14. Szkic osuwiska o pow. poniżej 0,01 ha:
-
15. Przekrój geologiczny osuwiska o pow. poniżej 0,01 ha
-
16. Fotografia osuwiska:
4Ku.jpg
17. Uwagi o możliwości zabezpieczenia oraz dodatkowe informacje:
18. Autor karty
Imię i nazwisko
Sylwester Wilanowski
Rafał Sikora
Andrzej Piotrowski
19. Kategoria i numer
uprawnień geologicznych:
VIII-0133
20. Instytucja:
Państwowy Instytut
Geologiczny, Oddział
Górnośląski w Sosnowcu
21. Data wypełnienia
październik 2011 r.