Kulesze docieplenie piwnica

Transkrypt

Kulesze docieplenie piwnica
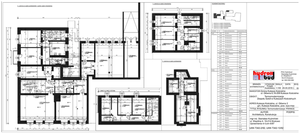
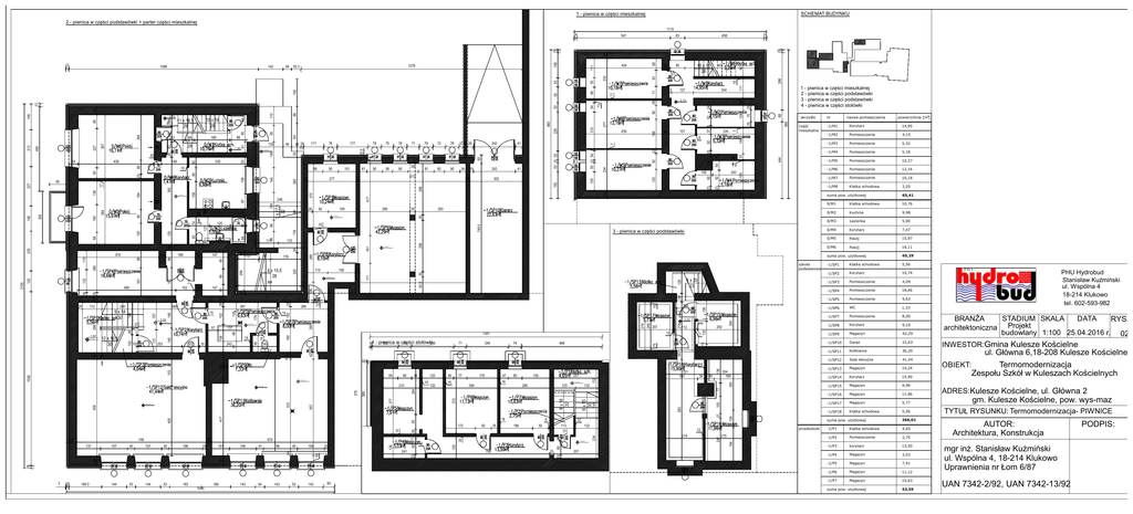
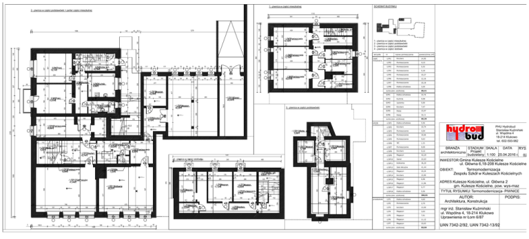
SCHEMAT BUDYNKU
1 - piwnica w części mieszkalnej
2 - piwnica w części podstawówki + parter części mieszkalnej
1110
14
541
83
14
458
14
1
10 x 16
26
85
144
53
183
168
1549
111
14
286
93
43
124
68
25
24
29
37 8
7
92
149
50
23
128
49
106
265
250
133
279
13
15
279
249
13
7
54
15
466
74
13
112
10
176
77
47
80
159
25
257
16
-----
299
286
125
136
39
100
54
53
143
65
25
113
132
14,95
Pomieszczenie
4,15
-1/M3
Pomieszczenie
5,32
-1/M4
Pomieszczenie
5,18
-1/M5
Pomieszczenie
10,27
-1/M6
Pomieszczenie
12,16
-1/M7
Pomieszczenie
10,18
-1/M8
Klatka schodowa
3,20
suma pow. użytkowej
65,41
0/M1
Klatka schodowa
10,76
0/M2
Kuchnia
9,98
0/M3
Łazienka
5,00
0/M4
Korytarz
7,47
0/M5
Pokój
15,97
0/M6
Pokój
16,11
65,29
-1/SP1
Klatka schodowa
5,56
-1/SP2
Korytarz
10,74
-1/SP3
Pomieszczenie
4,04
-1/SP4
Pomieszczenie
18,66
-1/SP5
Pomieszczenie
9,63
-1/SP6
WC
1,33
-1/SP7
Pomieszczenie
8,00
-1/SP8
Korytarz
9,10
-1/SP9
Magazyn
42,29
-1/SP10
Garaż
22,63
-1/SP11
Kotłownia
36,20
-1/SP12
Sala lekcyjna
41,44
-1/SP13
Magazyn
10,24
-1/SP14
Korytarz
15,90
-1/SP15
Magazyn
6,96
-1/SP16
Magazyn
11,96
-1/SP17
Magazyn
5,77
gm. Kulesze Kościelne, pow. wys-maz
-1/SP18
Klatka schodowa
5,56
TYTUŁ RYSUNKU: Termomodernizacja- PIWNICE
25
257
20
708
234
25
-----
80
20
125
12
214
suma pow. użytkowej
przedszkole
12
215
194
92
247
188
12
35
12
28
11
143
241
23
59
20
92
156
92
6
100
27
583
149
6 x 15
30
8 x 18
32
372
369
40
204
164
132
264
16
85
143
Korytarz
77
120
46
15
221
182
293
120
15
132
46
377
40
126
156
-1/M1
-1/M2
7
54
40
33
20
94
92
444
168
22
70
71
29
11
277
7
49
245
71
42
80
15
53
232
55
93.5
285
41
59
144
207
13
557
533
156
powierzchnia [m²]
16
210
379
189.5
210
749.5
30
171
106
12
23
9 33
140
24
14
8 x 20
23
100
102
176
14
95
61
w części
stołówki
104 - piwnica
153
248
74
417
101
nazwa pomieszczenia
30
298
161
27
670
56
3
3 - piwnica w części podstawówki
182
153
19
243
289
158
160
158
140
131
558
405
196
część
mieszkalna
nr
suma pow. użytkowej
89
28
243
41
1006
40
100
1341
14
35
157
302
skrzydło
szkoła
podstawowa
172
40
41
3
1 - piwnica w części mieszkalnej
2 - piwnica w części podstawówki
3 - piwnica w części podstawówki
4 - piwnica w części stołówki
293
25
-----
84
746
8
- 2.20
-----
60
242
155
30
-----
157
19
335
92
34
25
-----
137
66
92
90
151
92
60
42
12
137
35
13
80
91
176
220
206
25 40
135
14
280
-----
102
- 3.13
120
59
90
14
397
102
15
354
234
58
290
-----
364
- 3.22
-----
253
41
298
370
159
115
14
65
147
57
10
242
55 13 54 7
2718 39
105
78
613
29
176
4 x 15,5
28
14
41
54
860
226
72
53 15 52
90
41
23
92
66
94
67
121
127
132
111
95
90
161
9
148
157
148
10
14
14
360
102
101
277
26
64
159
3 x 17,5
32
87
47
17
20
147
40 18
18
79
71
-----
38
41
102
288
12 x 16,5
30
78
11
80
64
83
120
137
96
13
417
382
158
120
99
99
161
132
120
- 1.97
-----
70
50
35
283
144
158
23
164
74
119
280
110
168
240
9 x 14
30
90
25
246
80
120
68
230
42
569
112
78
177
80
86
-----
470
25
78
117
53
17
136
364
160
300
146
98
110
53
60
335
55 14
14
2105
49
10
95
227
139
-----
35.5
- 1.36
149
60
98
28
149
80
439
60
189
439
161
84
4 x 14
28
95
95
92
264
367
227
213
490
123
42
54
10 x 16
26
11 x 16,5
29
62
80
66
- 0.79
95.5
61
149
48
52
17
92
159
53
6
2
403
860
42
92
439
169
1279
55.3
23
49
142
68
1096
111
17
148
36
14
4
266,01
-1/P1
Klatka schodowa
4,65
-1/P2
Pomieszczenie
2,75
-1/P3
korytarz
13,50
-1/P4
Magazyn
3,03
-1/P5
Magazyn
7,91
-1/P6
Magazyn
11,12
-1/P7
Magazyn
10,63
suma pow. użytkowej
53,59
PHU Hydrobud
Stanisław Kuźmiński
ul. Wspólna 4
18-214 Klukowo
tel. 602-593-982
BRANŻA
STADIUM SKALA
DATA
RYS.N
Projekt
architektoniczna
budowlany 1:100 25.04.2016 r. 02
INWESTOR:Gmina Kulesze Kościelne
ul. Główna 6,18-208 Kulesze Kościelne
OBIEKT:
Termomodernizacja
Zespołu Szkół w Kuleszach Kościelnych
ADRES:Kulesze Kościelne, ul. Główna 2
AUTOR:
Architektura, Konstrukcja
mgr inż. Stanisław Kuźmiński
ul. Wspólna 4, 18-214 Klukowo
Uprawnienia nr Łom 6/87
UAN 7342-2/92, UAN 7342-13/92
PODPIS: