z RE1 - YDYżo 3x2,5mm2 230V podnośnik pionowy zewn. h= 0,4m

Transkrypt

z RE1 - YDYżo 3x2,5mm2 230V podnośnik pionowy zewn. h= 0,4m
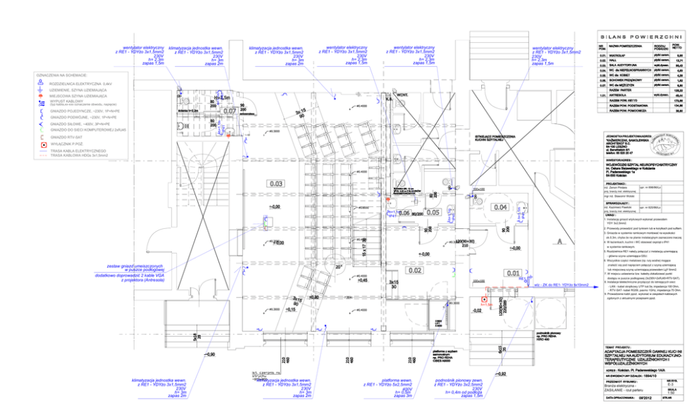
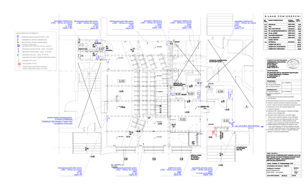
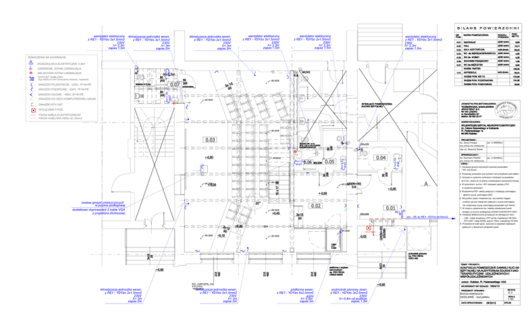
wentylator elektryczny
z RE1 - YDY o 3x1,5mm2
230V
h= 2,3m
zapas 1,5m
klimatyzacja jednostka wewn.
z RE1 - YDY o 3x1,5mm2
230V
h= 3m
zapas 2m
klimatyzacja jednostka wewn.
z RE1 - YDY o 3x1,5mm2
230V
h= 3m
zapas 2m
wentylator elektryczny
z RE1 - YDY o 3x1,5mm2
230V
h= 2,3m
zapas 1,5m
wentylator elektryczny
z RE1 - YDY o 3x1,5mm2
230V
h= 2,3m
zapas 1,5m
wentylator elektryczny
z RE1 - YDY o 3x1,5mm2
230V
h= 2,3m
zapas 1,5m
OZNACZENIA NA SCHEMACIE:
ROZDZIELNICA ELEKTRYCZNA 0,4kV
MIEJSCOWA SZYNA UZIEMIAJ CA
WYPUST KABLOWY
(typ kabla,xx-xxx oznaczenie obwodu, napi cie)
2
h=1,1m
IP41
2
UZIEMIENIE, SZYNA UZIEMIAJ CA
2
GNIAZDO POJEDYNCZE, ~230V, 1P+N+PE
h=1,1m
IP41
GNIAZDO PODWÓJNE, ~230V, 1P+N+PE
GNIAZDO SI OWE, ~400V, 3P+N+PE
GNIAZDO DO SIECI KOMPUTEROWEJ 2xRJ45
GNIAZDO RTV-SAT
WY
CZNIK P.PO .
TRASA KABLA ELEKTRYCZNEGO
TRASA KABLOWA HDGs 3x1,5mm2
in . Zenon Pindara
upr. nr 898/86/Lo
proj. bran y inst. elektrycznej
2
mgr in . S awomir Wolski
in . Kazimierz Pawlicki
h=1,1m
IP41
h=1,1m
IP41
3
h=1,1m
IP41
upr. nr 820/86/Lo
proj. bran y inst. elektrycznej
1. Instalacj gniazd wtykowych wykona przewodem
YDY 3x2,5mm2.
2. Przewody prowadzi pod tynkiem lub w korytkach pod sufitem.
3. Gniazda w systemie ramkowym montowa na wysoko ci
ok.0,3m, chyba e na planie instalacyjnym zaznaczono inaczej.
4. W azienkach, kuchni i WC stosowa osprz t o IP41
w systemie ramkowym.
5. Rozdzielnice RE1 nale y po czy z instalacj uziemiaj
- g ówna szyna uziemiaj ca GSU.
6. Wszystkie cz
znale
zestaw gniazd umeiszczonych
w puszce pod ogowej
dodatkowo doprowadzi 2 kable VGA
z projektora (Antresola)
ci metalowe (np. rury wodne) mog ce
si pod napi ciem po czy z szyn uziemiajac
lub miejscow szyn uziemiaj
przewodem LgY 6mm2.
7. W miejscu ustawienia tzw. katedry zlokalizowa punkt
dost pu w puszce pod ogowej (3x230V+2xRJ45+RTV-SAT).
8. Instalacje teletechniczne przy czy do istniej cych sieci:
RE1
wlz - ZK do RE1- YDY o 5x10mm2
- LAN - kabel skr tkowy UTP kat.5e, impedancja 100 Ohm,
- RTV-SAT- kabel RG59, pasmo 1GHz, impedancja 75 Ohm.
9. Prowadzenie kabli ppo . wykona w zespo ach kablowych
zgdonych z aktualnymi przepisami ppo .
h=1,5m
klimatyzacja jednostka wewn.
z RE1 - YDY o 3x1,5mm2
230V
h= 3m
zapas 2m
klimatyzacja jednostka wewn.
z RE1 - YDY o 3x1,5mm2
230V
h= 3m
zapas 2m
platforma wewn.
z RE1 - YDY o 5x2,5mm2
400V
h= 0,5m
zapas 3m
podno nik pionowy zewn.
z RE1 - YDY o 3x2,5mm2
230V
h= 0,4m od pod a
zapas 1,5m
Bran a elektryczna ZASILANIE - rzut parteru
E-3
1:50