390 290 120 3° 156 600 60 60 130

Transkrypt

390 290 120 3° 156 600 60 60 130
60
60
130
3°
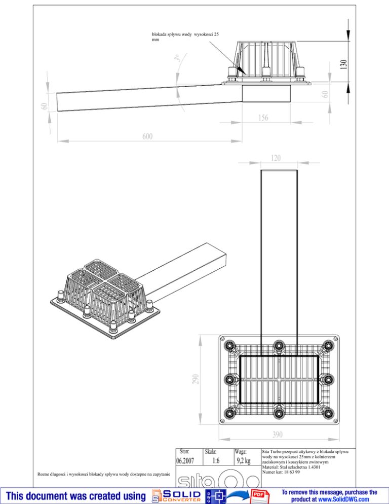
blokada splywu wody wysokosci 25
mm
156
600
290
120
390
Stan:
06.2007
Rozne dlugosci i wysokosci blokady splywu wody dostepne na zapytanie
Skala:
1:6
Waga:
9,2 kg
Sita Turbo przepust attykowy z blokada splywu
wody na wysokosci 25mm z kolnierzem
zaciskowym i koszykiem zwirowym
Material: Stal szlachetna 1.4301
Numer kat: 18 63 99