Typy reklam - słupy oświetleniowe

Transkrypt

Typy reklam - słupy oświetleniowe
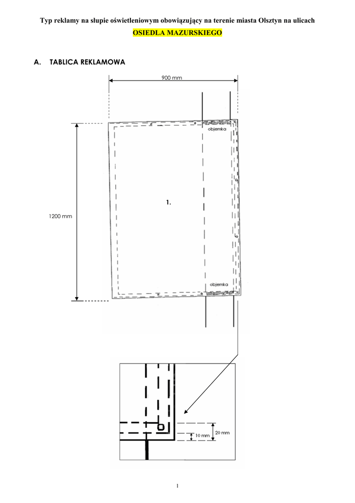
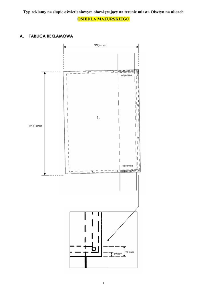
Typ reklamy na słupie oświetleniowym obowiązujący na terenie miasta Olsztyn na ulicach
OSIEDLA MAZURSKIEGO
A.
TABLICA REKLAMOWA
900 mm
1200 mm
1
B.
RZUT POZIOMY REKLAMY
900 mm
OPIS:
1.
2.
3.
4.
5.
C.
blacha aluminiowa
rurki stalowe walcowane
kątownik
jarzmo dwuczęściowe
rurka stalowa walcowana
900 x 1200 mm
Ø 20 mm
30 x 20 x 5 mm
20 x 4 mm
Ø 40 mm
MOCOWANIE
OPIS:
1. jarzmo dwuczęściowe pł. 20 mm x 6 st3s
2. ceownik spawany z kwadratów 40 x 40 mm ze stali 1H18N9T ≠ 2,5 mm
3. śruba Ø 10 x 120 mm
4. podkładka spręŜynowa Ø 10 mm
5. nakrętka M-10
6. śruba Ø 10 x 25 mm
7. podkładka spręŜynowa Ø 10 mm
8. nakrętka M-10
2
OBLICZENIE POWIERZCHNI REKLAMY
PR – powierzchnia całkowita reklamy, na którą składa się powierzchnia tablic reklamowych
( PR = PT )
PT – powierzchnia tablic reklamowych w kształcie prostokątów o wymiarach 0,90 m x 1,20 m
PT = 2 x (0,90 m x 1,20 m) = 2 x 1,08 m2 = 2,16 m²
PK – powierzchnia konstrukcji reklamy
Reklama nie posiada konstrukcji znajdującej się w polu widzenia uŜytkowników drogi.
POWIERZCHNIA CAŁKOWITA REKLAMY [ PR ]:
PR = 2,16 m²
3
Typ reklamy na słupie oświetleniowym obowiązujący na terenie miasta Olsztyn na ulicy:
22-GO STYCZNIA
B.
TABLICA REKLAMOWA
miejsce spawania
słup
jarzmo
1400 mm
1000 mm
70 mm
C.
MOCOWANIE
50 mm
3,4
∅ 50 mm
Szerokość = 6
OPIS:
Tablica przykręcona śrubami o średnicy 10 do jarzma wykonanego z płaskownika 20 x 6 mm.
4
OBLICZENIE POWIERZCHNI REKLAMY
PR – powierzchnia całkowita reklamy, na którą składa się powierzchnia tablicy reklamowej
( PR = PT )
PT – powierzchnia tablicy reklamowej w kształcie prostokąta o wymiarach 1,00 m x 1,40 m
PT = 1,00 m x 1,40 m = 1,40 m²
PK – powierzchnia konstrukcji reklamy
Reklama nie posiada konstrukcji znajdującej się w polu widzenia uŜytkowników drogi.
POWIERZCHNIA CAŁKOWITA REKLAMY [ PR ]:
PR = 1,40 m²
5
Typ reklamy na słupie oświetleniowym obowiązujący na terenie miasta Olsztyn na ulicach:
ARMII KRAJOWEJ, SIELSKA, ŚLIWY, OBROŃCÓW TOBRUKU
– słupy usytuowane w pasach dzielących jezdnie –
2000 mm
1000
1000 mm
60 mm
1880 mm
600 mm
60 mm
średnica słupa oświetleniowego: 300 mm
OPIS:
Łuk kształtowany jest przez ramę wewnętrzną, której fragment stanowi obejmę skręcaną
śrubami M-8 – 5,8 kg/mm2.
Materiały: kształtownik stalowy, płaskownik stalowy 40 x 5 (stal St0s), poszycie – blacha
aluminiowa malowana na kolor.
6
OBLICZENIE POWIERZCHNI REKLAMY
PR – powierzchnia całkowita reklamy, na którą składa się powierzchnia tablic reklamowych
i powierzchnia konstrukcji reklamy ( PR = PT + PK )
PT – powierzchnia tablic reklamowych w kształcie prostokątów o wymiarach 1,94 m x 1,00 m, przy
czym wymiar poziomy to: 2,00 m – 0,06 m = 1,94 m
PT = 2 szt. x (1,94 m x 1,00 m) = 2 x 1,94 m2 = 3,88 m²
PK – powierzchnia konstrukcji reklamy
Reklama nie posiada konstrukcji znajdującej się w polu widzenia uŜytkowników drogi.
POWIERZCHNIA CAŁKOWITA REKLAMY [ PR ]:
PR = 3,88 m²
7
Typ reklamy na słupie oświetleniowym obowiązujący na terenie miasta Olsztyn na ulicach:
BAŁTYCKA, GRUNWALDZKA, ARTYLERYJSKA, LEŚNA, GIETKOWSKA,
JAGIELLOŃCZYKA, KORTOWO
900 mm
1100 mm
rzut poziomy
reklamy
widok reklamy
z boku
8
OBLICZENIE POWIERZCHNI REKLAMY
PR – powierzchnia całkowita reklamy, na którą składa się powierzchnia tablic reklamowych
( PR = PT )
PT – powierzchnia dwóch tablic reklamowych w kształcie prostokątów o wymiarach
0,90 m x 1,10 m
PT = 2 szt. x (0,90 m x 1,10 m) = 2 x 0,99 m2 = 1,98 m²
PK – powierzchnia konstrukcji reklamy
Reklama nie posiada konstrukcji znajdującej się w polu widzenia uŜytkowników drogi.
POWIERZCHNIA CAŁKOWITA REKLAMY [ PR ]:
PR = 1,98 m²
9
Typ reklamy na słupie oświetleniowym obowiązujący na terenie miasta Olsztyn na ulicach:
WOJSKA POLSKIEGO, SYBIRAKÓW, LIMANOWSKIEGO
A. TABLICA REKLAMOWA
1100 mm
uchwyty z
płaskowników
750 mm
900 mm
500 mm
B. RZUT POZIOMY REKLAMY
C. WIDOK REKLAMY Z BOKU
200 mm
500 mm
200 mm
100 mm
OBLICZENIE POWIERZCHNI REKLAMY
10
PR – powierzchnia całkowita reklamy, na którą składa się powierzchnia tablic reklamowych
( PR = PT)
PT – powierzchnia dwóch tablic reklamowych w kształcie prostokątów o wymiarach
1,10 m x 0,50 m, dwóch ścianek bocznych w kształcie prostokątów o wymiarach
0,10 m x 0,50 m oraz dwóch tablic reklamowych w kształcie odcinków koła
1) Wyliczenie powierzchni dwóch tablic w kształcie odcinków koła (2F):
c
c/2
Dane:
a = 50 cm
b = 110 cm
c = 75 cm
R = 90 cm
h = 20 cm
a
R
h
b
F = Πr2 α/360º - (c : 2) x (r - h)
r = R : 2 = 90 cm : 2 = 45 cm
sin (α/2) = (c : 2) : r = (75 cm : 2) : 45 cm = 37,5 cm : 45 cm ≈ 0,8333 cm
α/2 = 56º ⇒ α = 112º
F = 3,14 x (45 cm)2 x (112º : 360º) – [(37,5 cm) x (45 cm – 20 cm)] = 1978,1(9) cm2 –
937,50 cm2 = 1040,70 cm2
2F = 2 x 1040,70 cm2 = 2081,40 cm2 = 0,20814 m2
PT = 2 szt. x (1,10 m x 0,50 m) + 2 szt. x (0,10 m x 0,50 m) + 0,20814 m2 = 2 x 0,55 m2 +
2 x 0,05 m2 + 0,20814 m2 = 1,10 m2 + 0,10 m2 + 0,20814 m2 = 1,40814 m2 ≈ 1,41 m²
PK – powierzchnia konstrukcji reklamy
Reklama nie posiada konstrukcji znajdującej się w polu widzenia uŜytkowników drogi.
POWIERZCHNIA CAŁKOWITA REKLAMY [ PR ]:
PR = 1,41 m²
11
Typ reklamy na słupie oświetleniowym obowiązujący na terenie miasta Olsztyn na ulicach:
KOŁOBRZESKA, DWORCOWA, DABROWSZCZAKÓW, MRONGOWIUSZA,
WARMIŃSKA, KOPERNIKA, MAZURSKA
800 mm
1100 mm
110 mm
1060 mm
OPIS:
12
6.
7.
8.
9.
blacha ocynkowana
kula
stoŜek ścięty
rura czarna
1100 x 800 mm ≠ 1,5
Ø 70 mm
Ø 50 x Ø 10 mm
Ø 50 mm
10 mm
B
50 mm
40 mm
A
OPIS:
1. nit zrywny
2. ucho
3. pręt
Ø 5 x 10 mm
10 x 10 mm st3s
Ø 8 mm st3s
13
OBLICZENIE POWIERZCHNI REKLAMY
PR – powierzchnia całkowita reklamy równa się powierzchni tablicy reklamowej
i powierzchni konstrukcji ( PR = PT + PK )
PT – powierzchnia tablicy reklamowej w kształcie prostokąta o wymiarach 1,10 m x 0,80 m
PT = 1,10 m x 0,80 m = 0,88 m²
PK – powierzchnia konstrukcji równa się sumie powierzchni 2 szt. kul [PK1], 2 szt. stoŜków
ściętych [PK2] i powierzchni obramowania [PK3]
a) PK1 – powierzchnia kuli o średnicy D1 = 70 mm = 0,07 m
Powierzchnia kuli: P = 4Πr², gdzie Π = 3,14, r = D1 : 2 = 0,07 m : 2 = 0,035 m
PK1 = 2 szt. x [4 x 3,14 x (0,035 m)²] = 2 x (4 x 3,14 x 0,001225 m2) = 2 x 0,015386 m² =
0,030772 m²
b)
PK2 – powierzchnia 2 szt. stoŜków ściętych liczona jako powierzchnie trapezów
[P = (a + b) : 2 x h], przy czym obwody podstaw stoŜków o przekroju koła stanowią
długości podstaw trapezów
•
długość podstawy dolnej trapezu [a] jest równa obwodowi koła o średnicy
D2 = 50 mm = 0,05 m (Ob = ΠD2, gdzie Π = 3,14, D2 = 0,05 m), który wynosi:
Ob = 3,14 x 0,05 m = 0,157 m
•
długość podstawy górnej trapezu [b] jest równa obwodowi koła o średnicy
D3 = 10 mm = 0,01 m (Ob = ΠD3, gdzie Π = 3,14, D3 = 0,01 m), który wynosi:
Ob = 3,14 x 0,01 m = 0,0314 m
• wysokość stoŜka [h] stanowi wysokość trapezu i wynosi h = 110 mm = 0,11 m
PK2 = 2 szt. x {[(0,157 m + 0,0314 m) : 2] x 0,11 m} = 2 x [(0,1884 m : 2) x 0,11 m]
= 2 x (0,0942 m x 0,11 m) = 2 x 0,010362 m² = 0,020724 m²
c) PK3 – powierzchnia obramowania liczona jako pole prostokąta, którego jeden bok stanowi
długość ramy (1,10 m + 0,80 m = 1,90 m), a drugi jej obwód (Ob = ΠD4, gdzie
Π = 3,14, D4 = 0,05 m), który wynosi: Ob = 3,14 x 0,05 m = 0,157 m
PK3 = 1,90 m x 0,157 m = 0,2983 m²
PK – powierzchnia całkowita konstrukcji wynosi: PK1 + PK2 + PK3
PK = 0,030772 m² + 0,020724 m² + 0,2983 m² = 0,349796 m2 ≈ 0,35 m²
14
POWIERZCHNIA CAŁKOWITA REKLAMY [ PR ]:
PR = 0,88 m² + 0,35 m² = 1,23 m²
Typ reklamy na słupie oświetleniowym obowiązujący na terenie miasta Olsztyn na ulicy
KOŚCIUSZKI
Na ulicy Kościuszki obowiązują dwa typy reklam mocowanych na słupach oświetleniowych:
typ I obowiązuje na odcinku od pl. Konstytucji 3-go Maja do al. Piłsudskiego, natomiast typ II obowiązuje na odcinku
od al. Piłsudskiego do al. Niepodległości.
I. Typ reklamy obowiązujący na odcinku od pl. Konstytucji 3-go Maja do al. Piłsudskiego.
800 mm
1100 mm
110 mm
15
1060 mm
OPIS:
10. blacha ocynkowana
11. kula
12. stoŜek ścięty
13. rura czarna
1100 x 800 mm ≠ 1,5
Ø 70 mm
Ø 50 x Ø 10 mm
Ø 50 mm
10 mm
B
50 mm
40 mm
A
OPIS:
4. nit zrywny
5. ucho
6. pręt
Ø 5 x 10 mm
10 x 10 mm st3s
Ø 8 mm st3s
16
OBLICZENIE POWIERZCHNI REKLAMY
– typ I –
PR – powierzchnia całkowita reklamy równa się powierzchni tablicy reklamowej
i powierzchni konstrukcji ( PR = PT + PK )
PT – powierzchnia tablicy reklamowej w kształcie prostokąta o wymiarach 1,10 m x 0,80 m
PT = 1,10 m x 0,80 m = 0,88 m²
PK – powierzchnia konstrukcji równa się sumie powierzchni 2 szt. kul [PK1], 2 szt. stoŜków
ściętych [PK2] i powierzchni obramowania [PK3]
c) PK1 – powierzchnia kuli o średnicy D1 = 70 mm = 0,07 m
Powierzchnia kuli: P = 4Πr², gdzie Π = 3,14, r = D1 : 2 = 0,07 m : 2 = 0,035 m
PK1 = 2 szt. x [4 x 3,14 x (0,035 m)²] = 2 x (4 x 3,14 x 0,001225 m2) = 2 x 0,015386 m² =
0,030772 m²
d)
PK2 – powierzchnia 2 szt. stoŜków ściętych liczona jako powierzchnie trapezów
[P = (a + b) : 2 x h], przy czym obwody podstaw stoŜków o przekroju koła stanowią
długości podstaw trapezów
•
długość podstawy dolnej trapezu [a] jest równa obwodowi koła o średnicy
D2 = 50 mm = 0,05 m (Ob = ΠD2, gdzie Π = 3,14, D2 = 0,05 m), który wynosi:
Ob = 3,14 x 0,05 m = 0,157 m
•
długość podstawy górnej trapezu [b] jest równa obwodowi koła o średnicy
D3 = 10 mm = 0,01 m (Ob = ΠD3, gdzie Π = 3,14, D3 = 0,01 m), który wynosi:
Ob = 3,14 x 0,01 m = 0,0314 m
• wysokość stoŜka [h] stanowi wysokość trapezu i wynosi h = 110 mm = 0,11 m
PK2 = 2 szt. x {[(0,157 m + 0,0314 m) : 2] x 0,11 m} = 2 x [(0,1884 m : 2) x 0,11 m]
= 2 x (0,0942 m x 0,11 m) = 2 x 0,010362 m² = 0,020724 m²
c) PK3 – powierzchnia obramowania liczona jako pole prostokąta, którego jeden bok stanowi
długość ramy (1,10 m + 0,80 m = 1,90 m), a drugi jej obwód (Ob = ΠD4, gdzie
Π = 3,14, D4 = 0,05 m), który wynosi: Ob = 3,14 x 0,05 m = 0,157 m
PK3 = 1,90 m x 0,157 m = 0,2983 m²
PK – powierzchnia całkowita konstrukcji wynosi: PK1 + PK2 + PK3
PK = 0,030772 m² + 0,020724 m² + 0,2983 m² = 0,349796 m2 ≈ 0,35 m²
POWIERZCHNIA CAŁKOWITA REKLAMY [ PR ]:
17
PR = 0,88 m² + 0,35 m² = 1,23 m²
II. Typ reklamy obowiązujący na odcinku od al. Piłsudskiego do al. Niepodległości.
C.
TABLICA REKLAMOWA
miejsce spawania
słup
jarzmo
1400 mm
1000 mm
70 mm
C.
MOCOWANIE
18
50 mm
3,4
∅ 50 mm
Szerokość = 6
OPIS:
Tablica przykręcona śrubami o średnicy 10 do jarzma wykonanego z płaskownika 20 x 6 mm.
OBLICZENIE POWIERZCHNI REKLAMY
– typ II –
PR – powierzchnia całkowita reklamy, na którą składa się powierzchnia tablicy reklamowej
( PR = PT )
PT – powierzchnia tablicy reklamowej w kształcie prostokąta o wymiarach 1,00 m x 1,40 m
PT = 1,00 m x 1,40 m = 1,40 m²
PK – powierzchnia konstrukcji reklamy
Reklama nie posiada konstrukcji znajdującej się w polu widzenia uŜytkowników drogi.
POWIERZCHNIA CAŁKOWITA REKLAMY [ PR ]:
PR = 1,40 m²
19
II. Typ reklamy mocowanej na słupach oświetleniowych usytuowanych po bokach jezdni.
D.
TABLICA REKLAMOWA
miejsce spawania
słup
jarzmo
1400 mm
1000 mm
70 mm
C.
MOCOWANIE
20
50 mm
3,4
∅ 50 mm
Szerokość = 6
OPIS:
Tablica przykręcona śrubami o średnicy 10 do jarzma wykonanego z płaskownika 20 x 6 mm.
OBLICZENIE POWIERZCHNI REKLAMY
– typ II –
PR – powierzchnia całkowita reklamy, na którą składa się powierzchnia tablicy reklamowej
( PR = PT )
PT – powierzchnia tablicy reklamowej w kształcie prostokąta o wymiarach 1,00 m x 1,40 m
PT = 1,00 m x 1,40 m = 1,40 m²
PK – powierzchnia konstrukcji reklamy
Reklama nie posiada konstrukcji znajdującej się w polu widzenia uŜytkowników drogi.
POWIERZCHNIA CAŁKOWITA REKLAMY [ PR ]:
PR = 1,40 m²
21
Typ reklamy na słupie oświetleniowym obowiązujący na terenie miasta Olsztyn na ulicy
KRASICKIEGO
1800 mm
100 mm
900 mm
100 mm
płaskownik
50 x 5
22
OBLICZENIE POWIERZCHNI REKLAMY
PR – powierzchnia całkowita reklamy, na którą składa się powierzchnia tablic reklamowych
(PR = PT)
PT – powierzchnia dwóch tablic reklamowych w kształcie prostokątów o wymiarach
1,80 m x 1,10 m
PT = 2 x (1,80 m x 1,10 m) = 2 x 1,98 m2 = 3,96 m²
PK – powierzchnia konstrukcji reklamy
Reklama nie posiada konstrukcji znajdującej się w polu widzenia uŜytkowników
drogi.
POWIERZCHNIA CAŁKOWITA REKLAMY [ PR ]:
PR = 3,96 m²
23
Typ reklamy na słupie oświetleniowym obowiązujący na terenie miasta Olsztyn na ulicach:
LUBELSKA, BUDOWLANA, TOWAROWA, KĘTRZYŃSKIEGO
1700 mm
1000
1700 mm
300 mm
280 mm
OPIS:
Konstrukcja stalowa z profili zamkniętych 25 x 25 x 2 mm;
Poszycie – blacha aluminiowa;
Wymiary reklamy: 1700 mm x 1000 mm x 280 mm.
24
1000 mm
OBLICZENIE POWIERZCHNI REKLAMY
PR – powierzchnia całkowita reklamy, na którą składa się powierzchnia tablic reklamowych
( PR = PT )
PT – powierzchnia dwóch tablic reklamowych w kształcie prostokątów o wymiarach
1,70 m x 1,00 m oraz dwóch ścianek bocznych
w kształcie prostokątów o wymiarach
0,28 m x 1,00 m
PT = 2 szt. x (1,70 m x 1,00 m) + 2 szt. x (0,28 m x 1,00 m) = 2 x 1,70 m2 +
2 x 0,28 m2 = 3,40 m2 +0,56 m2 = 3,96 m²
PK – powierzchnia konstrukcji reklamy
Reklama nie posiada konstrukcji znajdującej się w polu widzenia uŜytkowników drogi.
POWIERZCHNIA CAŁKOWITA REKLAMY [ PR ]:
PR = 3,96 m²
25
Typ reklamy na słupie oświetleniowym obowiązujący na terenie miasta Olsztyn na ulicy
NIEPODLEGŁOŚCI
Na ulicy Niepodległości obowiązują dwa typy reklam mocowanych na słupach oświetleniowych:
typ I obowiązuje na słupach oświetleniowych usytuowanych w pasach dzielących jezdnie, natomiast
typ II obowiązuje na słupach oświetleniowych usytuowanych po bokach jezdni.
I. Typ reklamy mocowanej na słupach oświetleniowych usytuowanych w pasach dzielących
jezdnie.
płaskownik
blacha
słup (śr. 200 mm)
otwory
otwory na
150 mm
1000 mm
blokada
u dołu
150 mm
1500 mm
blacha wsuwana
od góry
200 mm
płaskownik
200 mm
1000 mm
1500 mm
26
OBLICZENIE POWIERZCHNI REKLAMY
– typ I –
PR – powierzchnia całkowita reklamy, na którą składa się powierzchnia tablicy reklamowej
( PR = PT )
PT – powierzchnia tablic reklamowych w kształcie prostokątów o wymiarach 1,94 m x 1,00 m,
przy czym wymiar poziomy to: 2,00 m – 0,06 m = 1,94 m
PT = 2 szt. x (1,94 m x 1,00 m) = 2 x 1,94 m2 = 3,88 m²
PK – powierzchnia konstrukcji reklamy
Reklama nie posiada konstrukcji znajdującej się w polu widzenia uŜytkowników drogi.
POWIERZCHNIA CAŁKOWITA REKLAMY [ PR ]:
PR = 3,88 m²
27
II. Typ reklamy mocowanej na słupach oświetleniowych usytuowanych po bokach jezdni.
E.
TABLICA REKLAMOWA
miejsce spawania
słup
jarzmo
1400 mm
1000 mm
70 mm
C.
MOCOWANIE
50 mm
3,4
∅ 50 mm
Szerokość = 6
OPIS:
Tablica przykręcona śrubami o średnicy 10 do jarzma wykonanego z płaskownika 20 x 6 mm.
28
OBLICZENIE POWIERZCHNI REKLAMY
– typ II –
PR – powierzchnia całkowita reklamy, na którą składa się powierzchnia tablicy reklamowej
( PR = PT )
PT – powierzchnia tablicy reklamowej w kształcie prostokąta o wymiarach 1,00 m x 1,40 m
PT = 1,00 m x 1,40 m = 1,40 m²
PK – powierzchnia konstrukcji reklamy
Reklama nie posiada konstrukcji znajdującej się w polu widzenia uŜytkowników drogi.
POWIERZCHNIA CAŁKOWITA REKLAMY [ PR ]:
PR = 1,40 m²
29
Typ reklamy na słupie oświetleniowym obowiązujący na terenie miasta Olsztyn na ulicy
PARTYZANTÓW
Na ulicy Partyzantów obowiązują dwa typy reklam mocowanych na słupach oświetleniowych:
typ I obowiązuje na odcinku od Dworca PKP do pl. Bema, natomiast typ II obowiązuje na odcinku od pl. Bema
do al. Wojska Polskiego.
I. Typ reklamy obowiązujący na odcinku od Dworca PKP do pl. Bema.
800 mm
1100 mm
110 mm
1060 mm
OPIS:
14. blacha ocynkowana
15. kula
16. stoŜek ścięty
17. rura czarna
1100 x 800 mm ≠ 1,5
Ø 70 mm
Ø 50 x Ø 10 mm
Ø 50 mm
30
10 mm
B
50 mm
40 mm
A
OPIS:
7. nit zrywny
8. ucho
9. pręt
Ø 5 x 10 mm
10 x 10 mm st3s
Ø 8 mm st3s
31
OBLICZENIE POWIERZCHNI REKLAMY
– typ I –
PR – powierzchnia całkowita reklamy równa się powierzchni tablicy reklamowej
i powierzchni konstrukcji ( PR = PT + PK )
PT – powierzchnia tablicy reklamowej w kształcie prostokąta o wymiarach 1,10 m x 0,80 m
PT = 1,10 m x 0,80 m = 0,88 m²
PK – powierzchnia konstrukcji równa się sumie powierzchni 2 szt. kul [PK1], 2 szt. stoŜków
ściętych [PK2] i powierzchni obramowania [PK3]
e) PK1 – powierzchnia kuli o średnicy D1 = 70 mm = 0,07 m
Powierzchnia kuli: P = 4Πr², gdzie Π = 3,14, r = D1 : 2 = 0,07 m : 2 = 0,035 m
PK1 = 2 szt. x [4 x 3,14 x (0,035 m)²] = 2 x (4 x 3,14 x 0,001225 m2) = 2 x 0,015386 m² =
0,030772 m²
f) PK2 – powierzchnia 2 szt. stoŜków ściętych liczona jako powierzchnie trapezów
[P
= (a + b) : 2 x h], przy czym obwody podstaw stoŜków o przekroju koła stanowią
długości podstaw trapezów
•
długość podstawy dolnej trapezu [a] jest równa obwodowi koła o średnicy
D2 = 50 mm = 0,05 m (Ob = ΠD2, gdzie Π = 3,14, D2 = 0,05 m), który wynosi:
Ob = 3,14 x 0,05 m = 0,157 m
•
długość podstawy górnej trapezu [b] jest równa obwodowi koła o średnicy
D3 = 10 mm = 0,01 m (Ob = ΠD3, gdzie Π = 3,14, D3 = 0,01 m), który wynosi:
Ob = 3,14 x 0,01 m = 0,0314 m
• wysokość stoŜka [h] stanowi wysokość trapezu i wynosi h = 110 mm = 0,11 m
PK2 = 2 szt. x {[(0,157 m + 0,0314 m) : 2] x 0,11 m} = 2 x [(0,1884 m : 2) x 0,11 m]
= 2 x (0,0942 m x 0,11 m) = 2 x 0,010362 m² = 0,020724 m²
c) PK3 – powierzchnia obramowania liczona jako pole prostokąta, którego jeden bok stanowi
długość ramy (1,10 m + 0,80 m = 1,90 m), a drugi jej obwód (Ob = ΠD4, gdzie
Π = 3,14, D4 = 0,05 m), który wynosi: Ob = 3,14 x 0,05 m = 0,157 m
PK3 = 1,90 m x 0,157 m = 0,2983 m²
PK – powierzchnia całkowita konstrukcji wynosi: PK1 + PK2 + PK3
PK = 0,030772 m² + 0,020724 m² + 0,2983 m² = 0,349796 m2 ≈ 0,35 m²
POWIERZCHNIA CAŁKOWITA REKLAMY [ PR ]:
PR = 0,88 m² + 0,35 m² = 1,23 m²
32
II. Typ reklamy obowiązujący na odcinku od pl. Bema do al. Wojska Polskiego.
F.
TABLICA REKLAMOWA
B.
RZUT POZIOMY REKLAMY
33
OBLICZENIE POWIERZCHNI REKLAMY
– typ II –
PR – powierzchnia całkowita reklamy równa się powierzchni tablicy reklamowej
i powierzchni konstrukcji ( PR = PT + PK )
PT – powierzchnia tablicy reklamowej w kształcie prostokąta o wymiarach 0,70 m x 0,90 m
PT = 0,70 m x 0,90 m = 0,63 m²
PK – powierzchnia konstrukcji równa się sumie powierzchni 4 szt. kul [PK1], 2 szt. nakładek
w kształcie prostokątów [PK2] i powierzchni bocznego obramowania [PK3]
a) PK1 – powierzchnia kuli o średnicy D1 = 80 mm = 0,08 m
Powierzchnia kuli: P = 4Πr², gdzie Π = 3,14, r = D1 : 2 = 0,08 m : 2 = 0,04 m
PK1 = 4 szt. x [4 x 3,14 x (0,04 m)²] = 4 x 0,020096 m² = 0,080384 m²
b) PK2 – powierzchnia 2 szt. nakładek w kształcie prostokątów o wymiarach
(2 x 0,90 m + 0,10 m) x 0,10 m = 1,90 m x 0,10 m
PK2 = 2 szt. x (1,90 x 0,10) = 2 x 0,19 m² = 0,38 m²
c) PK3 – powierzchnia obramowania liczona jako pole prostokąta, którego jeden bok stanowi
długość ramy [2 szt. x (0,90 m + 0,06 m) = 2 x 0,96 m = 1,92 m] , a drugi jej obwód
(Ob = ΠD, gdzie Π = 3,14, D = 30 mm = 0,03 m)
obwód koła to 2Πr, więc 2 x 3,14 x 0,015 m = 0,0942 m
PK3 = 1,92 m x (3,14 x 0,03 m) = 1,92 m x 0,0942 m = 0,180864 m2
PK – powierzchnia całkowita konstrukcji wynosi: PK1 + PK2 + PK3
PK = 0,080384 m² + 0,38 m² + 0,180864 m² = 0,641248 m2 ≈ 0,64 m²
POWIERZCHNIA CAŁKOWITA REKLAMY [ PR ]:
PR = 0,63 m² + 0,64 m² = 1,27 m²
34
Typ reklamy na słupie oświetleniowym obowiązujący na terenie miasta Olsztyn na ulicach:
PIENIĘśNEGO, 1-GO MAJA, NOWOWIEJSKIEGO, 11-GO LISTOPADA, JEDNOŚCI
SŁOWIAŃSKIEJ
G.
TABLICA REKLAMOWA
35
B.
RZUT POZIOMY REKLAMY
OBLICZENIE POWIERZCHNI REKLAMY
PR – powierzchnia całkowita reklamy równa się powierzchni tablicy reklamowej
i powierzchni konstrukcji ( PR = PT + PK )
PT – powierzchnia tablicy reklamowej w kształcie prostokąta o wymiarach 0,70 m x 0,90 m
PT = 0,70 m x 0,90 m = 0,63 m²
PK – powierzchnia konstrukcji równa się sumie powierzchni 4 szt. kul [PK1], 2 szt. nakładek
w kształcie prostokątów [PK2] i powierzchni bocznego obramowania [PK3]
c) PK1 – powierzchnia kuli o średnicy D1 = 80 mm = 0,08 m
Powierzchnia kuli: P = 4Πr², gdzie Π = 3,14, r = D1 : 2 = 0,08 m : 2 = 0,04 m
PK1 = 4 szt. x [4 x 3,14 x (0,04 m)²] = 4 x 0,020096 m² = 0,080384 m²
d) PK2 – powierzchnia 2 szt. nakładek w kształcie prostokątów o wymiarach
(2 x 0,90 m + 0,10 m) x 0,10 m = 1,90 m x 0,10 m
PK2 = 2 szt. x (1,90 x 0,10) = 2 x 0,19 m² = 0,38 m²
c) PK3 – powierzchnia obramowania liczona jako pole prostokąta, którego jeden bok stanowi
długość ramy [2 szt. x (0,90 m + 0,06 m) = 2 x 0,96 m = 1,92 m] , a drugi jej obwód
(Ob = ΠD, gdzie Π = 3,14, D = 30 mm = 0,03 m)
obwód koła to 2Πr, więc 2 x 3,14 x 0,015 m = 0,0942 m
PK3 = 1,92 m x (3,14 x 0,03 m) = 1,92 m x 0,0942 m = 0,180864 m2
PK – powierzchnia całkowita konstrukcji wynosi: PK1 + PK2 + PK3
PK = 0,080384 m² + 0,38 m² + 0,180864 m² = 0,641248 m2 ≈ 0,64 m²
POWIERZCHNIA CAŁKOWITA REKLAMY [ PR ]:
PR = 0,63 m² + 0,64 m² = 1,27 m²
36
Typ reklamy na słupie oświetleniowym obowiązujący na terenie miasta Olsztyn na ulicy
PIŁSUDSKIEGO
Na ulicy Piłsudskiego obowiązują dwa typy reklam mocowanych na słupach oświetleniowych:
typ I obowiązuje na odcinku od pl. Jana Pawła II do ul. Dworcowej, natomiast typ II obowiązuje na odcinku
od ul. Dworcowej do granicy miasta.
I. Typ reklamy obowiązujący na odcinku od pl. Jana Pawła II do ul. Dworcowej.
800 mm
1100 mm
110 mm
1060 mm
OPIS:
18. blacha ocynkowana
19. kula
20. stoŜek ścięty
21. rura czarna
1100 x 800 mm ≠ 1,5
Ø 70 mm
Ø 50 x Ø 10 mm
Ø 50 mm
37
10 mm
B
50 mm
40 mm
A
OPIS:
10. nit zrywny
11. ucho
12. pręt
Ø 5 x 10 mm
10 x 10 mm st3s
Ø 8 mm st3s
38
OBLICZENIE POWIERZCHNI REKLAMY
– typ I –
PR – powierzchnia całkowita reklamy równa się powierzchni tablicy reklamowej
i powierzchni konstrukcji ( PR = PT + PK )
PT – powierzchnia tablicy reklamowej w kształcie prostokąta o wymiarach 1,10 m x 0,80 m
PT = 1,10 m x 0,80 m = 0,88 m²
PK – powierzchnia konstrukcji równa się sumie powierzchni 2 szt. kul [PK1], 2 szt. stoŜków
ściętych [PK2] i powierzchni obramowania [PK3]
g) PK1 – powierzchnia kuli o średnicy D1 = 70 mm = 0,07 m
Powierzchnia kuli: P = 4Πr², gdzie Π = 3,14, r = D1 : 2 = 0,07 m : 2 = 0,035 m
PK1 = 2 szt. x [4 x 3,14 x (0,035 m)²] = 2 x (4 x 3,14 x 0,001225 m2) = 2 x 0,015386 m² =
0,030772 m²
h)
PK2 – powierzchnia 2 szt. stoŜków ściętych liczona jako powierzchnie trapezów
[P = (a + b) : 2 x h], przy czym obwody podstaw stoŜków o przekroju koła stanowią
długości podstaw trapezów
•
długość podstawy dolnej trapezu [a] jest równa obwodowi koła o średnicy
D2 = 50 mm = 0,05 m (Ob = ΠD2, gdzie Π = 3,14, D2 = 0,05 m), który wynosi:
Ob = 3,14 x 0,05 m = 0,157 m
•
długość podstawy górnej trapezu [b] jest równa obwodowi koła o średnicy
D3 = 10 mm = 0,01 m (Ob = ΠD3, gdzie Π = 3,14, D3 = 0,01 m), który wynosi:
Ob = 3,14 x 0,01 m = 0,0314 m
• wysokość stoŜka [h] stanowi wysokość trapezu i wynosi h = 110 mm = 0,11 m
PK2 = 2 szt. x {[(0,157 m + 0,0314 m) : 2] x 0,11 m} = 2 x [(0,1884 m : 2) x 0,11 m]
= 2 x (0,0942 m x 0,11 m) = 2 x 0,010362 m² = 0,020724 m²
c) PK3 – powierzchnia obramowania liczona jako pole prostokąta, którego jeden bok stanowi
długość ramy (1,10 m + 0,80 m = 1,90 m), a drugi jej obwód (Ob = ΠD4, gdzie
Π = 3,14, D4 = 0,05 m), który wynosi: Ob = 3,14 x 0,05 m = 0,157 m
PK3 = 1,90 m x 0,157 m = 0,2983 m²
PK – powierzchnia całkowita konstrukcji wynosi: PK1 + PK2 + PK3
PK = 0,030772 m² + 0,020724 m² + 0,2983 m² = 0,349796 m2 ≈ 0,35 m²
POWIERZCHNIA CAŁKOWITA REKLAMY [ PR ]:
PR = 0,88 m² + 0,35 m² = 1,23 m²
39
II. Typ reklamy obowiązujący na odcinku od ul. Dworcowej do granicy miasta.
H.
TABLICA REKLAMOWA
1200 mm
900 mm
40
B.
RZUT POZIOMY REKLAMY
1200 mm
OPIS:
13. blacha aluminiowa
14. płaskownik
15. kątownik
16. jarzmo dwuczęściowe
17. rurka stalowa walcowana
C.
1200 x 900 mm
20 x 5 mm
30 x 20 x 5 mm
20 x 4 mm
Ø 20 mm
MOCOWANIE
OPIS:
9. jarzmo dwuczęściowe pł. 20 mm x 6 st3s
10. ceownik spawany z kwadratów 40 x 40 mm ze stali 1H18N9T ≠ 2,5 mm
11. śruba Ø 10 x 120 mm
12. podkładka spręŜynowa Ø 10 mm
13. nakrętka M-10
14. śruba Ø 10 x 25 mm
15. podkładka spręŜynowa Ø 10 mm
41
16. nakrętka M-10
OBLICZENIE POWIERZCHNI REKLAMY
– typ II –
PR – powierzchnia całkowita reklamy, na którą składa się powierzchnia tablic reklamowych
( PR = PT )
PT – powierzchnia tablic reklamowych w kształcie prostokątów o wymiarach 1,20 m x 0,90 m
PT = 2 szt. x (1,20 m x 0,90 m) = 2 x 1,08 m2 = 2,16 m²
PK – powierzchnia konstrukcji reklamy
Reklama nie posiada konstrukcji znajdującej się w polu widzenia uŜytkowników drogi.
POWIERZCHNIA CAŁKOWITA REKLAMY [ PR ]:
PR = 2,16 m²
42
Typ reklamy na słupie oświetleniowym obowiązujący na terenie miasta Olsztyn na ulicy
PSTROWSKIEGO
– słupy usytuowane w pasach dzielących jezdnie –
3000 mm
1000
1500 mm
60 mm
2880 mm
600 mm
60 mm
średnica słupa oświetleniowego: 300 mm
OPIS:
Łuk kształtowany jest przez ramę wewnętrzną, której fragment stanowi obejmę skręcaną
śrubami M-8 – 5,8 kg/mm2.
Materiały: kształtownik stalowy, płaskownik stalowy 40 x 5 (stal St0s), poszycie – blacha
aluminiowa malowana na kolor.
43
OBLICZENIE POWIERZCHNI REKLAMY
PR – powierzchnia całkowita reklamy, na którą składa się powierzchnia tablic reklamowych
( PR = PT )
PT – powierzchnia dwóch tablic reklamowych w kształcie prostokątów o wymiarach
2,94 m x 1,00 m, przy czym wymiar poziomy to: 3,00 m – 0,06 m = 2,94 m
PT = 2 szt. x (2,94 m x 1,50 m) = 2 x 4,41 m2 = 8,82 m²
PK – powierzchnia konstrukcji reklamy
Reklama nie posiada konstrukcji znajdującej się w polu widzenia uŜytkowników drogi.
POWIERZCHNIA CAŁKOWITA REKLAMY [ PR ]:
PR = 8,82 m²
44
Typ reklamy na słupie oświetleniowym obowiązujący na terenie miasta Olsztyn na ulicach:
SIKORSKIEGO, JAROCKA, METALOWA, OSIEDLE DAJTKI, OSIEDLE NAGÓRKI
900 mm
50 mm
1000 mm
50 mm
1100 mm
OBLICZENIE POWIERZCHNI REKLAMY
45
PR – powierzchnia całkowita reklamy, na którą składa się powierzchnia tablic reklamowych
( PR = PT )
PT
–
powierzchnia dwóch tablic reklamowych w kształcie prostokątów o wymiarach
0,90 m x 1,10 m
PT = 2 x (0,90 m x 1,10 m) = 2 x 0,99 m2 = 1,98 m²
PK – powierzchnia konstrukcji reklamy
Reklama nie posiada konstrukcji znajdującej się w polu widzenia uŜytkowników
drogi.
POWIERZCHNIA CAŁKOWITA REKLAMY [ PR ]:
PR = 1,98 m²
46
Typ reklamy na słupie oświetleniowym obowiązujący na terenie miasta Olsztyn na ulicach:
SYNÓW PUŁKU, TUWIMA, WITOSA
Na ulicach Synów Pułku, Tuwima i Witosa obowiązują dwa typy reklam mocowanych na słupach oświetleniowych:
typ I obowiązuje na słupach oświetleniowych usytuowanych w pasach dzielących jezdnie, natomiast
typ II obowiązuje na słupach oświetleniowych usytuowanych po bokach jezdni.
I. Typ reklamy mocowanej na słupach oświetleniowych usytuowanych w pasach dzielących
jezdnie.
1800 mm
100 mm
900 mm
100 mm
płaskownik
50 x 5
47
OBLICZENIE POWIERZCHNI REKLAMY
– typ I –
PR – powierzchnia całkowita reklamy, na którą składa się powierzchnia tablic reklamowych
( PR = PT )
PT – powierzchnia dwóch tablic reklamowych w kształcie prostokątów o wymiarach
1,80 m x 1,10 m
PT = 2 x (1,80 m x 1,10 m) = 2 x 1,98 m2 = 3,96 m²
PK – powierzchnia konstrukcji reklamy
Reklama nie posiada konstrukcji znajdującej się w polu widzenia uŜytkowników
drogi.
POWIERZCHNIA CAŁKOWITA REKLAMY [ PR ]:
PR = 3,96 m²
II. Typ reklamy mocowanej na słupach oświetleniowych usytuowanych po bokach jezdni.
48
900 mm
50 mm
1000 mm
50 mm
1100 mm
OBLICZENIE POWIERZCHNI REKLAMY
– typ II –
49
PR – powierzchnia całkowita reklamy, na którą składa się powierzchnia tablic reklamowych
( PR = PT )
PT
–
powierzchnia dwóch tablic reklamowych w kształcie prostokątów o wymiarach
0,90 m x 1,10 m
PT = 2 x (0,90 m x 1,10 m) = 2 x 0,99 m2 = 1,98 m²
PK – powierzchnia konstrukcji reklamy
Reklama nie posiada konstrukcji znajdującej się w polu widzenia uŜytkowników
drogi.
POWIERZCHNIA CAŁKOWITA REKLAMY [ PR ]:
PR = 1,98 m²
50
Typ reklamy na słupie oświetleniowym obowiązujący na terenie miasta Olsztyn na ulicy
WARSZAWSKA
Na ulicy Warszawskiej obowiązują dwa typy reklam mocowanych na słupach oświetleniowych:
typ I obowiązuje na słupach oświetleniowych usytuowanych w pasach dzielących jezdnie, natomiast
typ II obowiązuje na słupach oświetleniowych usytuowanych po bokach jezdni.
I. Typ reklamy mocowanej na słupach oświetleniowych usytuowanych w pasach dzielących
jezdnie.
2000 mm
1000
1000 mm
60 mm
1880 mm
600 mm
60 mm
średnica słupa oświetleniowego: 300 mm
OPIS:
Łuk kształtowany jest przez ramę wewnętrzną, której fragment stanowi obejmę skręcaną
śrubami M-8 – 5,8 kg/mm2.
Materiały: kształtownik stalowy, płaskownik stalowy 40 x 5 (stal St0s), poszycie – blacha
aluminiowa malowana na kolor.
51
OBLICZENIE POWIERZCHNI REKLAMY
– typ I –
PR – powierzchnia całkowita reklamy, na którą składa się powierzchnia tablic reklamowych
( PR = PT )
PT – powierzchnia tablic reklamowych w kształcie prostokątów o wymiarach 1,94 m x 1,00 m, przy
czym wymiar poziomy to: 2,00 m – 0,06 m = 1,94 m
PT = 2 szt. x (1,94 m x 1,00 m) = 2 x 1,94 m2 = 3,88 m²
PK – powierzchnia konstrukcji reklamy
Reklama nie posiada konstrukcji znajdującej się w polu widzenia uŜytkowników drogi.
POWIERZCHNIA CAŁKOWITA REKLAMY [ PR ]:
PR = 3,88 m²
II. Typ reklamy mocowanej na słupach oświetleniowych usytuowanych po bokach jezdni.
52
900 mm
1100 mm
rzut poziomy
reklamy
widok reklamy
z boku
53
OBLICZENIE POWIERZCHNI REKLAMY
– typ II –
PR – powierzchnia całkowita reklamy, na którą składa się powierzchnia tablic reklamowych
( PR = PT )
PT – powierzchnia dwóch tablic reklamowych w kształcie prostokątów o wymiarach
0,90 m x 1,10 m
PT = 2 szt. x (0,90 m x 1,10 m) = 2 x 0,99 m2 = 1,98 m²
PK – powierzchnia konstrukcji reklamy
Reklama nie posiada konstrukcji znajdującej się w polu widzenia uŜytkowników drogi.
POWIERZCHNIA CAŁKOWITA REKLAMY [ PR ]:
PR = 1,98 m²
54
Typ reklamy na słupie oświetleniowym obowiązujący na terenie miasta Olsztyn na ulicach:
WILCZYŃSKIEGO, KANTA
płaskownik
blacha
słup (śr. 200 mm)
otwory
otwory na
150 mm
1000 mm
blokada
u dołu
150 mm
1500 mm
blacha wsuwana
od góry
200 mm
płaskownik
200 mm
1000 mm
1500 mm
OBLICZENIE POWIERZCHNI REKLAMY
55
PR – powierzchnia całkowita reklamy, na którą składa się powierzchnia tablic reklamowych
( PR = PT )
PT – powierzchnia tablic reklamowych w kształcie prostokątów o wymiarach 1,94 m x 1,00 m, przy
czym wymiar poziomy to: 2,00 m – 0,06 m = 1,94 m
PT = 2 szt. x (1,94 m x 1,00 m) = 2 x 1,94 m2 = 3,88 m²
PK – powierzchnia konstrukcji reklamy
Reklama nie posiada konstrukcji znajdującej się w polu widzenia uŜytkowników drogi.
POWIERZCHNIA CAŁKOWITA REKLAMY [ PR ]:
PR = 3,88 m²
56
Typ reklamy na słupie oświetleniowym obowiązujący na terenie miasta Olsztyn na ulicach:
WOJSKA POLSKIEGO, SYBIRAKÓW, LIMANOWSKIEGO
A. TABLICA REKLAMOWA
1100 mm
150 mm
900 mm
800 mm
150 mm
500 mm
400 mm
1000
B. RZUT POZIOMY REKLAMY
C. WIDOK REKLAMY Z BOKU
200 mm
500 mm
200 mm
100 mm
OBLICZENIE POWIERZCHNI REKLAMY
57
PR – powierzchnia całkowita reklamy, na którą składa się powierzchnia tablic reklamowych
( PR = PT )
PT – powierzchnia dwóch tablic reklamowych w kształcie prostokątów o wymiarach
1,10 m x 0,50 m i dwóch ścianek bocznych
w kształcie prostokątów o wymiarach
0,10 m x 0,50 m oraz dwóch tablic w kształcie prostokątów o wymiarach 0,80 m x 0,20 m
PT = 2 szt. x (1,10 m x 0,50 m) + 2 szt. x (0,80 m x 0,20 m) + 2 szt. x (0,10 m x
0,50 m) = 2 x 0,55 m2 + 2 x 0,16 m2 + 2 x 0,05 m2 = 1,10 m2 + 0,32 m2 +
0,10 m2 = 1,52 m²
PK – powierzchnia konstrukcji reklamy
Reklama nie posiada konstrukcji znajdującej się w polu widzenia uŜytkowników drogi.
POWIERZCHNIA CAŁKOWITA REKLAMY [ PR ]:
PR = 1,52 m²
58
Typ reklamy na słupie oświetleniowym obowiązujący na terenie miasta Olsztyn na ulicach:
WYSZYŃSKIEGO, LEONHARDA, śOŁNIERSKA, PANA TADEUSZA
I.
TABLICA REKLAMOWA
1200 mm
900 mm
59
B.
RZUT POZIOMY REKLAMY
1200 mm
OPIS:
22. blacha aluminiowa
23. płaskownik
24. kątownik
25. jarzmo dwuczęściowe
26. rurka stalowa walcowana
C.
1200 x 900 mm
20 x 5 mm
30 x 20 x 5 mm
20 x 4 mm
Ø 20 mm
MOCOWANIE
OPIS:
17. jarzmo dwuczęściowe pł. 20 mm x 6 st3s
18. ceownik spawany z kwadratów 40 x 40 mm ze stali 1H18N9T ≠ 2,5 mm
19. śruba Ø 10 x 120 mm
20. podkładka spręŜynowa Ø 10 mm
21. nakrętka M-10
22. śruba Ø 10 x 25 mm
23. podkładka spręŜynowa Ø 10 mm
24. nakrętka M-10
60
OBLICZENIE POWIERZCHNI REKLAMY
PR – powierzchnia całkowita reklamy, na którą składa się powierzchnia tablic reklamowych
( PR = PT )
PT – powierzchnia tablic reklamowych w kształcie prostokątów o wymiarach 1,20 m x 0,90 m
PT = 2 szt. x (1,20 m x 0,90 m) = 2 x 1,08 m2 = 2,16 m²
PK – powierzchnia konstrukcji reklamy
Reklama nie posiada konstrukcji znajdującej się w polu widzenia uŜytkowników drogi.
POWIERZCHNIA CAŁKOWITA REKLAMY [ PR ]:
PR = 2,16 m²
61
62
63