Rys nr4 _ 0. Kondygn. - Specjalistyczny Zespół Opieki Zdrowotnej

Transkrypt

Rys nr4 _ 0. Kondygn. - Specjalistyczny Zespół Opieki Zdrowotnej
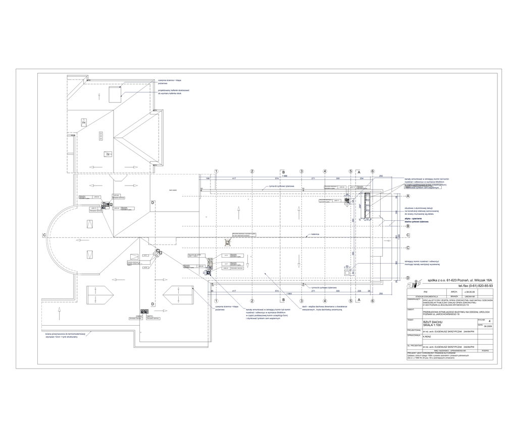
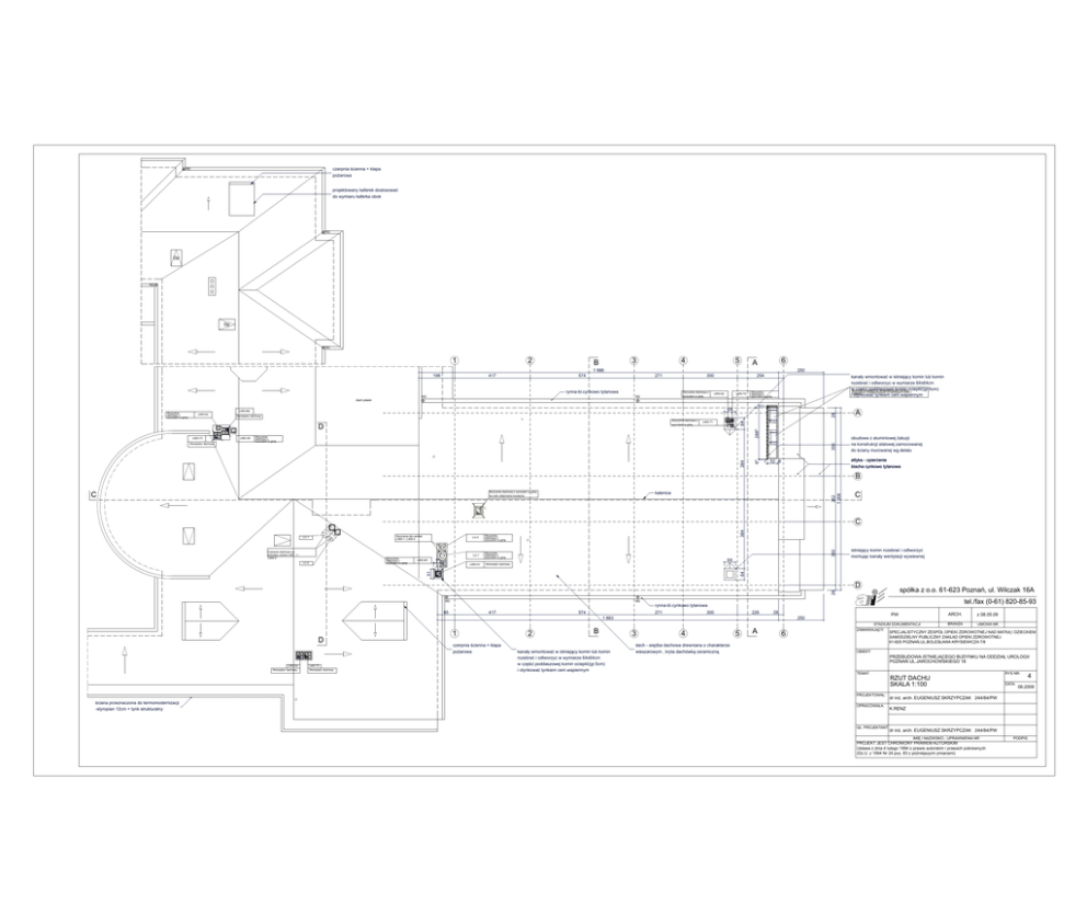
czerpnia ścienna + klapa
pożarowa
RD
projektowany kaferek dostosować
do wymiaru kaferka obok
RD
Dp
RD
Dp
RD
1
2
3
B
4
5
6
A
1 986
198
417
250
574
271
rynna-bl.cynkowo tytanowa
RD
300
Wyrzutnia dachowa z
wyrzutem w górę
RD
254
LWD-S2
LWD-T4
kanały wmontować w istniejący komin lub komin
rozebrać i odtworzyc w wymiarze 64x64cm
w
części
poddaszowej
komin
Jednostki
zewnętrzne,
skraplające dla
chłodnicocieplić(gr.5cm)
freonowych zlokalizowanych w centralach LNW-1
ii LNW2
otynkować tynkiem cem.wapiennym
Wyrzutnia
dachowa z
wyrzutem w górę
64
28
LWD-M2
Wentylator dachowy
Wyrzutnia dachowa z
D
350
Wyrzutnia
dachowa z
wyrzutem w górę
384
LWD-S5
2885
LWD-T3
Wentylator dachowy
wyrzutem w górę
LWD-T1
65
LWD-S3
A
64
Wyrzutnia
dachowa z
wyrzutem w górę
7
dach płaski
obudowa z aluminiowej żaluzji
na konstrukcji stalowej zamocowanej
do ściany murowanej wg.detalu
attyka - opierzenie
blacha cynkowo tytanowa
7 52 6
B
Wyrzutnia dachowa z wyrzutem w górę
kalenica
na cele oddymiana korytarza
252
1 008
C
C
Czerpnia dachowa na
potrzeby central LNW- 1 i
LNW-2
Wyrzutnia
dachowa z
wyrzutem w górę
Wyrzutnia
dachowa z
wyrzutem w górę
LU-1
Wyrzutnia
dachowa z
wyrzutem w górę
51
LWD-S1
64
istniejący komin rozebrać i odtworzyć
montując kanały wentylacji wywiewnej
Wentylator dachowy
64
51
LC-2
LWD-M1
LU-2
350
Wyrzutnia dla centrali
LNW-1 i LNW-2
LC-1
384
C
28
D
RD
RD
spółka z o.o. 61-623 Poznań, ul. Wilczak 16A
a
r
ktu
ite
ch
ar acje
z
li
a
re tycje
es
inw
tel./fax (0-61) 820-85-93
rynna-bl.cynkowo tytanowa
95
417
574
271
300
226
28
1 883
D
LWD-S4
Wentylator dachowy
LWD-T2
Wentylator dachowy
1
czerpnia ścienna + klapa
pożarowa
2
B
kanały wmontować w istniejący komin lub komin
rozebrać i odtworzyc w wymiarze 64x64cm
w części poddaszowej komin ocieplić(gr.5cm)
i otynkować tynkiem cem.wapiennym
PW
250
3
4
dach - więźba dachowa drewniana o charakterze
wieszarowym , kryta dachówką ceramiczną
5
A
6
STADIUM DOKUMENTACJI
ZAMAWIAJĄCY:
z 08.05.09
UMOWA NR
SPECJALISTYCZNY ZESPÓŁ OPIEKI ZDROWOTNEJ NAD MATKĄ I DZIECKIEM
SAMODZIELNY PUBLICZNY ZAKŁAD OPIEKI ZDROWOTNEJ
61-825 POZNAŃ,UL.BOLESŁAWA KRYSIEWICZA 7/8
OBIEKT:
PRZEBUDOWA ISTNIEJĄCEGO BUDYNKU NA ODDZIAŁ UROLOGII
POZNAŃ UL.JAROCHOWSKIEGO 18
TEMAT:
PROJEKTOWAŁ:
ściana przeznaczona do termomodernizacji
-styropian 12cm + tynk strukturalny
ARCH.
BRANŻA
OPRACOWAŁA:
GŁ. PROJEKTANT:
RZUT DACHU
SKALA 1:100
RYS NR:
DATA:
06.2009
dr inż. arch. EUGENIUSZ SKRZYPCZAK 244/84/PW
K.RENZ
dr inż. arch. EUGENIUSZ SKRZYPCZAK 244/84/PW
IMIĘ I NAZWISKO - UPRAWNIENIA NR
PROJEKT JEST CHRONIONY PRAWEM AUTORSKIM
Ustawa z dnia 4 lutego 1994 o prawie autorskim i prawach pokrewnych
(Dz.U. z 1994 Nr 24 poz. 83 z późniejszymi zmianami)
4
PODPIS