ir-1 informacja o gruntach

Transkrypt

ir-1 informacja o gruntach
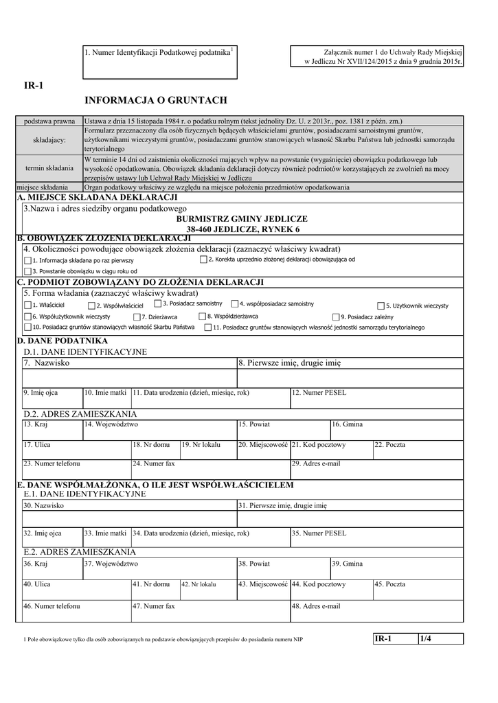
1. Numer Identyfikacji Podatkowej podatnika1
Załącznik numer 1 do Uchwały Rady Miejskiej
w Jedliczu Nr XVII/124/2015 z dnia 9 grudnia 2015r.
IR-1
INFORMACJA O GRUNTACH
podstawa prawna
składajacy:
termin składania
miejsce składania
Ustawa z dnia 15 listopada 1984 r. o podatku rolnym (tekst jednolity Dz. U. z 2013r., poz. 1381 z późn. zm.)
Formularz przeznaczony dla osób fizycznych będących właścicielami gruntów, posiadaczami samoistnymi gruntów,
użytkownikami wieczystymi gruntów, posiadaczami gruntów stanowiących własność Skarbu Państwa lub jednostki samorządu
terytorialnego
W terminie 14 dni od zaistnienia okoliczności mających wpływ na powstanie (wygaśnięcie) obowiązku podatkowego lub
wysokość opodatkowania. Obowiązek składania deklaracji dotyczy również podmiotów korzystających ze zwolnień na mocy
przepisów ustawy lub Uchwał Rady Miejskiej w Jedliczu
Organ podatkowy właściwy ze względu na miejsce położenia przedmiotów opodatkowania
A. MIEJSCE SKŁADANA DEKLARACJI
3.Nazwa i adres siedziby organu podatkowego
BURMISTRZ GMINY JEDLICZE
38-460 JEDLICZE, RYNEK 6
B. OBOWIĄZEK ZŁOŻENIA DEKLARACJI
4. Okoliczności powodujące obowiązek złożenia deklaracji (zaznaczyć właściwy kwadrat)
2. Korekta uprzednio złożonej deklaracji obowiązująca od
1. Informacja składana po raz pierwszy
3. Powstanie obowiązku w ciągu roku od
C. PODMIOT ZOBOWIĄZANY DO ZŁOŻENIA DEKLARACJI
5. Forma władania (zaznaczyć właściwy kwadrat)
1. Właściciel
2. Współwłaściciel
6. Współużytkownik wieczysty
3. Posiadacz samoistny
5. Użytkownik wieczysty
8. Współdzierżawca
7. Dzierżawca
10. Posiadacz gruntów stanowiących własność Skarbu Państwa
9. Posiadacz zależny
11. Posiadacz gruntów stanowiących własność jednostki samorządu terytorialnego
D. DANE PODATNIKA
D.1. DANE IDENTYFIKACYJNE
7. Nazwisko
9. Imię ojca
4. współposiadacz samoistny
8. Pierwsze imię, drugie imię
10. Imie matki 11. Data urodzenia (dzień, miesiąc, rok)
12. Numer PESEL
D.2. ADRES ZAMIESZKANIA
13. Kraj
14. Województwo
17. Ulica
18. Nr domu
23. Numer telefonu
24. Numer fax
15. Powiat
19. Nr lokalu
16. Gmina
20. Miejscowość 21. Kod pocztowy
22. Poczta
29. Adres e-mail
E. DANE WSPÓŁMAŁŻONKA, O ILE JEST WSPÓŁWŁAŚCICIELEM
E.1. DANE IDENTYFIKACYJNE
31. Pierwsze imię, drugie imię
30. Nazwisko
32. Imię ojca
33. Imie matki 34. Data urodzenia (dzień, miesiąc, rok)
35. Numer PESEL
E.2. ADRES ZAMIESZKANIA
36. Kraj
37. Województwo
40. Ulica
41. Nr domu
46. Numer telefonu
47. Numer fax
38. Powiat
42. Nr lokalu
39. Gmina
43. Miejscowość 44. Kod pocztowy
45. Poczta
48. Adres e-mail
1 Pole obowiązkowe tylko dla osób zobowiązanych na podstawie obowiązujących przepisów do posiadania numeru NIP
IR-1
1/4
F. INFORMACJA O WSPÓŁWŁAŚCICIELACH/ WSPÓŁPOSIADACZACH
(należy podać dane każdego ze współwłaścicieli/ współposiadaczy, takie jak wskazane w pozycji D punkty od 7 do 33 oraz przysługujacy im udział)
G. DANE DOTYCZĄCE PRZEDMIOTÓW OPODATKOWANIA
GRUNTY NIESTANOWIĄCE GOSPODARSTWA ROLNEGO
GRUNTY STANOWIĄCE GOSPODARSTWO ROLNE
G.1. GRUNTY ORNE
Klasa użytków rolnych
I
II
IIIa
IIIb
IVa
IVb
V
VI
IIIb
IVa
IVb
V
VI
IVa
IVb
V
VI
IVa
IVb
V
VI
Powierzchnia w
hektarach fizycznych
G.2. GRUNTY ROLNE ZABUDOWANE- GRUNTY ORNE
Klasa użytków rolnych
I
II
IIIa
Powierzchnia w
hektarach fizycznych
G.3. GRUNTY ZADRZEWIONE I ZAKRZEWIONE NA GRUNTACH ORNYCH
Klasa użytków rolnych
I
II
IIIa
IIIb
Powierzchnia w
hektarach fizycznych
G.4. GRUNTY POD STAWAMI NIEZARYBIONYMI- GRUNTY ORNE
Klasa użytków rolnych
I
II
IIIa
IIIb
Powierzchnia w
hektarach fizycznych
G.5. ROWY NA GRUNTACH ORNYCH
Klasa użytków rolnych
I
II
IIIa
IIIb
IVa
IVb
V
VI
I
II
III/ IIIa
IIIb
IV/ IVa
IVb
V
VI
I
II
III
IV
V
III
IV
V
G.9. GRUNTY ZADRZEWIONE I ZAKRZEWIONE NA ŁĄKACH I PASTWISKACH
Klasa użytków rolnych
IV
I
II
III
V
Powierzchnia w
hektarach fizycznych
G.6. SADY
Klasa użytków rolnych
Powierzchnia w
hektarach fizycznych
G.7. ŁĄKI I PASTWISKA
Klasa użytków rolnych
Powierzchnia w hektarach fizycznych
G.8. GRUNTY ROLNE ZABUDOWNE- ŁĄKI I PASTWISKA
Klasa użytków rolnych
I
II
Powierzchnia w hektarach fizycznych
Powierzchnia w hektarach fizycznych
G.10. GRUNTY POD STAWAMI NIEZARYBIONYMI- ŁĄKI I PASTWISKA
Klasa użytków rolnych
I
II
III
V
IV
Powierzchnia w hektarach fizycznych
IR-1
2/4
G.11. ROWY NA ŁĄKACH I PASTWISKACH
Klasa użytków
rolnych
I
III
II
V
IV
Powierzchnia w
hektarach fizycznych
G.12. INNE GRUNTY, DLA KTÓRYCH NIE MOŻNA USTALIĆ PRZELICZNIKA
RODZAJ UŻYTKU
POWIERZCHNIA W HEKTARACH FIZYCZNYCH
G.13. GRUNTY POD STAWAMI ZARYBIONYMI- ŁOSOSIEM, TROCIĄ, GŁOWACICĄ, PALIĄ I PSTRĄGIEM
POWIERZCHNIA W HEKTARACH FIZYCZNYCH
G.14. GRUNTY POD STAWAMI ZARYBIONYMI- INNE GATUNKI RYB
POWIERZCHNIA W HEKTARACH FIZYCZNYCH
H. ŁĄCZNA POWIERZCHNIA UŻYTKÓW ROLNYCH
1. Powierzchnia w hektarach fizycznych
2. Grunty stanowiące użytki rolne położone na terenie innych Gmin
Położenie gruntów (wskazanie właściwej Gminy)
Powierzchnia w hektarach fizycznych
Powierzchnia w hektarach przeliczeniowych
I. DANE DOTYCZĄCE UZYTKÓW ROLNYCH PODLEGAJĄCYCH OPODATKOWANIU LUB ZWOLNIENIU
I.1. POŁOŻENIE NIERUCHOMOŚCI I IDENTYFIKATORY GEODEZYJNE DZIAŁEK
MIEJSCOWOŚĆ:
I.2. KSIĘGA WIECZYSTA
NR DZIAŁKI/DZIAŁEK:
56. Numer ksiegi wieczystej ( zbioru dokumentów)
NR GEODEZYJNY:
57. Nazwa sądu
J. DANE DOTYCZĄCE OBJĘCIA OBOWIĄZKIEM PODATKOWYM NA PODSTAWIE ART.6C USTAWY O PODATKU
ROLNYM
PODATEK OD NIERUCHOMOŚCI
PODATEK LEŚNY
K. DANE DOTYCZĄCE ZWOLNIEŃ PODATKOWYCH WYNIKAJĄCYCH Z USTAWY LUB UCHWAŁ RADY MIEJSKIEJ W JEDLICZU
Tytuł prawny zwolnienia (należy wskazać podstawę prawnąobowiązujący przepis prawa)
Podstawa zwolnienia (powierzchnia w hektarach fizycznych)
I. ZWOLNIENIA USTAWOWE:
Art.12 ust.1 pkt 1 - grunty zadrzewione i zakrzewione ustanowione
na użytkach rolnych
Art.12 ust.1 pkt 1 - użytki rolne klasy V, VI i VIz
II. ZWOLNIENIA WPROWADZONE UCHWAŁĄ RADY MIEJSKIEJ
Uchwała Rady Miejskiej
w Jedliczu Nr
z dnia
III. INNE ZWOLNIENIA I ULGI
L. OŚWIADCZENIE, WNIOSEK I PODPIS PODATNIKA/ OSOBY REPREZENTUJĄCEJ PODATNIKA/ PEŁNOMOCNIKA PODATNIKA
IMIĘ/ IMIONA
NAZWISKO
DATA WYPEŁNIENIA
PODPIS (PIECZĘĆ ) PODATNIKA LUB OSOBY REPREZENTUJĄCEJ PODATNIKA
IR-1
3/4
M. ADNOTACJE ORGANU PODATKOWEGO
Uwagi organu podatkowego
IR-1
4/4