Załączniki 2/3

Transkrypt

Załączniki 2/3
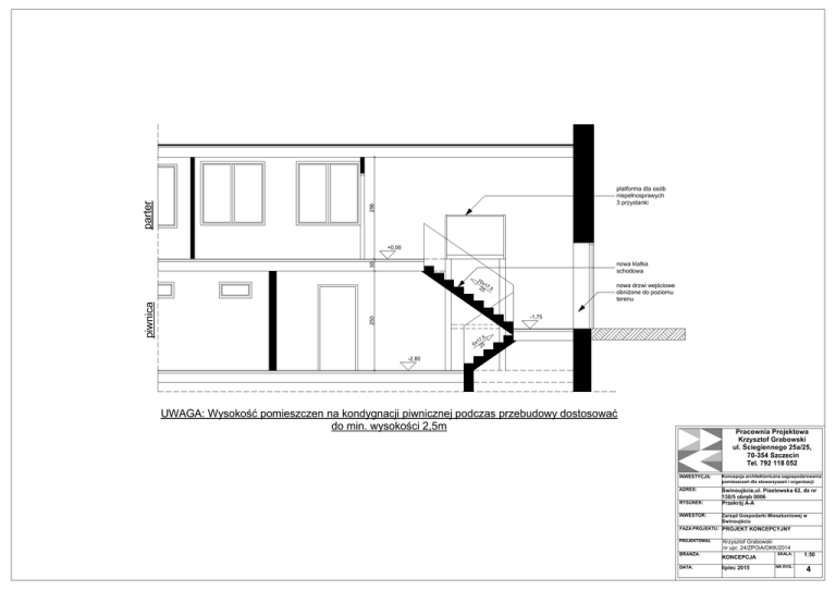
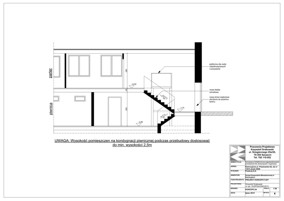
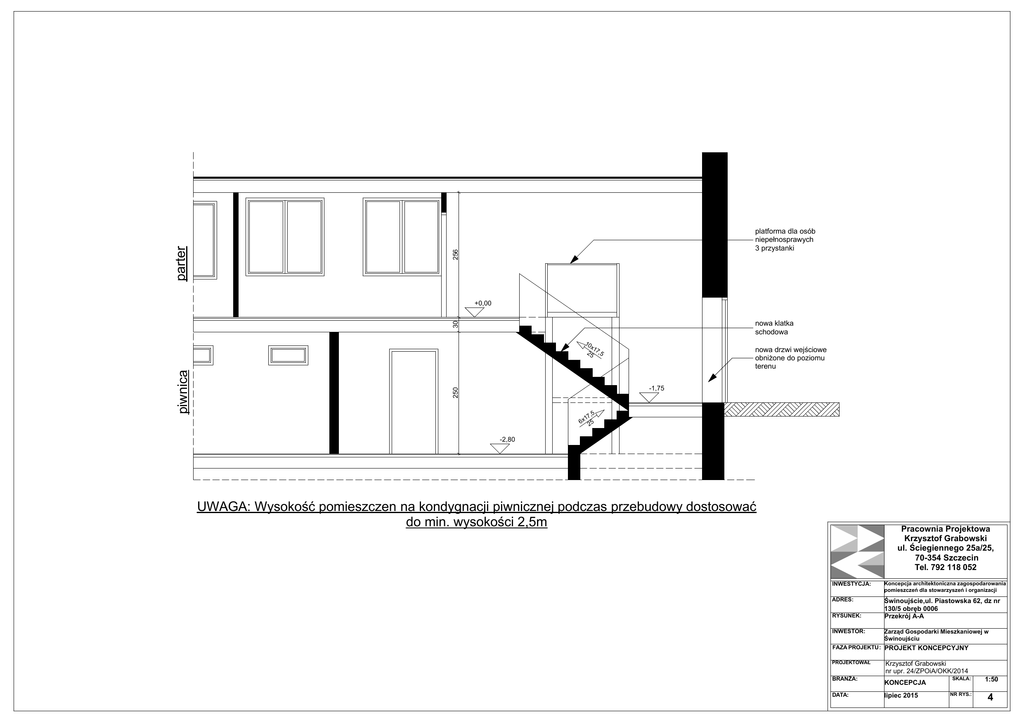
256
parter
platforma dla osób
niepełnosprawych
3 przystanki
+0,00
30
nowa klatka
schodowa
nowa drzwi wejściowe
obniżone do poziomu
terenu
-1,75
250
piwnica
10
x1
25 7,5
,5
17
6x 25
-2,80
UWAGA: Wysokość pomieszczen na kondygnacji piwnicznej podczas przebudowy dostosować
do min. wysokości 2,5m
Pracownia Projektowa
Krzysztof Grabowski
ul. Ściegiennego 25a/25,
70-354 Szczecin
Tel. 792 118 052
INWESTYCJA:
Koncepcja architektoniczna zagospodarowania
pomieszczeń dla stowarzyszeń i organizacji
ADRES:
Świnoujście,ul. Piastowska 62, dz nr
130/5 obręb 0006
Przekrój A-A
RYSUNEK:
INWESTOR:
Zarząd Gospodarki Mieszkaniowej w
Świnoujściu
FAZA PROJEKTU: PROJEKT KONCEPCYJNY
PROJEKTOWAŁ
BRANŻA:
DATA:
Krzysztof Grabowski
nr upr. 24/ZPOiA/OKK/2014
KONCEPCJA
lipiec 2015
SKALA:
1:50
NR RYS.:
4